Self-contained 7,500 sqft high-tech office with Gensler redesign and parking.
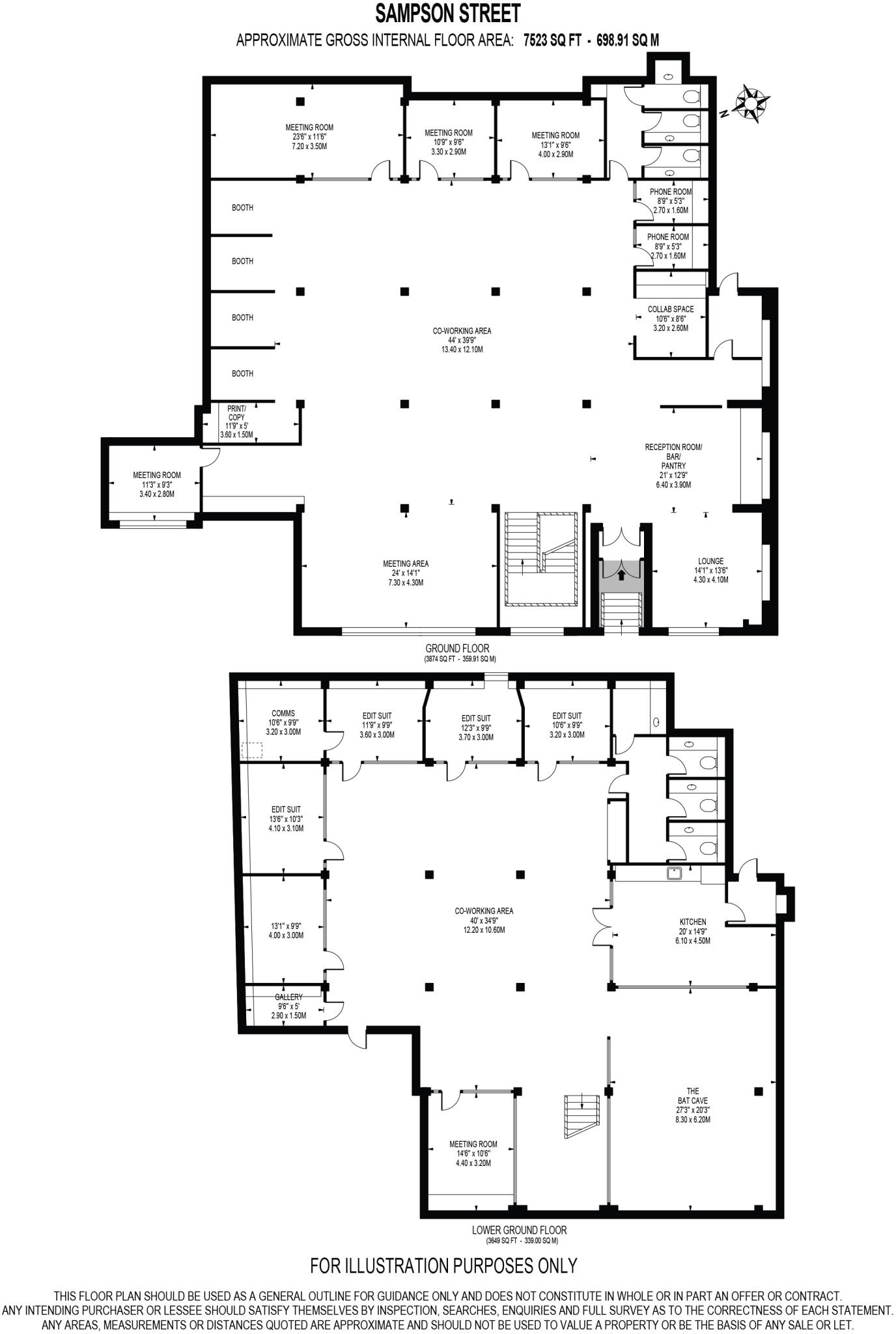
Very large c.7,523 sqft self-contained lateral office across two levels
Redesigned by Gensler; high-spec media fit-out including studio and editing suites
High ceilings, exposed industrial finishes, polished concrete and reclaimed timber
Independent HVAC, fresh-air induction, independent lighting, and 3-phase power
Two private off-street parking spaces included with the sale
Leasehold — c.96 years remaining; ground rent £250 (small)
Local crime recorded as very high; security and insurance likely higher
Cavity walls assumed uninsulated; thermal upgrades may be required
An exceptional, self-contained creative hub on Sampson Street offering c.7,523 sqft of lateral office space across lower ground and ground floors. Redesigned by Gensler, the building combines industrial character—exposed brickwork, high ceilings and polished concrete—with a modern plug-and-play fit-out including editing suites, recording studio, phone booths and eight meeting rooms. Independent air heating/cooling, fresh-air induction, independent lighting and 3-phase power support high-spec media or tech operations.
The space has strong practical advantages for an occupier or owner-operator: large floorplates with c.14m frontage, a reception and lounge, private theatre/conference room and two private off-street parking spaces. EPC B and excellent broadband/mobile connectivity make it ready for immediate occupation or short-term letting to creative and tech tenants drawn to Wapping’s nautical character and nearby amenities.
Buyers should note material constraints: the property is leasehold with c.96 years remaining and a small ground rent of £250. The local crime level is recorded as very high, which may affect security costs and insurance. Some original cavity walls are assumed uninsulated, so further thermal upgrades could be needed to optimise energy performance despite the EPC B.
This building suits a buyer seeking a high-spec, sizeable central London office with immediate operational capability and characterful finishes — ideal for a growing media, creative or high-tech business, or an investor targeting premium short-term lets to specialist tenants. Assessments on security measures, insulation upgrades and lease terms are recommended prior to purchase.
Office for sale in East Smithfield, E1W — £1,150,000 • 1 bed • 1 bath • 2185 ft²
Office for sale in 5 Maidstone Buildings Mews, London, SE1 1GN, SE1 — £1,000,000 • 1 bed • 1 bath • 2563 ft²
Office for sale in Unit 1, 3-5 Dunston Road, London, E8 4EH, E8 — £600,000 • 1 bed • 1 bath • 1230 ft²
Office for sale in Kingsland Road, E2 — £1,000,000 • 1 bed • 1 bath • 2200 ft²
Office for sale in Unit B North Gainsborough Studios, 1 Poole Street, London, N1 5EB, N1 — £1,250,000 • 1 bed • 1 bath • 2508 ft²
Office for sale in Suite 5, 2 Shad Thames, London, SE1 2YU, SE1 — £440,000 • 1 bed • 1 bath • 640 ft²


































































































