Family-sized home near park, village amenities and train station.
Spacious detached 1930s character home, circa 1,936 sq ft
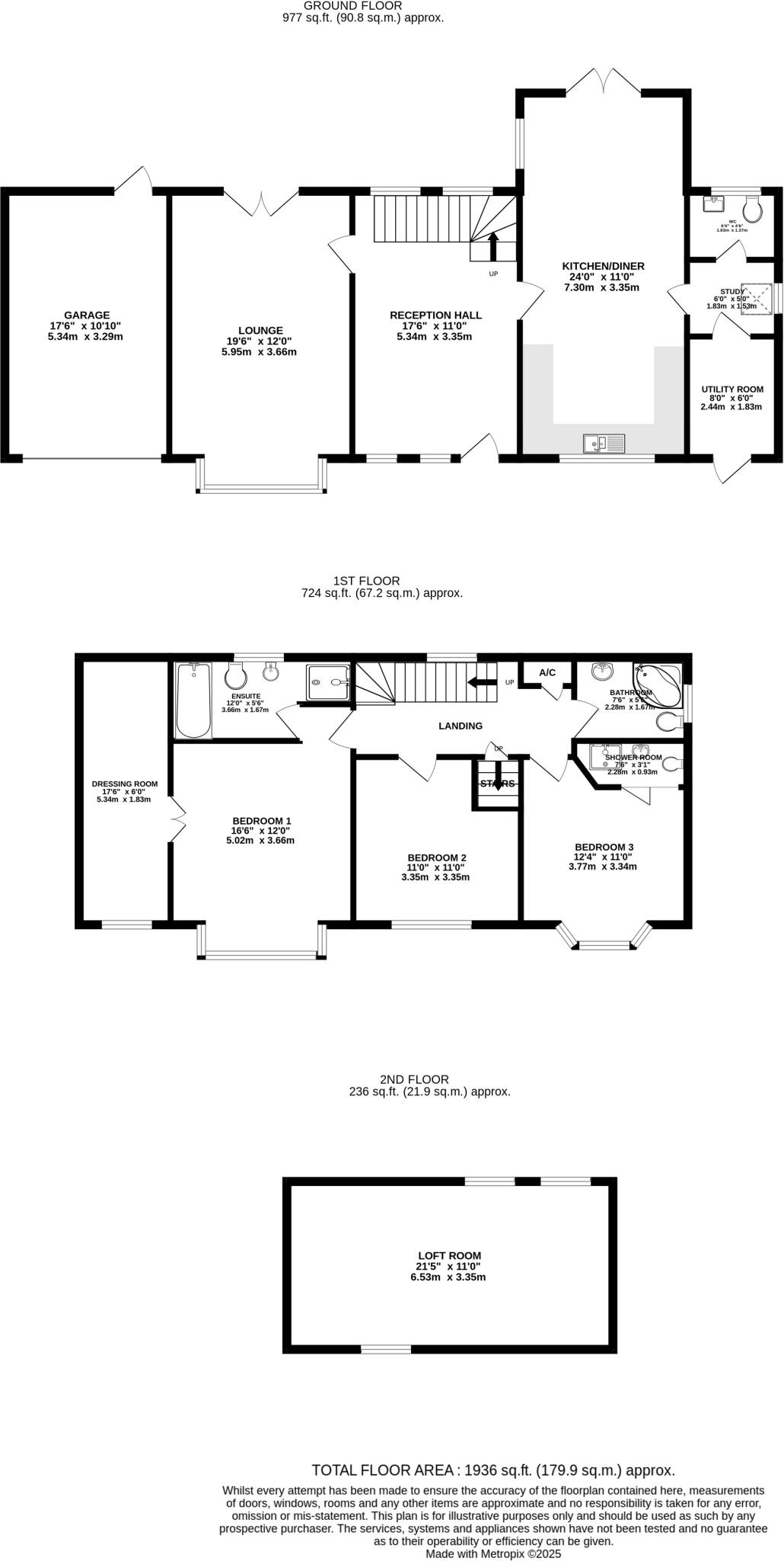
A spacious, detached 1930s character home in Lower Parkstone, offering a blend of period detail and practical family living. The large entrance dining hall leads to a dual-aspect lounge filled with natural light, while the fitted kitchen/breakfast room, separate utility and downstairs WC support everyday family routines. The principal bedroom benefits from a walk-in wardrobe and modern en-suite; two further double bedrooms and a stylish family bathroom complete the first floor.
Outside, a secluded rear garden provides a private spot for outdoor dining and play. The wide driveway and garage deliver generous off-road parking. A large loft room offers conversion potential (subject to planning) to expand accommodation or create a home office.
Practical considerations: the house dates from the 1930–49 period and walls are cavity as built with no added insulation assumed, so measures to improve thermal efficiency may be worthwhile. Double glazing is in place but install date is unknown. Council tax is listed as expensive. Broadband and mobile signal are strong and there is no flood risk.
Position is a key strength: an easy walk to Poole Park, Ashley Cross Village and Parkstone station, with excellent road links towards Bournemouth, the Wessex Way and the M27 for wider commutes. Well-regarded local schools and nearby Blue Flag beaches add to the appeal for families seeking space, charm and connectivity.
3 bedroom detached house for sale in North Road, Lower Parkstone, Poole, Dorset, BH14 — £695,000 • 3 bed • 2 bath • 1449 ft²
5 bedroom detached house for sale in Springfield Crescent, Lower Parkstone, Poole, Dorset, BH14 — £950,000 • 5 bed • 1 bath • 1945 ft²
3 bedroom detached house for sale in Gleneagles Avenue, Poole, Dorset, BH14 — £850,000 • 3 bed • 2 bath • 1592 ft²
3 bedroom detached house for sale in Milton Road, Poole, Dorset, BH14 — £850,000 • 3 bed • 3 bath • 1728 ft²
4 bedroom detached house for sale in Marlborough Road, Poole, Dorset, BH14 — £825,000 • 4 bed • 2 bath • 1704 ft²
4 bedroom detached house for sale in Kings Avenue, Poole, Dorset, BH14 — £900,000 • 4 bed • 1 bath • 1615 ft²






















































































