Close to Finchley Central, parking and long lease — great first home or rental.
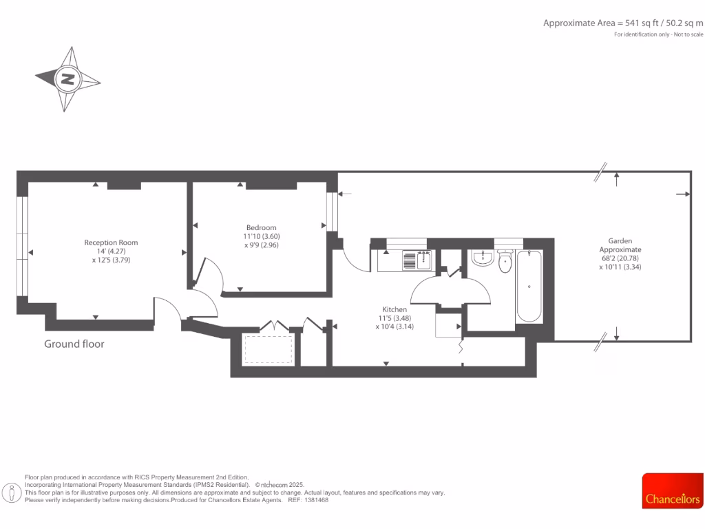
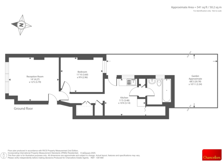
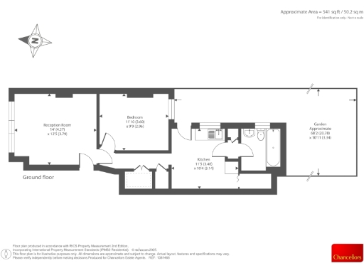
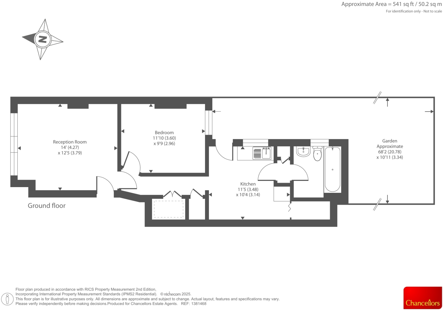
Ground-floor one-bedroom garden conversion with private rear garden
A ground-floor one-bedroom garden conversion set back on Squires Lane, within 0.5 miles of Finchley Central tube. The flat retains Edwardian exterior character and period features while offering a practical linear layout: entrance hall, reception room, fitted kitchen/dining room, double bedroom and bathroom. An extended lease of 154 years is already in place, and the property includes its own section of rear garden plus an off-street parking space.
This apartment will suit a first-time buyer or investor seeking a centrally located one-bedroom with outdoor space and parking. The accommodation is an average-sized 541 sq ft with double glazing fitted post-2002, mains gas boiler and radiators, and good mobile signal. Local schools include several well-rated primaries and secondaries; the area is very affluent with low crime and good local amenities.
Practical points to note: the building is Victorian/Edwardian (pre-1900) with solid brick walls assumed to have no cavity insulation, and the interior will benefit from modernization to achieve contemporary standards. Broadband speeds are reported slow, which could affect home working. Overall the flat offers clear potential for improvement and rental or owner-occupier use, backed by a long lease and private outside space.
2 bedroom maisonette for sale in Squires Lane, London, N3 — £475,000 • 2 bed • 1 bath • 613 ft²
2 bedroom apartment for sale in Squires Lane, Finchley, N3 — £475,000 • 2 bed • 1 bath • 638 ft²
2 bedroom flat for sale in Squires Lane, Finchley, N3 — £525,000 • 2 bed • 1 bath • 669 ft²
2 bedroom flat for sale in Dollis Road, Finchley, N3 — £400,000 • 2 bed • 1 bath • 552 ft²
2 bedroom flat for sale in St. Ronans, Finchley Central, N3 — £450,000 • 2 bed • 1 bath • 1177 ft²
2 bedroom flat for sale in Squires Lane, Finchley, N3 — £600,000 • 2 bed • 2 bath • 819 ft²


















































































