Compact modern maisonette with large private garden, ideal for first-time buyers.
Share of freehold and sold chain free, simplifying purchase process
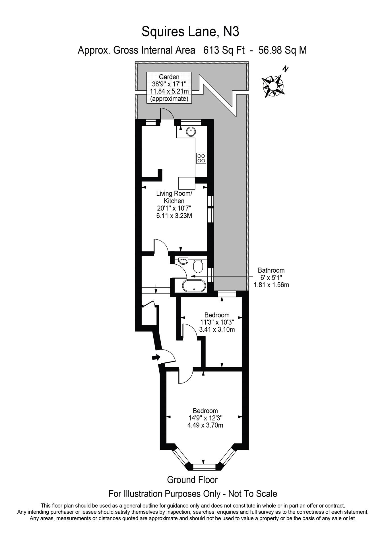
Private 40-foot rear garden — uncommon for a ground-floor flat
Newly renovated interior with modern kitchen and double glazing
Compact overall size (~613 sqft); best for efficient living
Lease details not finalised; registration pending at Land Registry
Potential to extend (subject to planning permission) for extra space
Slow local broadband speeds; solid-brick walls likely without insulation
Additional leasehold/administration fees may be incurred
Set within a Victorian mid-terrace on Squires Lane, this ground-floor two-bedroom maisonette offers a newly renovated, light-filled living room, separate modern kitchen and a rare 40-foot private rear garden. The flat is chain-free and sold with a share of freehold, making it attractive to first-time buyers and downsizers looking for move-in-ready accommodation with outdoor space in Finchley Central.
The layout is compact (approximately 613 sq ft) and efficiently arranged in a linear plan. Recent works mean the interior is modern throughout with double glazing and contemporary finishes; the building’s solid-brick construction, however, likely lacks cavity insulation. There is potential to extend subject to planning permission, providing scope to increase living space and value.
Buyers should note the property is leasehold and the lease documentation has not yet been finalised or registered at HM Land Registry. Additional leasehold packs or administrative fees may apply and purchasers are advised to seek guidance on lease terms and any financial/timeframe implications before proceeding. Broadband speeds in the area are reported as slow.
In short, this is a compact, stylish garden flat in a sought-after location — an appealing starter home or investment with immediate liveability and realistic scope to add value, balanced by the usual leasehold checks and modest space constraints.
2 bedroom apartment for sale in Squires Lane, Finchley, N3 — £475,000 • 2 bed • 1 bath • 638 ft²
1 bedroom flat for sale in Squires Lane, Finchley, N3 — £350,000 • 1 bed • 1 bath • 541 ft²
2 bedroom flat for sale in Squires Lane, Finchley, N3 — £525,000 • 2 bed • 1 bath • 669 ft²
2 bedroom flat for sale in Long Lane, Finchley, N3 — £465,000 • 2 bed • 1 bath • 764 ft²
2 bedroom flat for sale in Elm Park Road, Finchley, N3 — £550,000 • 2 bed • 1 bath • 850 ft²
2 bedroom flat for sale in St. Ronans, Finchley Central, N3 — £450,000 • 2 bed • 1 bath • 1177 ft²


















































































