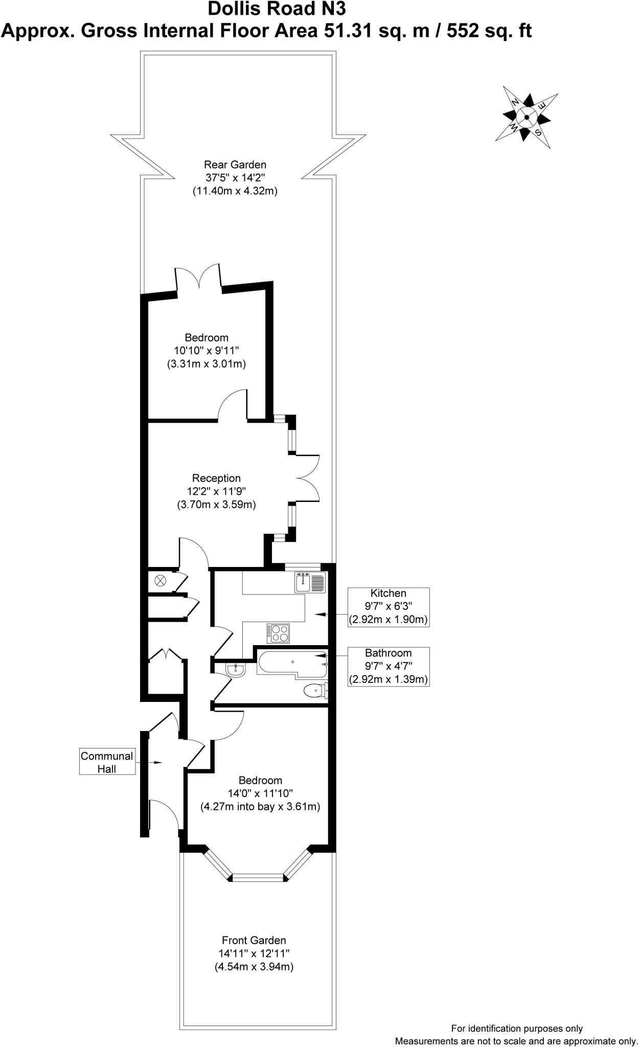
Chain-free two-bedroom home with generous rear outside space and long lease.
Two bedrooms with bay windows and bright reception room
Own rear garden approximately 37' x 14' (overgrown, needs work)
Share of freehold with 978 years remaining on lease
Chain free and own front door to communal entrance
Compact overall size c. 552 sqft — small footprint
Some double glazing fitted; EPC Band F — energy improvements advised
Building insurance £335pa; Council Tax Band C (higher cost)
Close to Finchley Central station, shops, buses and good schools
A bright two-bedroom ground-floor converted home with its own private rear garden and a very long lease. Its bay windows and modern laminate flooring give the reception room a fresh, airy feel, while double doors lead directly to outside space ideal for summer entertaining.
The property will suit families or first-time buyers seeking outdoor space near open green areas and good local schools. Finchley Central station, buses, shops and Dollis Brook are all within easy reach, placing daily amenities and transport close by.
Practical considerations: the garden is overgrown and needs maintenance or landscaping, the EPC is F, and some double glazing has been fitted but further energy improvements would be beneficial. Share of freehold, a 978-year lease and chain-free status are strong ownership advantages, with building insurance currently £335 per year and council tax in Band C.
2 bedroom flat for sale in Elm Park Road, Finchley, N3 — £550,000 • 2 bed • 1 bath • 850 ft²
2 bedroom flat for sale in Long Lane, London, N3 — £500,000 • 2 bed • 2 bath • 1013 ft²
2 bedroom flat for sale in St. Ronans, Finchley Central, N3 — £450,000 • 2 bed • 1 bath • 1177 ft²
2 bedroom flat for sale in Woodgrange Avenue, North Finchley, N12 — £425,000 • 2 bed • 1 bath • 600 ft²
2 bedroom apartment for sale in Etchingham Park Road, London, N3 — £350,000 • 2 bed • 1 bath • 652 ft²
2 bedroom flat for sale in Nether Street, Finchley, N3 — £375,000 • 2 bed • 1 bath • 694 ft²


















































