**Standout Features:**
- Three-bedroom semi-detached house with renovation potential
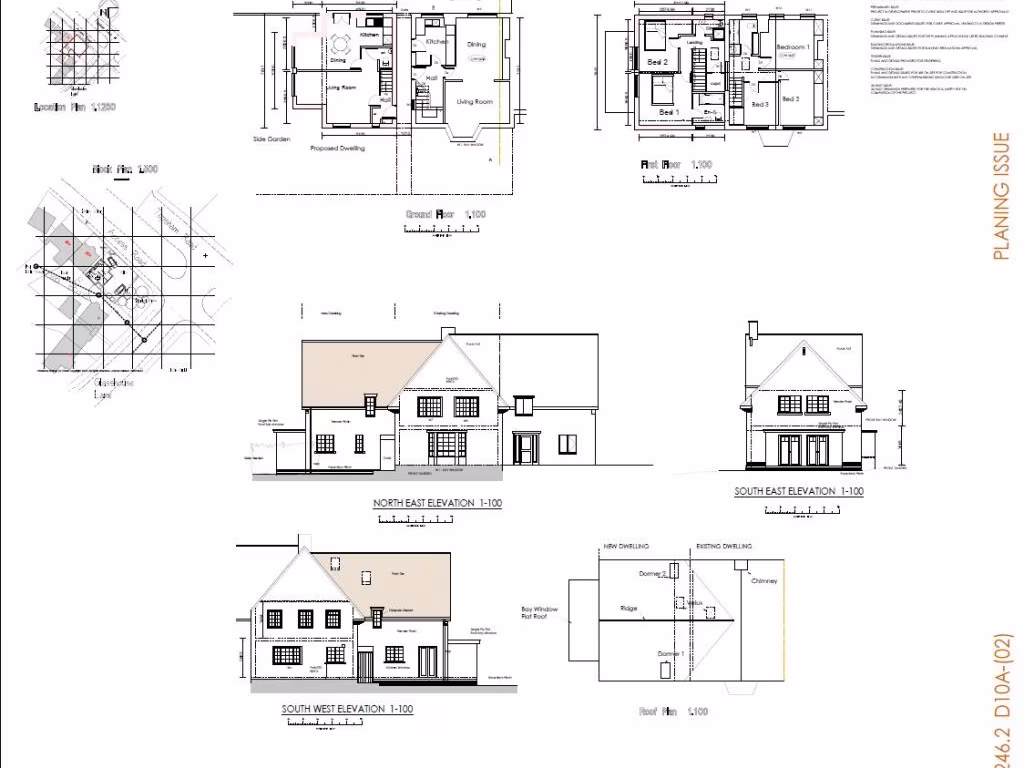
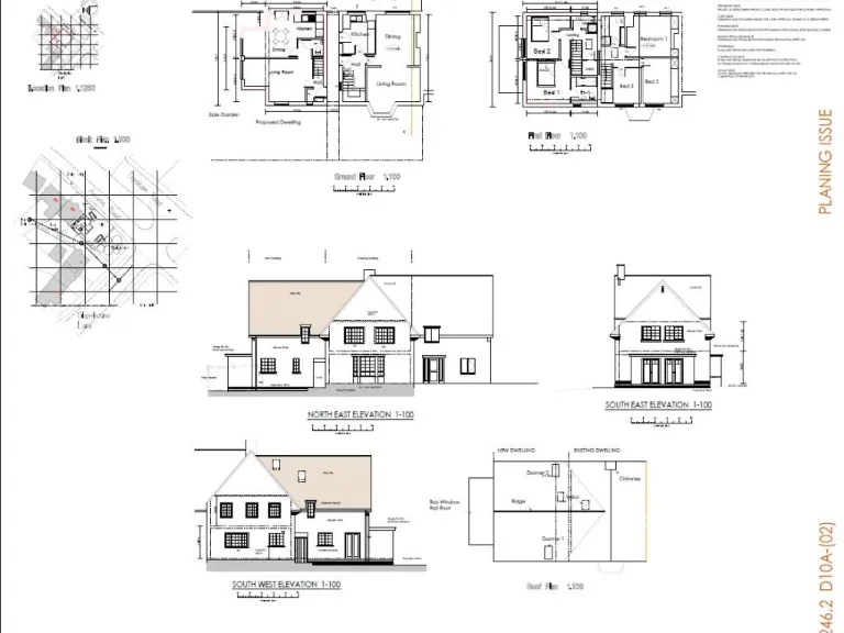
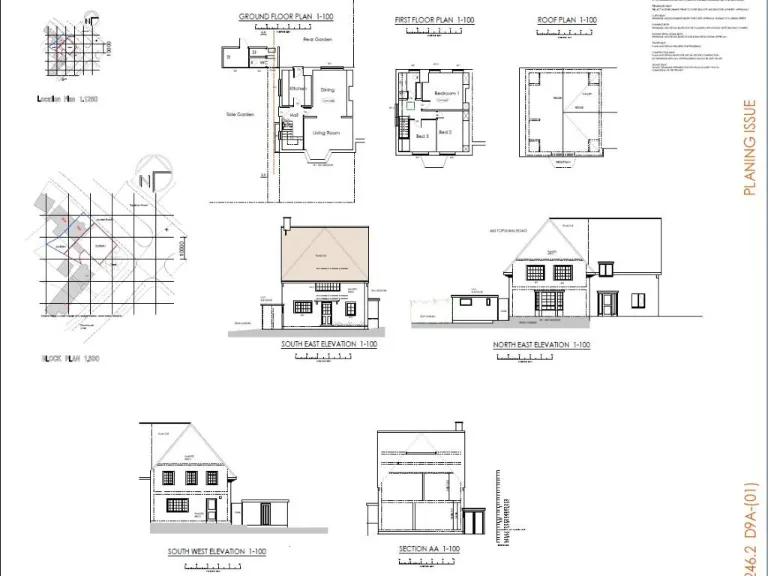
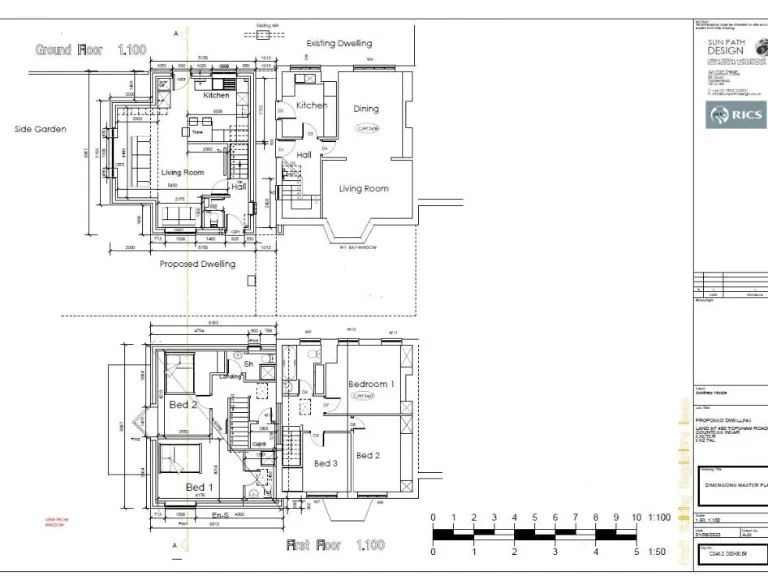
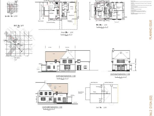
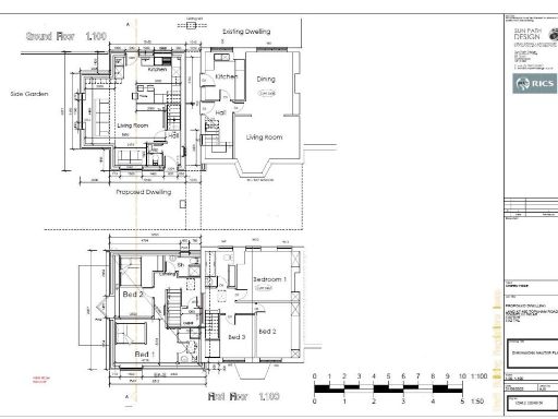
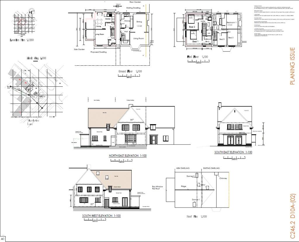
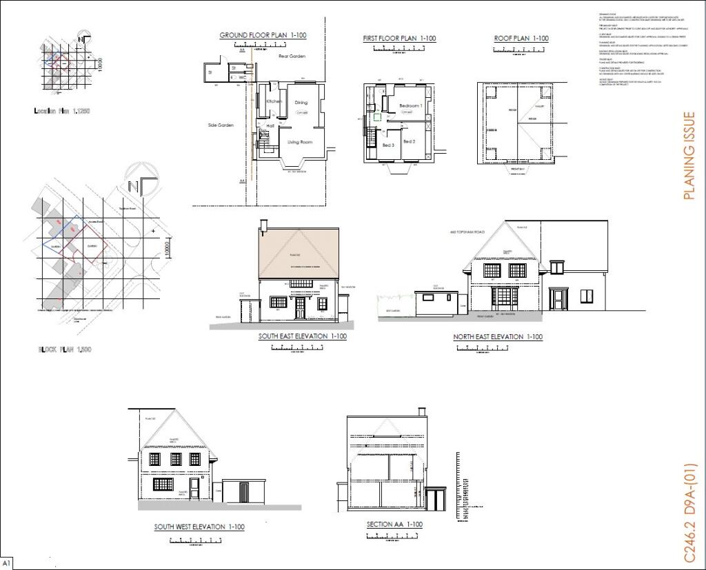
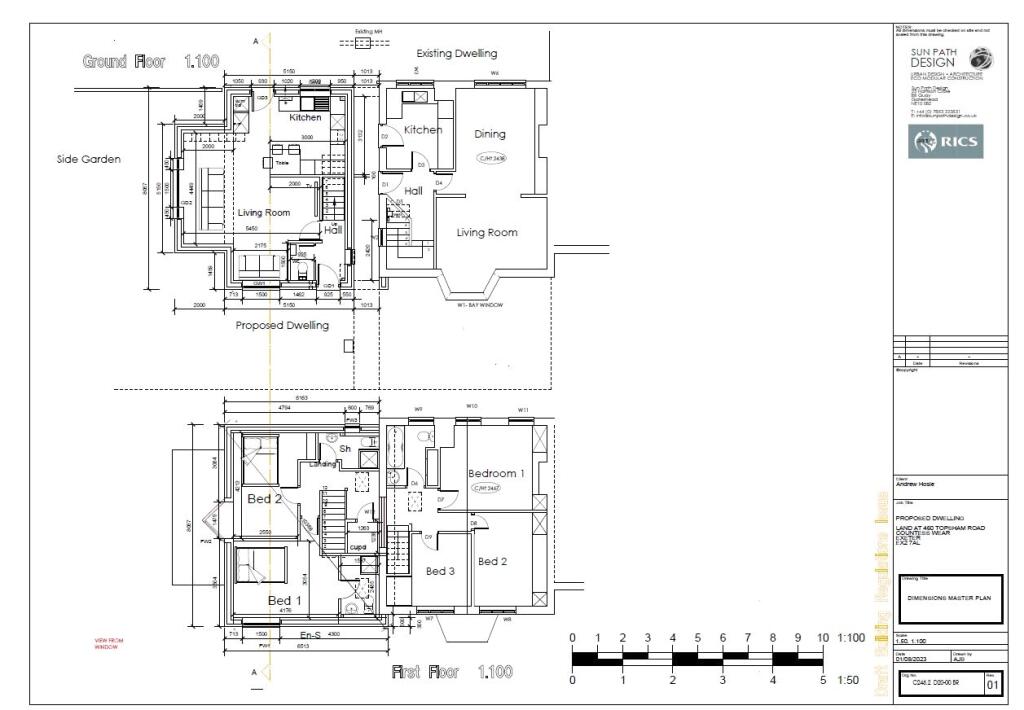
- Planning permission granted for a two-bedroom dwelling to the side (Reference: 22/1641/FUL)
- Freehold property with no chain
- Attractive, peaceful location on Topsham Road
- Generous front and rear gardens, along with parking including a garage
- Low crime area with excellent mobile and broadband connectivity
- Nearby amenities and schools
Nestled within a tranquil neighborhood, this three-bedroom semi-detached home offers a unique development opportunity ideal for investors or families seeking additional space. With planning permission already approved for a two-bedroom dwelling adjacent to the property, you have endless possibilities to expand and modernize your living space (Planning Reference: 22/1641/FUL).
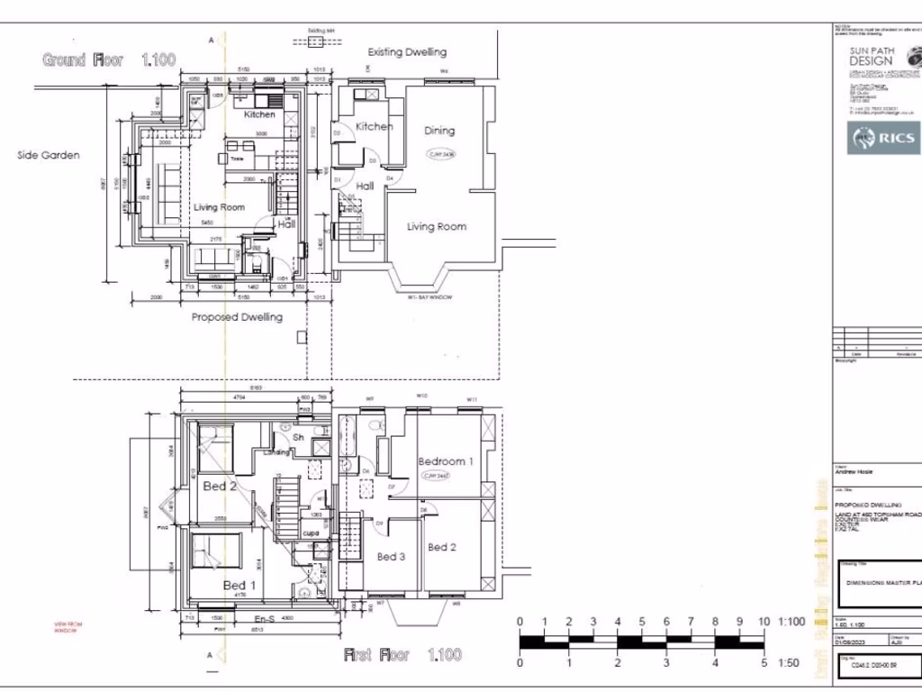
The main house features a spacious layout that includes two reception rooms, a functional kitchen, and three well-proportioned bedrooms, providing a solid foundation to customize to your style. While the internal spaces require modernization, the overall potential is significant, allowing you to truly make this home your own.
Outside, enjoy ample parking with a garage and pleasant gardens, perfect for outdoor activities or a quiet retreat. Situated in a dynamic area close to local amenities and reputable schools, this property is an exceptional opportunity for those ready to invest and enhance their living environment. With competitive pricing at £300,000, this gem won’t stay on the market for long—seize the chance to claim your dream home in Exeter!
3 bedroom terraced house for sale in Bowhay Lane, Exeter, Devon, EX4 — £260,000 • 3 bed • 1 bath • 998 ft²
3 bedroom semi-detached house for sale in Topsham Road, Exeter, EX2 — £435,000 • 3 bed • 1 bath • 1354 ft²
3 bedroom semi-detached house for sale in Wonford Street, Exeter, Devon, EX2 — £245,000 • 3 bed • 1 bath • 1024 ft²
3 bedroom end of terrace house for sale in Topsham Road, Countess Wear, Exeter, Devon, EX2 — £325,000 • 3 bed • 1 bath • 813 ft²
3 bedroom end of terrace house for sale in Seabrook Avenue, Exeter, EX2 — £330,000 • 3 bed • 1 bath • 1241 ft²
3 bedroom house for sale in Aller Vale Close, Exeter, Devon, EX2 — £270,000 • 3 bed • 1 bath • 768 ft²


















































































