EX2 7DW - 3 bedroom end of terrace house for sale in Seabrook Avenue,…

View on Property Piper

3 bedroom end of terrace house for sale in Seabrook Avenue, Exeter, EX2

Summary - 21 SEABROOK AVENUE EXETER EX2 7DW

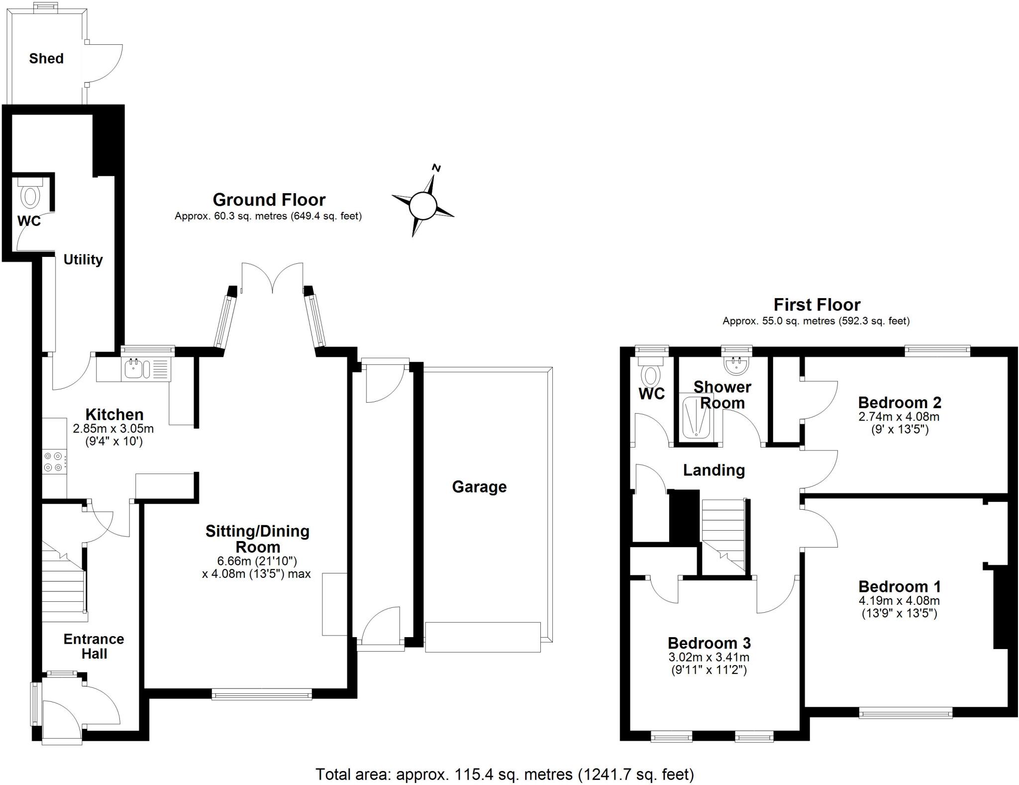
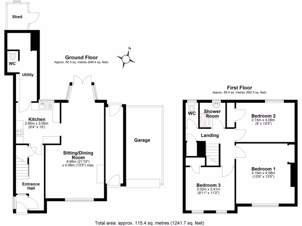
3 bed 1 bath End of Terrace

**Standout Features:**
- Spacious end-of-terrace, mid-20th century family home
- Three large double bedrooms
- Open plan living/dining area with a bay window
- Modern fitted kitchen and separate utility room
- Generous rear garden with patio and greenhouse
- Driveway and garage for ample parking
- Excellent potential for extension (subject to planning permission)
- Low crime rate and close proximity to local amenities and services

This charming end-of-terrace house presents an ideal opportunity for families or first-time buyers looking for a spacious home in Exeter. With three expansive double bedrooms and a light-filled, open plan living/dining room, this property boasts flexible living space perfect for relaxation and entertaining. The modern kitchen is well-appointed, leading to a practical utility room. Outside, the generous rear garden is perfect for gatherings and gardening enthusiasts, while the driveway and garage cater to all your parking needs.

Potential buyers will appreciate the excellent extension possibilities, allowing for personalized renovations to suit your family's lifestyle down the line (subject to necessary permissions). While the property presents well for immediate move-in, those looking to infuse their own style may find happy transformation opportunities. Given its competitive price of £330,000, coupled with the strong rental potential and fantastic location near local amenities and schools, this property is sure to attract attention. Don’t miss your chance to secure this lovely family home!

Property Details

Brochure Descriptions

Image Descriptions

Floorplan Description

Rooms

Textual Property Features

Detected Visual Features

EPC Details

Nearby Schools

Nearest Bars And Restaurants

,,,,}

Nearest General Shops

,,}

Nearest Grocery shops

,,}

Nearest Supermarkets

,,}

Nearest Religious buildings

,,}

Nearest Medical buildings

,,,}

Nearest Airports

}

Nearest Leisure Facilities

,,,,}

Nearest Tourist attractions

,,}

Nearest Train stations

,,,,}

Nearest Bus stations and stops

,,,,}

Nearest Hotels

,,}

Tags

Local Market Stats

Similar Properties

Meta

High Res Images

Compatible Images

Low res Images

Thumbnails

Raw Images

High Res Floorplan Images

Compatible Floorplan Images

Low res Floorplan Images

FloorplanImages Thumbnail

Raw Floorplan Images