Huge new-build warehouse with offices, parking and strong Cambridge road links.
Extremely large warehouse: 11,286 sq ft total area
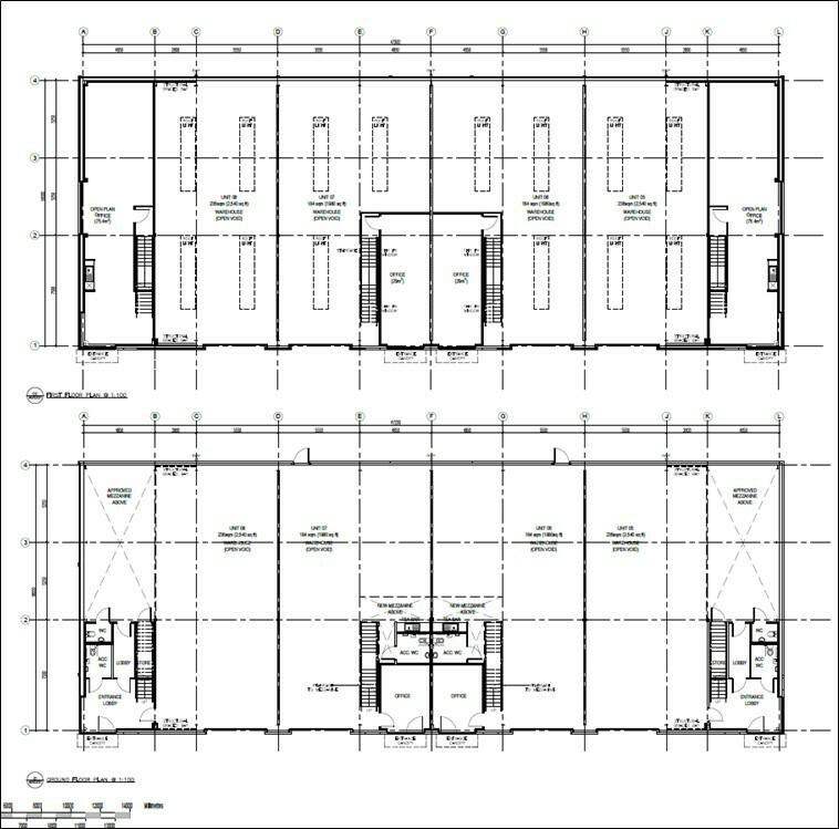
A substantial new-build warehouse unit in Meridian Court, Compass Point, delivered Summer 2025. Each unit includes fitted first-floor offices, an entrance lobby, WC and kitchenette, plus roller-shutter warehouse access and allocated parking bays. The development benefits from modern steel-frame construction, tall warehouse ceilings and plentiful natural light to end-of-terrace units.
This property suits owner-occupiers or investors seeking a large, contemporary industrial/commercial asset close to St Ives with excellent road links to Cambridge via the A1307 and the new A14. The site sits in an affluent area with fast broadband and strong mobile signal — practical for logistics, light industrial, or office-led operations.
Buyers should note practical considerations upfront: purchasers must contribute to an estate service charge (including the wider Compass Point estate contribution), and tenure details are not specified in the information provided. While the units are new and finished externally, internal fit-out and bespoke finishes may be required to suit specific operational needs.
Overall this is a rare opportunity to acquire a very large, modern unit with high-quality office provision, immediate access to major routes, and significant on-site parking. It is best for businesses needing generous warehouse volume or investors targeting long-term commercial rental demand in a well-connected Cambridge‑area location.
Warehouse for sale in Unit 50 Edison Road, St. Ives, Cambridgeshire, PE27 3LH, PE27 — POA • 1 bed • 1 bath • 3811 ft²
Warehouse for sale in Osprey Court, Kingfisher Way, Huntingdon, Cambridgeshire, PE29 — £760,000 • 1 bed • 1 bath • 6263 ft²
Commercial development for sale in Compass Point Business Park, Stocks Bridge Way, St. Ives, Cambridgeshire, PE27 5JL, PE27 — £900,000 • 1 bed • 1 bath
Commercial development for sale in Park Land, Compass Point Business Park, Stocks Bridge Way, St. Ives, Cambridgeshire, PE27 5JL, PE27 — £330,000 • 1 bed • 1 bath • 13504 ft²
Light industrial facility for sale in Brunel Court, St Ives, Cambridgeshire, PE27 3LW, PE27 — £1,550,000 • 1 bed • 1 bath • 19552 ft²
Light industrial facility for sale in Huntingdon Business Centre, 14 Blackstone Road, 14 Blackstone Road, Huntingdon, PE29 6EF, PE29 — £1,300,000 • 1 bed • 1 bath • 14580 ft²










































































































































