Three-bedroom fixer-up near good schools and fast transport connections.
Freehold three-bedroom end-terrace with driveway and small rear garden
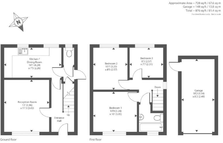
Approx. 728 sq ft internal space; overall property size described as small
Requires full renovation throughout; ideal for refurbishment projects
Roof contains asbestos tiles — specialist removal/repairs needed
Single bathroom only; traditional layout with five main rooms
Medium flood risk — consider mitigation and insurance costs
Fast broadband and excellent mobile signal; good transport links
Close to several Good and one Outstanding local schools
This three-bedroom end-of-terrace is a compact, freehold home with genuine scope for improvement. Set on a small plot with off-street parking and a driveway, the property suits buyers prepared to renovate and add value. The house dates from the 1950s, has cavity walls, double glazing (unknown install date) and mains gas heating via a boiler and radiators.
The location is practical: good local schools within a kilometre, nearby shops, green space and reasonable public transport links including Burnham rail services. Broadband is fast and mobile signal excellent, which supports family life or rental use. The area is ethnically diverse and the wider neighbourhood shows higher levels of deprivation; crime is described as average.
Important issues to note: the house needs renovation throughout and the roof uses asbestos-containing tiles, which will require specialist handling and cost when replacing or repairing. The layout is traditional with only one bathroom and overall internal space is modest (approx. 728 sq ft). There is a medium flood risk for the area.
For a hands-on buyer or investor, this property offers a clear value opportunity: modest purchase price, a driveway and garden, and good local amenities. Budget realistically for asbestos remediation, refurbishment and possible flood-related mitigation to unlock the full potential.
3 bedroom end of terrace house for sale in Waterbeach Road, Slough, SL1 — £399,950 • 3 bed • 1 bath • 767 ft²
3 bedroom semi-detached house for sale in Slough, Berkshire, SL1 — £400,000 • 3 bed • 2 bath • 876 ft²
3 bedroom end of terrace house for sale in Lower Cippenham Lane, Slough, SL1 — £450,000 • 3 bed • 2 bath • 899 ft²
3 bedroom house for sale in Slough, SL1 — £460,000 • 3 bed • 1 bath • 1047 ft²
3 bedroom terraced house for sale in Gascons Grove, Slough, SL2 — £430,000 • 3 bed • 1 bath • 948 ft²
3 bedroom semi-detached house for sale in Blumfield Crescent, Slough, SL1 — £525,000 • 3 bed • 2 bath • 912 ft²






