Modern one-bedroom retirement apartment with balcony and on-site care facilities.
- Exclusive Retirement Living PLUS for over 70s with 24/7 staff on-call
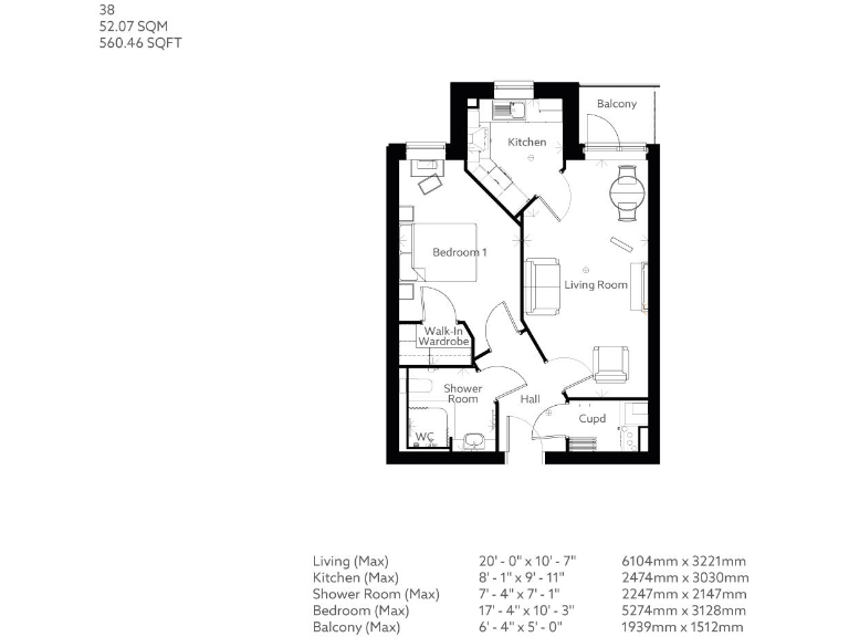
- Second-floor one-bedroom with walk-in wardrobe and accessible shower
- Private west-facing balcony with garden views
- Chef-run bistro, retail shop and landscaped communal gardens on site
- Shared ownership options; example prices £140k (50% share) or £210k (75% share)
- Leasehold with c.986 years remaining; service charge £321 pcm
- Heating via electric room heaters (higher running costs likely)
- Very slow broadband; local crime above average
Designed for over-70s, this second-floor, one-bedroom apartment in Gilbert Place offers easy, low-maintenance living with on-site care and community facilities. The apartment has a private west-facing balcony, a walk-in wardrobe, a fully fitted modern kitchen and an accessible shower room — practical features for comfortable retirement living. The development includes 24/7 on-call staff, a dedicated Estate Manager, landscaped gardens, a ground-floor retail shop and a chef-run bistro with seasonal menus.
This is a shared-ownership, leasehold property with flexible purchase shares (examples: £140,000 for 50% share, or £210,000 for 75% share with no rent). Service charge is £321 pcm and the long lease (approximately 986 years remaining) supports long-term security. Constructed in 2018, the apartment benefits from modern build quality and a high SAP rating potential (up to 89).
Notable practical issues to consider: heating is by electric room heaters which can be more expensive than mains gas; broadband speeds are reported as very slow; and local crime is above average. The property is aimed at downsizers seeking community living with optional tailored domestic or personal care — but those needing fast internet, low running costs or a gas central heating system should factor these downsides into their decision.
Overall this apartment suits someone looking for a sociable, managed retirement setting with modern accommodation and flexible shared-ownership options, who accepts higher running costs for electric heating and limited broadband performance.
1 bedroom apartment for sale in Gilbert Place, Lowry Way, Swindon, WIltshire, SN3 1FX, SN3 — £180,000 • 1 bed • 1 bath • 603 ft²
1 bedroom apartment for sale in Gilbert Place, Lowry Way, SN3 — £130,000 • 1 bed • 1 bath • 560 ft²
1 bedroom apartment for sale in Gilbert Place, Lowry Way, Swindon, WIltshire, SN3 1FX, SN3 — £198,750 • 1 bed • 1 bath • 560 ft²
1 bedroom apartment for sale in Gilbert Place, Lowry Way, SN3 — £195,000 • 1 bed • 1 bath • 560 ft²
1 bedroom retirement property for sale in Lowry Way,
Swindon,
SN3 1FX
, SN3 — £210,000 • 1 bed • 1 bath • 627 ft²
2 bedroom apartment for sale in Gilbert Place, Lowry Way, Swindon, WIltshire, SN3 1FX, SN3 — £350,000 • 2 bed • 1 bath • 904 ft²


































































































































