Comfortable one-bed retirement apartment with on-site care, bistro and landscaped gardens.
Purpose-built Retirement Living PLUS with 24/7 staff and Estate Manager
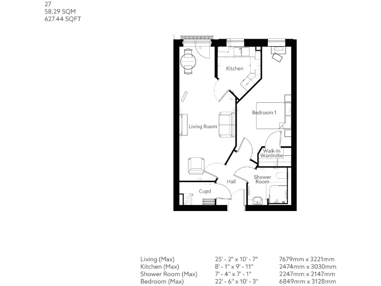
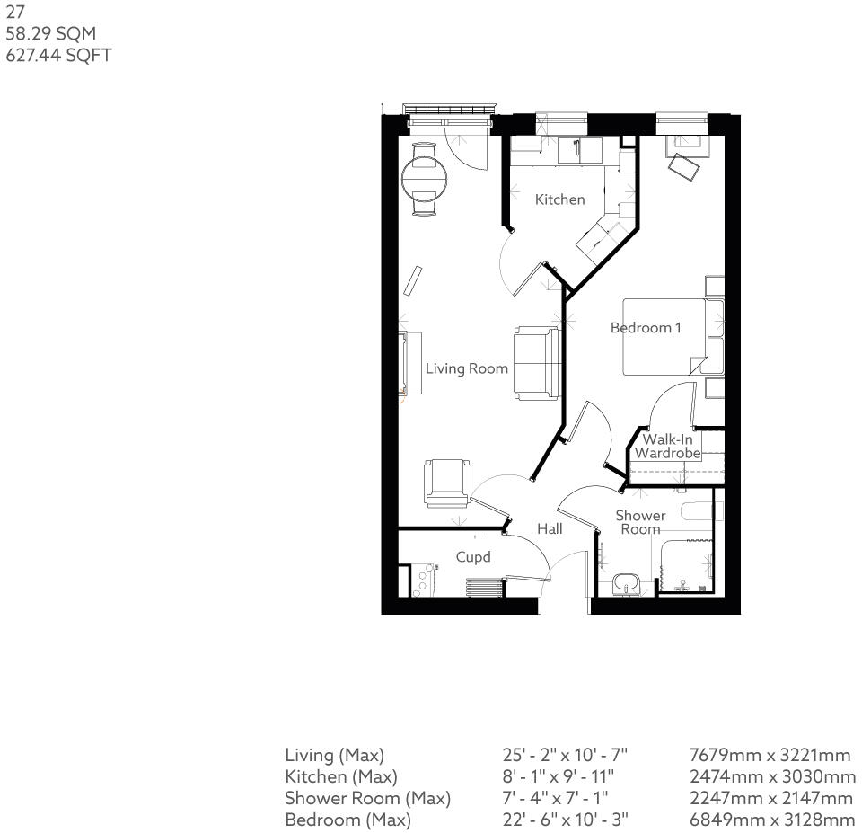
Apartment 27 is a contemporary, one-bedroom Retirement Living PLUS apartment on the first floor, ideal for someone seeking independent living with on-site support. The scheme offers 24/7 staff cover, a dedicated Estate Manager, an on-site chef-run bistro and a retail shop, plus well-kept communal gardens and a small private Juliet balcony overlooking landscaped grounds.
The apartment is designed for ease of use: a walk-in wardrobe, fully accessible shower room, separate fitted kitchen and additional storage. At around 627 sq ft and with a high SAP rating (up to 88), the flat feels roomy for a one-bedroom and benefits from a long lease (986 years) and new-build construction (2018).
Ownership options include shared ownership (examples given for 50% and 75% shares) offering flexibility on upfront cost. Service charge is stated as £321 pcm (below average for similar developments), and the property comes with a strong on-site care proposition that can include tailored domestic support and personal care if required.
Notable drawbacks are factual and important: this is a leasehold/shared ownership property with ongoing service charges; heating is electric room heaters rather than gas central heating; broadband speeds are described as very slow; and local crime levels are listed as above average. Council tax band is not specified. Buyers should factor these into running costs and lifestyle needs.
1 bedroom retirement property for sale in Lowry Way,
Swindon,
SN3 1FX
, SN3 — £195,000 • 1 bed • 1 bath • 560 ft²
1 bedroom apartment for sale in Lowry Way, Swindon, SN3 — £198,750 • 1 bed • 1 bath • 560 ft²
2 bedroom apartment for sale in Lowry Way, Swindon, SN3 — £340,000 • 2 bed • 1 bath • 818 ft²
1 bedroom retirement property for sale in Lowry Way, Swindon, SN3 — £180,000 • 1 bed • 1 bath • 560 ft²
1 bedroom retirement property for sale in Lowry Way,
Swindon,
SN3 1FX
, SN3 — £210,000 • 1 bed • 1 bath • 560 ft²
1 bedroom apartment for sale in Lowry Way, Swindon, SN3 — £265,000 • 1 bed • 1 bath • 560 ft²






























































































































