**Standout Features:**
- 50% shared ownership for eligible buyers
- Independent retirement living for those aged 70 and above
- Modern one-bedroom apartment within a newly constructed complex
- 24/7 on-site staff for enhanced security and care
- Landscape gardens with serene seating areas, ideal for relaxation
- Bistro serving hot meals daily and a wellness suite including a hairdressing salon
- Convenient co-op food store located on-site
- Off-street parking options available for purchase
- National Health Building Council (NHBC) 10-year warranty for peace of mind
**Summary:**
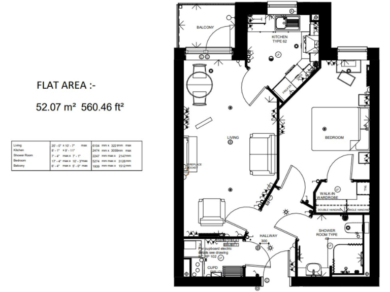
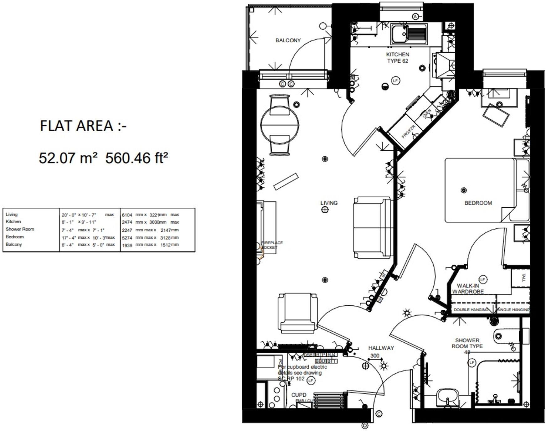
Welcome to Gilbert Place, a vibrant community designed for independent living tailored for those over 70. This modern and elegant one-bedroom apartment spans 560 square feet and offers an open-plan living space complete with contemporary finishes, ideal for comfortable solo or couple living. Wake up to the tranquility of well-maintained landscaped gardens, take advantage of a fully licensed bistro for daily meals, and enjoy the convenience of a wellness suite and co-op store just steps away.
Safety is at the forefront with a 24-hour emergency call system, intruder alarms, and personal pendant alarms, ensuring peace of mind. The apartment boasts a walk-in wardrobe and an efficient fitted kitchen with integrated appliances, plus a shower room fitted with high-quality sanitary ware. Accessible community amenities encourage socialization while providing private quiet areas for relaxation — perfect for those seeking a balanced lifestyle.
Though situated in a bustling area, it is important to note that the local crime rate is above average, making individual vigilance a consideration. With its blend of modern living and supportive community features, this retirement property is perfect for those looking to enjoy their golden years with ease and comfort. Don't miss the opportunity to become part of this exclusive community; properties like this don’t stay on the market long!
1 bedroom apartment for sale in Gilbert Place, Lowry Way, SN3 — £195,000 • 1 bed • 1 bath • 560 ft²
1 bedroom retirement property for sale in Lowry Way,
Swindon,
SN3 1FX
, SN3 — £210,000 • 1 bed • 1 bath • 560 ft²
1 bedroom flat for sale in Lowry Way, Swindon, SN3 — £265,000 • 1 bed • 1 bath • 592 ft²
1 bedroom apartment for sale in Gilbert Place, Lowry Way, Swindon, WIltshire, SN3 1FX, SN3 — £180,000 • 1 bed • 1 bath • 603 ft²
1 bedroom retirement property for sale in Lowry Way, Swindon, SN3 — £180,000 • 1 bed • 1 bath • 560 ft²
1 bedroom apartment for sale in Lowry Way, Old Town, Swindon, Wiltshire, SN3 — £225,000 • 1 bed • 1 bath • 609 ft²


























































