Bright, low-maintenance bungalow close to Barnes Bridge and excellent schools.
Freehold single-storey living with step-free access
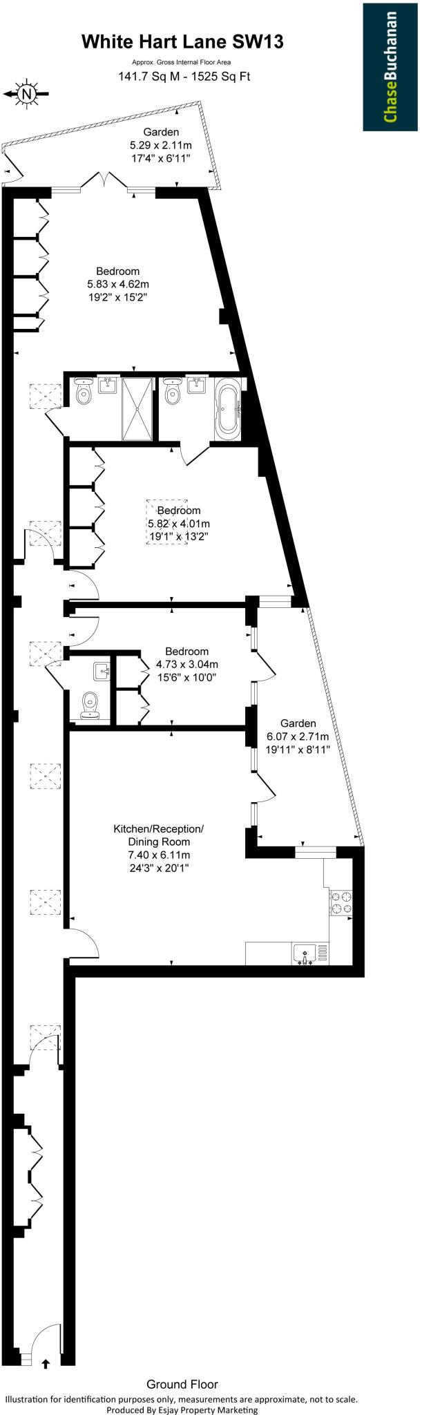
Tucked in SW13 near Barnes Bridge station, this single-storey freehold bungalow offers step-free living in a quiet, well-regarded pocket. The interior is bright and contemporary with an open-plan reception/kitchen, wood flooring and three bathrooms — suited to buyers wanting low-maintenance, single-level accommodation.
The house provides two secluded courtyard gardens and secure gated off-street parking. Local amenities are strong and outstanding primary schools are within easy reach, making the location attractive for downsizers and professionals who prioritise convenience and good schools.
The property has a narrow, elongated footprint and compact courtyard gardens rather than large rear lawns. There is clear potential to modernise or reconfigure the internal layout to increase value, but buyers should expect refurbishment and design work to optimise space.
Practical points: the estate charge is modest at £627.83 pa and the home is offered chain-free. Council tax is described as expensive, and neighbouring buildings sit fairly close, so privacy is good but not secluded.
3 bedroom bungalow for sale in White Hart Lane, Barnes, London, SW13 — £950,000 • 3 bed • 3 bath • 1500 ft²
2 bedroom detached bungalow for sale in Malthouse Passage, Barnes, London, SW13 — £650,000 • 2 bed • 1 bath • 710 ft²
3 bedroom bungalow for sale in Woodlawn Crescent, Whitton, TW2 — £724,950 • 3 bed • 1 bath • 902 ft²
2 bedroom bungalow for sale in Amis Avenue, New Haw, KT15 — £495,000 • 2 bed • 2 bath • 798 ft²
3 bedroom bungalow for sale in Knightwood Crescent, New Malden, KT3 — £749,950 • 3 bed • 1 bath • 1323 ft²
3 bedroom detached house for sale in Charles Street, Barnes, London, SW13 — £1,450,000 • 3 bed • 2 bath • 1496 ft²


















































































