Chain-free, single-storey home with extended kitchen and off-street parking.
Three bedrooms arranged all on one level, ideal for single-storey living
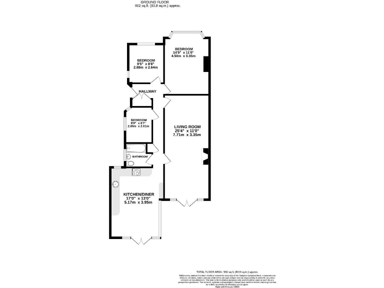
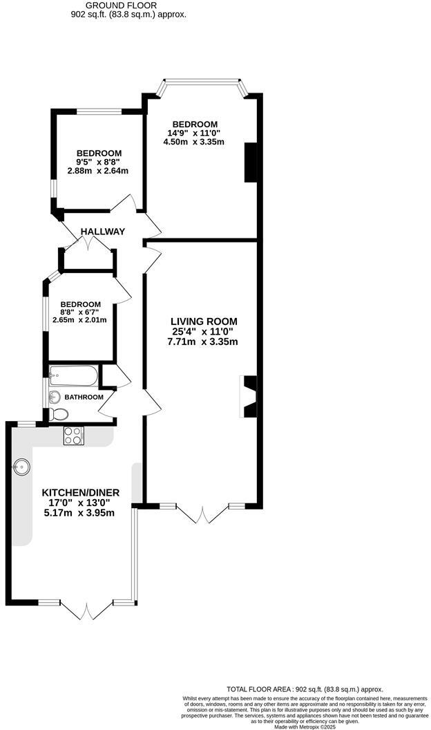
A well-presented three-bedroom semi-detached bungalow arranged all on one level, offered chain free and freehold — ideal for downsizers or small families seeking single-storey living near Whitton High Street and station. The property has been extended to the rear to create a bright kitchen/breakfast room with skylight and integrated appliances, overlooking a secluded, well-kept rear garden. A large through lounge (approx 25ft depth) provides roomy living and dining space.
Practical benefits include off-street driveway parking for several cars, double-glazed windows and gas central heating to radiators. The former garage at the rear is a useful storage/utility room with light and power and could be adapted for a home office or hobby room. Local amenities, good schools and easy road links (A316) add everyday convenience.
Notable constraints are that the house is modest in overall footprint (approx 902 sq ft) with a single family bathroom and standard ceiling heights in most rooms. Presentation is good but there remains sensible scope for modernisation or reconfiguration if a buyer wants more open-plan living or to reinstate/convert the former garage. Council tax is above average; there are no flooding risks recorded.
3 bedroom semi-detached bungalow for sale in Woodlawn Crescent, Twickenham, TW2 — £724,950 • 3 bed • 1 bath • 1173 ft²
3 bedroom bungalow for sale in Villiers Avenue, Whitton, Twickenham, TW2 — £600,000 • 3 bed • 1 bath • 678 ft²
3 bedroom bungalow for sale in Lyndhurst Avenue, Whitton, TW2 — £550,000 • 3 bed • 1 bath • 675 ft²
3 bedroom bungalow for sale in Sheringham Avenue, Whitton, Twickenham, TW2 — £565,000 • 3 bed • 1 bath • 929 ft²
3 bedroom bungalow for sale in Glasbrook Avenue, Twickenham, TW2 — £549,950 • 3 bed • 1 bath • 871 ft²
3 bedroom bungalow for sale in The Ridge, Whitton, TW2 — £650,000 • 3 bed • 1 bath • 692 ft²






















































