High-yield conversion opportunity close to transport and town amenities.
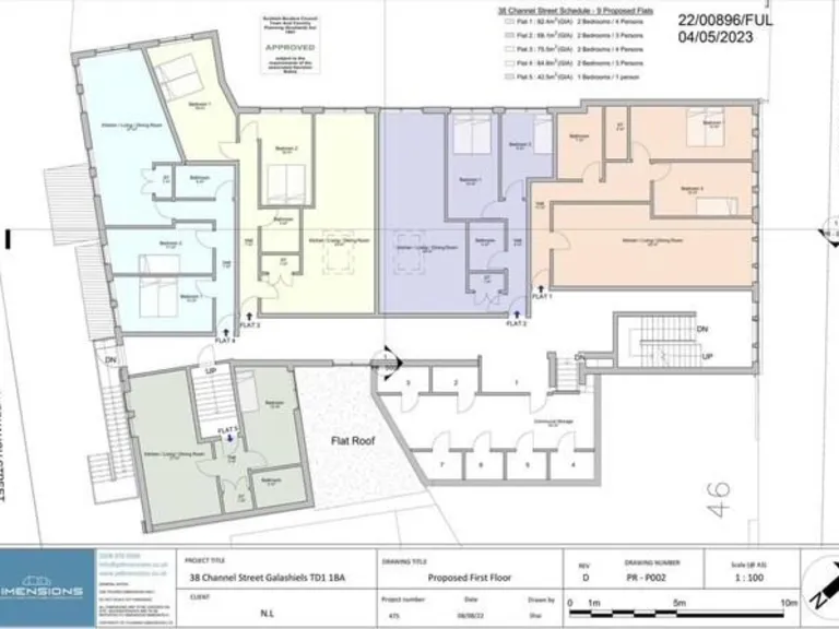
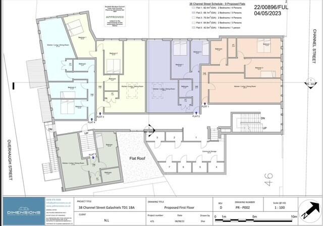
Freehold building with planning consent for five flats (ref 22/00896/FUL)
A mid-20th-century mixed-use building on Channel Street offered freehold with planning permission (ref 22/00896/FUL) to convert the upper levels into five residential flats. The consented scheme yields clear upside: projected rental income around £50,000 per year or individual sale values quoted up to £125,000 each, subject to final specification and market conditions. The ground-floor retail unit provides an active shopfront in a town-centre location.
This is an investor-focused opportunity. The property is vacant on the upper levels and will require refurbishment and fit-out to deliver the consented flats — buyers should budget for conversion costs, VAT where applicable and any unforeseen building works. The site benefits from excellent mobile signal, fast broadband and immediate proximity to train and bus stations and major supermarkets, supporting lettability and commuter demand.
Material considerations: the building sits in a very deprived area and will be sold at auction, which affects marketing time and may limit finance options. The figures for rental and resale are estimates based on planning documents and local comparables; final returns depend on specification, management and grant/consent conditions. Planning documents are viewable via Scottish Borders Council (ref 22/00896/FUL).
Suitable buyers are professional property investors or experienced developers who can manage refurbishment and letting in a constrained-renter market. The sale may accept pre-auction offers; check legal pack and budget for conversion and operating costs before bidding.
Commercial property for sale in 38 Channel Street, Galashiels, Scottish Borders, TD1 1BA, TD1 — £197,000 • 1 bed • 1 bath • 4960 ft²
Commercial property for sale in 38 Channel Street, Galashiels, Scottish Borders, TD1 1BA, TD1 — £140,000 • 1 bed • 1 bath • 4960 ft²
Commercial property for sale in 80/82 Channel Street, Galashiels, Selkirkshire, TD1 — £130,000 • 1 bed • 1 bath • 2787 ft²
Mixed use property for sale in Channel Street, Galashiels, Selkirkshire, TD1 1BA, TD1 — £20,000 • 1 bed • 1 bath • 1323 ft²
2 bedroom flat for sale in 24 Sime Place, Galashiels, TD1 1ST, TD1 — £125,000 • 2 bed • 1 bath • 786 ft²
3 bedroom flat for sale in 29/3 Channel Street, Galashiels, TD1 1BJ, TD1 — £155,000 • 3 bed • 2 bath • 1292 ft²






















