Ground-floor income plus approved residential conversion potential in a commuter town.
Freehold commercial building with very large internal area
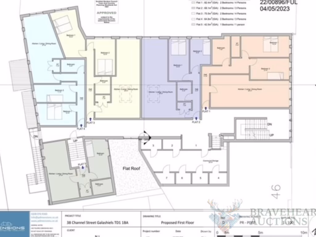
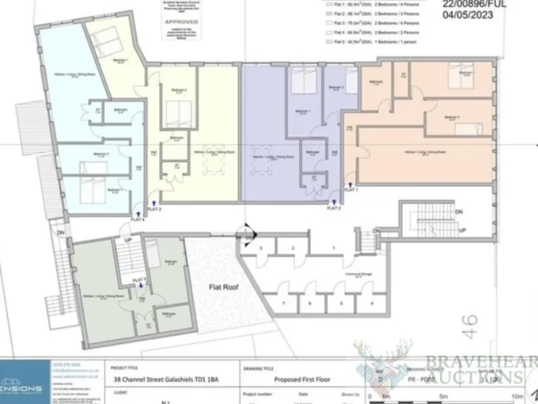
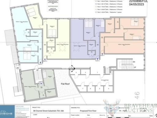
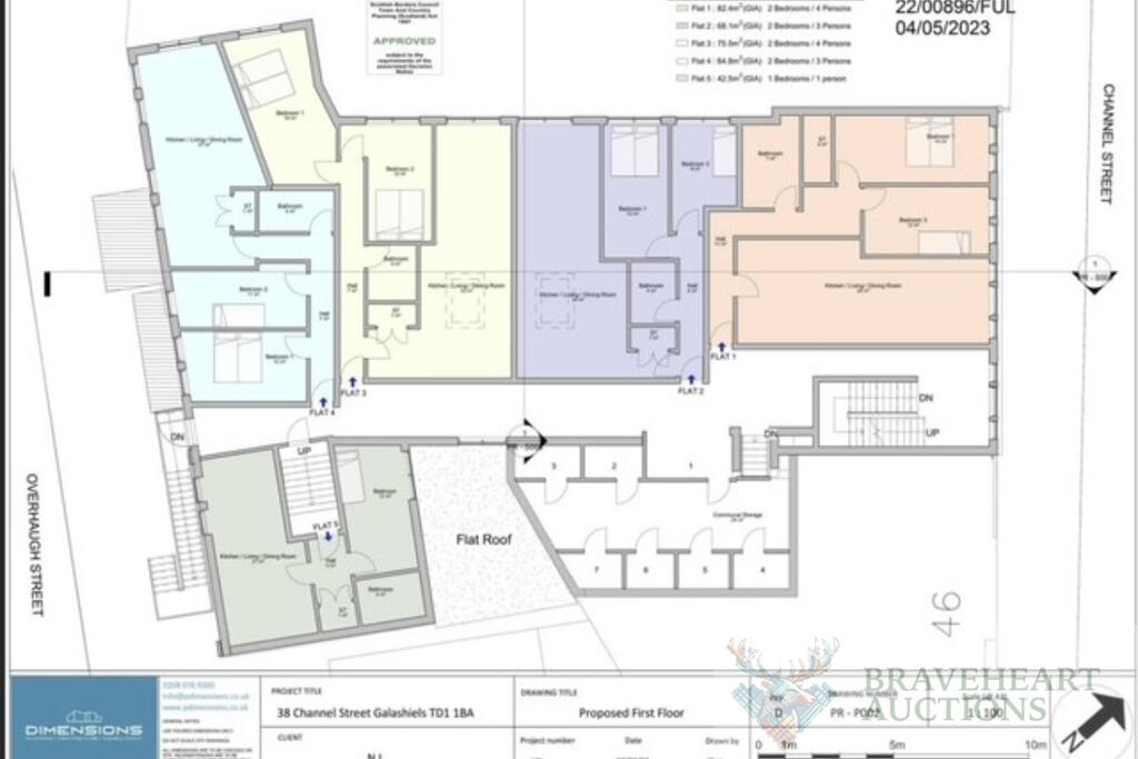
A large freehold commercial building in Galashiels offering immediate rental income and clear redevelopment potential. The ground floor houses a Grade A tenant (Savers) paying £16,440 per year, providing stable income until at least September 2029. Upper floors have planning permission (ref 22/00896/FUL) to convert to five residential flats, creating a meaningful uplift in value or rental return once developed.
This is delivered as an auction sale, attractive to investors seeking a mixed-income asset with near-term development upside. The retail unit is substantial (c.461sqm) and well positioned close to transport hubs and major retailers, supporting tenant demand. The property is freehold and benefits from excellent mobile signal and fast broadband — practical advantages for future residential or commercial occupants.
Buyers should note material drawbacks plainly: the tenant has only five years remaining on their lease following a recent extension, which may cause mortgage lenders to refuse lending. The surrounding area is classified as very deprived and the wider demographic includes constrained renters and migrant families, factors that should be considered when assessing rental levels and exit strategies. The upper floors are currently vacant and will require refurbishment to meet conversion standards and to achieve the projected sales or rental values.
This opportunity suits investors or property developers confident in executing the approved conversion or holding for rental growth. The auction format and the seller’s indication that pre-auction offers may be considered create a potential window for negotiation, but purchasers must factor in refurbishment costs, planning compliance, and financing constraints due to the short lease term on the ground-floor tenant.
Commercial property for sale in Ladhope Vale House, Galashiels, TD1 1BT, TD1 — £180,000 • 1 bed • 4 bath • 4941 ft²
Commercial property for sale in 94 High Street, Galashiels, Selkirkshire, TD1 — £37,500 • 1 bed • 1 bath • 307 ft²
7 bedroom guest house for sale in Monorene Guest House, 23 Stirling Street, Galashiels, Selkirkshire, TD1 1BY, TD1 — £300,000 • 7 bed • 5 bath • 2723 ft²
2 bedroom flat for sale in 24 Sime Place, Galashiels, TD1 1ST, TD1 — £125,000 • 2 bed • 1 bath • 786 ft²
Commercial property for sale in Former Public Conveniences - Bank Street, Galashiels, Selkirkshire, TD1 — £15,000 • 1 bed • 1 bath • 379 ft²
Land for sale in 113 - 117 High Street, Galashiels, TD1 — £250,000 • 1 bed • 1 bath • 12527 ft²






























