Substantial renovation project with parking and conversion potential.
Three-storey Georgian terrace with period features and high sash windows
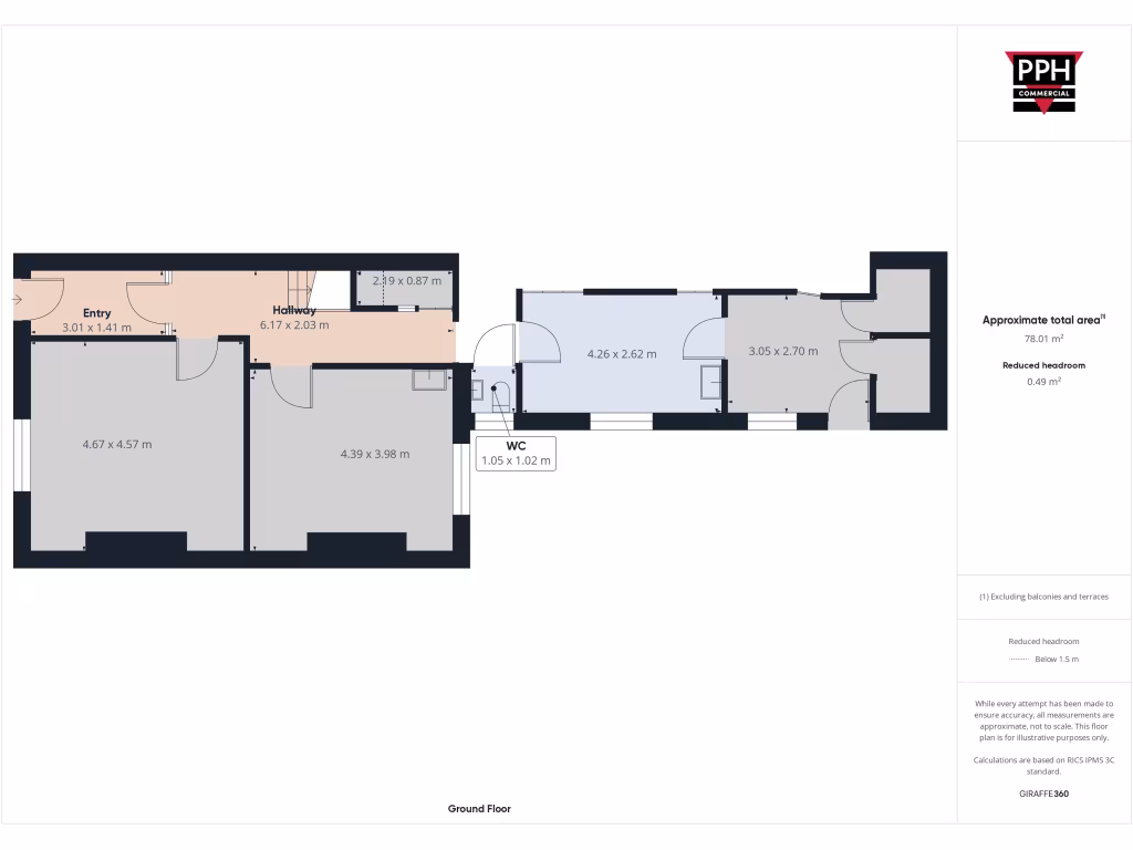
Set over three traditional floors, 21 Beverley Road is a substantial Georgian terraced building offering 1,737 sqft of adaptable space. The property retains period character — high sash windows, classical proportions and a small front garden — and includes a private gated courtyard to the rear with parking for about four cars. It has previously operated as a dental studio with interconnecting offices and ground-floor workshop areas.
The building is priced at £110,000, presenting a clear opportunity for investors or owner-occupiers willing to modernise. Internally the space requires significant updating: dated flooring, worn fixtures and reported damp patches will need attention, and broadband speeds in the area are very slow. Any change to residential use would require planning consent; no applications or approvals are in place.
Location strengths include proximity to Hull city centre, good public transport links and local amenities. However, the surrounding neighbourhood is classified as very deprived with above-average crime rates — these are important considerations for future use or lettability. Mobile signal is excellent, and the low flood risk reduces insurance complications.
This building will suit buyers seeking a renovation project with scope to add value, or developers able to navigate planning for conversion. The combination of period character, private parking and substantial floorplate provides a practical blank canvas for office refurbishment or a residential scheme, subject to the necessary consents.
Office for sale in 18 John Street, Hull, East Yorkshire, HU2 8DH, HU2 — £170,000 • 1 bed • 1 bath • 1490 ft²
Office for sale in 16-20 George Street, Hull, East Yorkshire, HU1 — £195,000 • 1 bed • 1 bath • 2476 ft²
Office for sale in Ladygate House, Ladygate, Beverley, East Riding of Yorkshire, HU17 — £195,000 • 1 bed • 1 bath • 1088 ft²
Land for sale in 7 Jarratt Street, HU1 — £220,000 • 1 bed • 1 bath • 1842 ft²
Office for sale in 49 Grosvenor Street, Hull, East Yorkshire, HU3 1RU, HU3 — £300,000 • 1 bed • 1 bath • 2821 ft²
Commercial property for sale in 37-39 George Street, Hull, HU1 3BA, HU1 — £235,000 • 1 bed • 1 bath • 2566 ft²










































































