Spacious three-bedroom property with garden room and excellent commuter links into London.
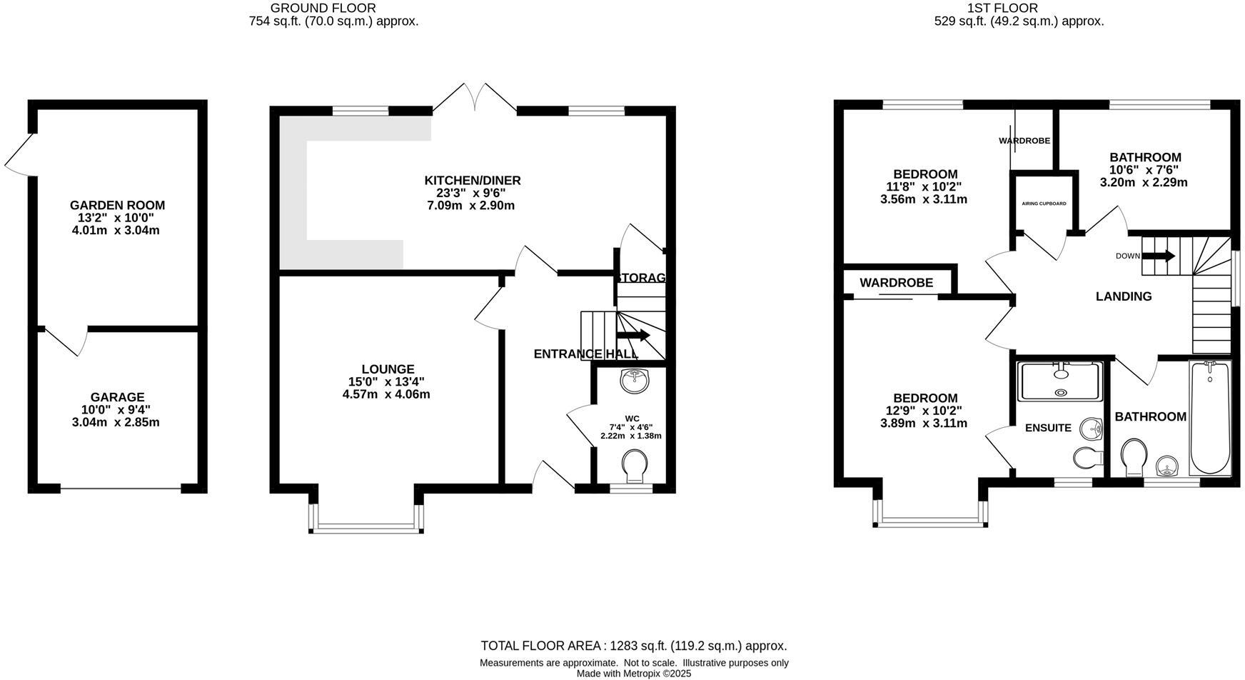
- Detached three-bedroom family house, approx. 1,283 sq ft
- Large open-plan kitchen/diner with integrated appliances
- Principal bedroom with fitted wardrobes and ensuite
- Garden room ideal for home office or studio
- Garage plus block-paved driveway for multiple vehicles
- Freehold tenure and about 1.2 miles to Brentwood Station
- Council tax rated above-average; budget for higher running costs
- Local recorded crime levels are high; check neighbourhood security
Set in sought-after Great Warley, this well-presented three-bedroom detached house offers spacious family living across approximately 1,283 sq ft. A large open-plan kitchen/diner with integrated appliances and double doors to the garden creates a bright entertaining hub, while a generous lounge provides a comfortable separate reception. The property benefits from a garden room ideal for a home office, an attached garage and a wide block-paved driveway for multiple cars.
The principal bedroom has fitted wardrobes and an ensuite, complemented by two further good-sized bedrooms and a modern family bathroom. Neutral, contemporary finishes and quality floor surfaces throughout mean the house is largely turn-key for incoming owners. Freehold tenure and easy access to Brentwood Station (about 1.2 miles) make commuting straightforward.
Local amenities and highly regarded schools are close by, strengthening the appeal for families. Practical points to note: council tax is above average for the area and recorded local crime levels are high; prospective buyers should satisfy themselves on safety and running costs. Overall this property suits buyers seeking a spacious, modern family home with off-street parking and easy transport links.
3 bedroom semi-detached house for sale in Linden Rise, Warley, Brentwood, CM14 — £525,000 • 3 bed • 1 bath • 1036 ft²
3 bedroom semi-detached house for sale in Warley Mount, Warley, Brentwood, CM14 — £550,000 • 3 bed • 1 bath • 972 ft²
4 bedroom detached house for sale in Riseway, Brentwood, Essex, CM15 — £1,000,000 • 4 bed • 3 bath • 1940 ft²
4 bedroom detached house for sale in Cromwell Road, Warley, Brentwood, CM14 — £750,000 • 4 bed • 2 bath • 1522 ft²
3 bedroom semi-detached house for sale in Brackens Drive, Warley, Brentwood, Essex, CM14 — £575,000 • 3 bed • 1 bath • 1052 ft²
3 bedroom semi-detached house for sale in Queen Street, Warley, CM14 — £525,000 • 3 bed • 2 bath • 1042 ft²






































































































