Exceptional family home with extensive gardens and entertaining spaces.
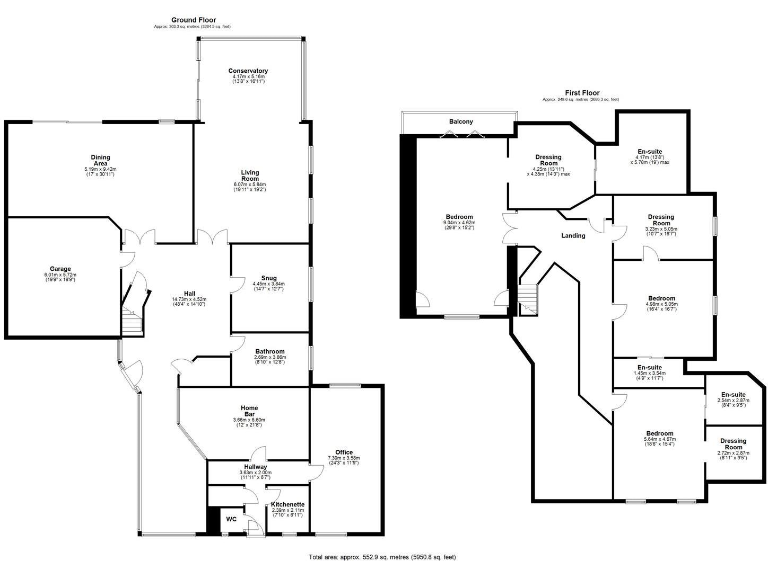
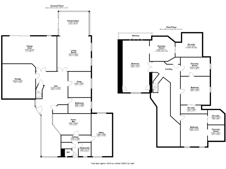
Over 5,000 sq ft of high-spec living and entertaining space
This substantial detached home delivers more than 5,000 sq ft of impeccably finished living space, designed for large-family living and entertaining. The ground floor flows from a high-spec Poggenpohl kitchen into generous reception rooms, a glazed atrium and bar/games room — ideal for multi-generational households or regular entertaining. A self-contained office/annex and a gym cabin add flexibility for working from home and leisure.
Quality fixtures and modern systems are evident throughout: underfloor heating, integrated Sonos and Lutron lighting, Miele and Gaggenau appliances, double glazing and full-fibre broadband. The principal suite includes a dressing room, en-suite and private balcony, while three further double bedrooms each benefit from en-suite facilities, creating comfortable family accommodation.
Outside, the plot is generous with electric-gated access, ample off-street parking, a double garage, raised terrace and a south-facing lawned garden that lends itself to alfresco entertaining. Practical outbuildings include a storage shed/workshop and a wooden gym cabin on the terrace.
Important considerations: the location records higher local crime levels and the property sits in an area flagged for deprivation; prospective buyers should assess neighbourhood suitability. Council tax is described as quite expensive. Some particulars, services and measurements remain to be independently verified — purchasers are strongly advised to commission full surveys and service checks before purchase.
4 bedroom detached house for sale in Castle Lodge Gardens, Rothwell, Leeds, LS26 — £425,000 • 4 bed • 3 bath • 1393 ft²
6 bedroom detached house for sale in The Goldings, 70 Leeds Road, Oulton, Leeds, LS26 — £1,950,000 • 6 bed • 5 bath • 3949 ft²
4 bedroom detached house for sale in Stone Brig Lane, Rothwell, Leeds, West Yorkshire, LS26 — £400,000 • 4 bed • 2 bath • 797 ft²
5 bedroom detached house for sale in Texas Street, Morley, Leeds, West Yorkshire, LS27 — £995,000 • 5 bed • 5 bath • 4800 ft²
4 bedroom detached house for sale in Royal Birkdale Way, Rothwell, Leeds, LS26 — £535,000 • 4 bed • 2 bath • 1460 ft²
4 bedroom detached house for sale in Oulton Drive, OULTON, Leeds LS26 8EN, LS26 — £395,000 • 4 bed • 2 bath • 1292 ft²










































































































































































































