**Standout Features:**
- Historic Victorian property built in 1837
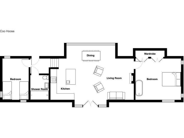
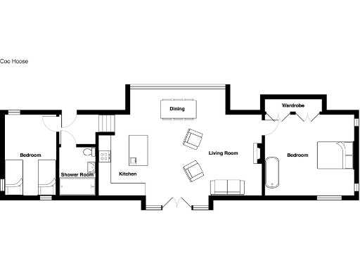
- Spacious 4-bedroom main house and separate 2-bedroom cottage
- Nestled on a sprawling nearly 3-acre lot with landscaped gardens
- High ceilings, large windows, and period features throughout
- Recent upgrades include new roof, handcrafted double glazing, and oil central heating
- Currently running as a successful holiday let business (Coo Hoose)
**Concerns:**
- Located in a remote rural area with slow broadband speeds
- Council tax is relatively high
Discover a rare treasure on the outskirts of Aboyne with this historic Victorian property, South Manse, combined with a charming two-bedroom cottage, The Coo Hoose. Set on an expansive 3-acre site, this elegant home oozes character with high ceilings, bay windows, and stunning period features, while modern upgrades like new double glazing and a new roof ensure comfort. The spacious living areas, complete with wood-burning stoves, offer perfect family gatherings, while a rustic dining kitchen equipped with an Aga promises culinary delights.
The property is not only a beautiful family residence but also a turnkey opportunity, as the Coo Hoose is an established holiday rental with repeat guests, offering lucrative income potential. Explore the extensive landscaped gardens, ideal for children and pets, or enjoy tranquil woodland, fostering a close connection with nature. While the area boasts a serene lifestyle in a sought-after location, prospective buyers may need to consider the remoteness and associated long-term broadband challenges.
With stunning surroundings, prestigious living, and endless potential, this unique opportunity won’t last long—setting up for you to enjoy breathtaking rural life combined with possible income generation. Don't miss the chance to call this exceptional property your own!
4 bedroom detached house for sale in South Manse, Birse, Aboyne, AB34 — £725,000 • 4 bed • 3 bath • 2605 ft²
6 bedroom semi-detached house for sale in The Cottage Dess Home Farm, Dess, Aboyne, Aberdeenshire, AB34 — £525,000 • 6 bed • 4 bath • 2798 ft²
4 bedroom detached house for sale in Taigh-Sa-Choille, Dess, Aboyne, Aberdeenshire, AB34 — £695,000 • 4 bed • 3 bath • 2239 ft²
6 bedroom detached house for sale in Mansefield, Alford, Aberdeenshire, AB33 — £650,000 • 6 bed • 2 bath • 5314 ft²
5 bedroom detached house for sale in Farleyer, Birse, Aboyne, Aberdeenshire, AB34 — £440,000 • 5 bed • 2 bath • 2368 ft²
4 bedroom farm house for sale in Lumphanan, Banchory, AB31 — £465,000 • 4 bed • 2 bath • 1668 ft²


































































































































































































































































