**Standout Features:**
- Exclusive new build semi-detached bungalow
- 2 bedrooms and 1 bathroom, functional internal layouts
- Extensive 10-year NHBC warranty for peace of mind
- High standard finishes with customizable options during build
- Secured by Design accredited, ensuring added security
- Modest service charge of £418 for common area maintenance
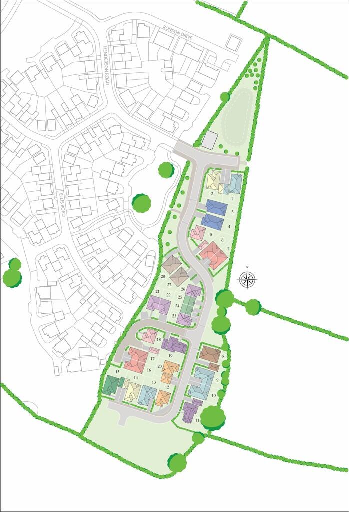
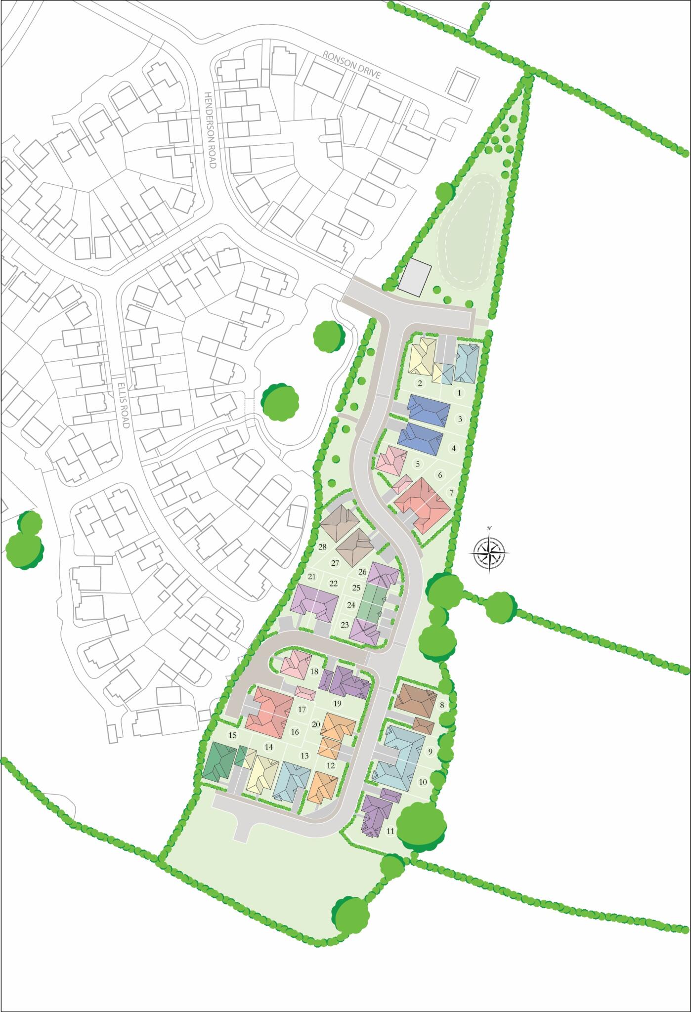
- Located on the edge of the desirable village of Thorpe-le-Soken
**Summary:**
Welcome to José Powell Gardens, a modern semi-detached bungalow perfectly designed for comfortable living on the outskirts of Thorpe-le-Soken. This brand-new home features a thoughtfully laid-out interior, boasting two well-proportioned bedrooms, a spacious living area, and a garden view accessible through patio doors, allowing for a seamless indoor-outdoor lifestyle. Enjoy the tranquility of a village setting, with local amenities, historic charm, and stunning countryside views just a stone's throw away.
This property is ideal for families, downsizers, or anyone looking for a peaceful retreat with the flexibility to personalize it to fit your needs, such as choosing flooring and fixtures. The added bonus of an extensive NHBC warranty and the assurance of a Secured by Design standard offers peace of mind for years to come. Don’t miss out on this exceptional opportunity to secure a modern home in an affluent area; properties like this are rare and won’t last long!
2 bedroom semi-detached bungalow for sale in 9 José Powell Gardens, Thorpe-le-Soken, CO16 — £362,500 • 2 bed • 1 bath • 772 ft²
3 bedroom detached bungalow for sale in Plot 4 (Hibiscus), 3 José Powell Gardens, CO16 — £450,000 • 3 bed • 2 bath • 1018 ft²
2 bedroom semi-detached bungalow for sale in 16 Jose Powell Gardens, CO16 — £340,000 • 2 bed • 1 bath • 763 ft²
2 bedroom terraced bungalow for sale in 12 José Powell Gardens, CO16 — £335,000 • 2 bed • 1 bath • 763 ft²
3 bedroom semi-detached bungalow for sale in 17 José Powell Gardens, Thorpe le Soken, CO16 — £475,000 • 3 bed • 2 bath • 1084 ft²
3 bedroom detached bungalow for sale in 4 José Powell Gardens , CO16 — £425,000 • 3 bed • 2 bath • 1073 ft²






































