Single-storey living with garage, big garden and NHBC warranty — ideal for downsizers..
Two double bedrooms, single-storey bungalow ideal for downsizers
Covered by NHBC 10-year warranty for build quality reassurance
Large private garden and detached garage with driveway parking
Generous living room and well-proportioned kitchen layout
Modest service charge £418 p.a. for communal maintenance
Photos are examples only; materials and dimensions may vary
Single bathroom only — limited wet-room provision for larger households
Freehold property; not in a flood-risk area (CO16 0FL)
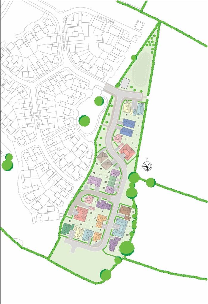
This two-bedroom semi-detached bungalow at José Powell Gardens is aimed squarely at buyers looking to downsize without compromise. The single-storey layout is thoughtfully proportioned, with a generous lounge, well-sized kitchen and two bedrooms arranged for easy, accessible living. A detached garage, driveway parking and a very large private garden extend the usable space and add long-term flexibility.
Built by an experienced developer and covered by a 10-year NHBC Buildmark, the home combines traditional construction with modern energy-saving materials and Secured by Design features. Buyers still in the reservation stage can personalise fixtures and finishes, making this a strong option for someone who wants a move-in-ready home tailored to their tastes.
Practical considerations are clear and factual: the property has a modest annual service charge of £418 for communal maintenance, internal photos are examples only and some dimensions may alter during construction. There is a single bathroom, so households needing additional washrooms should note the limitation. Overall, this is a low-maintenance, freehold bungalow in an edge-of-village setting with good local amenities and transport links.
2 bedroom semi-detached bungalow for sale in 7 José Powell Gardens, Thorpe-le-Soken, CO16 — £360,000 • 2 bed • 1 bath • 772 ft²
3 bedroom detached bungalow for sale in 2 José Powell Gardens, CO16 — £425,000 • 3 bed • 2 bath • 1073 ft²
3 bedroom detached bungalow for sale in Plot 4 (Hibiscus), 3 José Powell Gardens, CO16 — £450,000 • 3 bed • 2 bath • 1018 ft²
2 bedroom semi-detached bungalow for sale in 16 Jose Powell Gardens, CO16 — £340,000 • 2 bed • 1 bath • 763 ft²
2 bedroom semi-detached bungalow for sale in 14 José Powell Gardens, CO16 — £340,000 • 2 bed • 1 bath • 763 ft²
2 bedroom terraced bungalow for sale in 12 José Powell Gardens, CO16 — £335,000 • 2 bed • 1 bath • 763 ft²






































