Low‑maintenance single-storey home on a large plot, NHBC-backed and ready to personalise..
Detached single‑storey house on a very large plot, edge‑of‑village location
This new-build detached bungalow offers single-storey, low-maintenance living tailored for downsizers who want space without the upkeep. Set on a very large plot at the edge of Thorpe‑le‑Soken, the home is designed with practical internal layouts and generous room sizes — including a long open-plan lounge and kitchen and a principal bedroom with ensuite.
Finished by a reputable developer and covered by a 10‑year NHBC warranty, the property uses modern energy‑saving materials and is Secured by Design approved. Purchasers can personalise finishes (tiles, worktops, flooring) if instructed during the build phase, giving genuine scope to create a bespoke interior to suit lifestyle needs.
There are modest ongoing costs: a below‑average service charge of £418 per year applies for communal area maintenance. Marketing images and internal examples are illustrative only; final external finishes, layout dimensions and internal arrangements may vary and internal sizes are subject to standard construction tolerances.
Located on the village fringe, the address balances rural and coastal access with local amenities, good primary and secondary schools nearby, and regional walks and clubs close at hand. Freehold tenure and a no‑flood‑risk designation add to the practical appeal for long‑term occupation or retirement use.
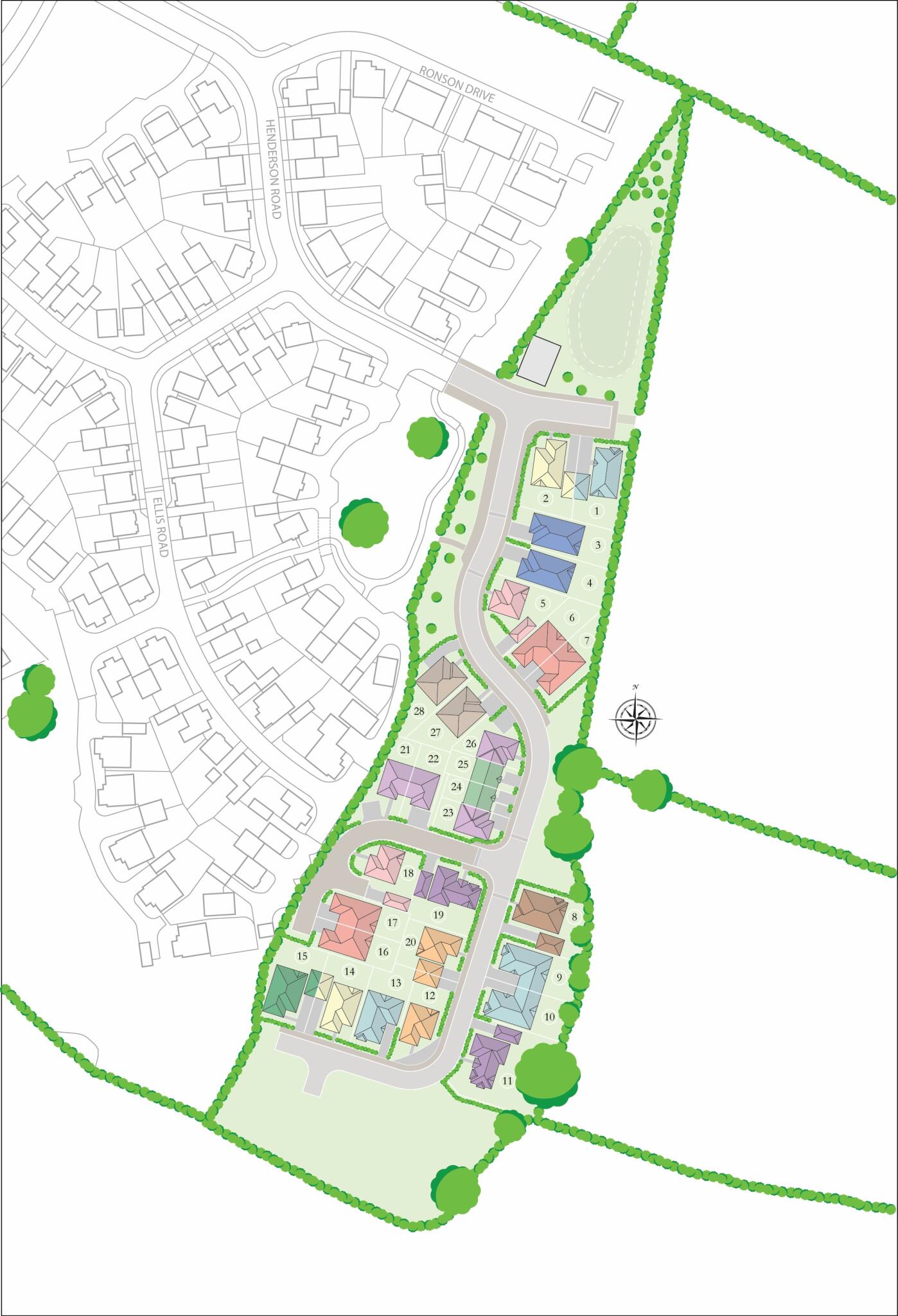
3 bedroom detached bungalow for sale in 32 José Powell Gardens, Thorpe le Soken, CO16 — £465,000 • 3 bed • 2 bath • 756 ft²
3 bedroom detached bungalow for sale in 30 José Powell Gardens, Thorpe Le Soken, CO16 — £480,000 • 3 bed • 2 bath • 1084 ft²
2 bedroom semi-detached bungalow for sale in 14 José Powell Gardens, CO16 — £340,000 • 2 bed • 1 bath • 763 ft²
3 bedroom semi-detached bungalow for sale in 15 José Powell Gardens, Thorpe-le-soken, CO16 — £475,000 • 3 bed • 2 bath • 1084 ft²
3 bedroom detached bungalow for sale in 24 José Powell Gardens, CO16 — £500,000 • 3 bed • 2 bath • 1117 ft²
1 bedroom terraced bungalow for sale in 8 José Powell Gardens, CO16 — £275,000 • 1 bed • 1 bath • 597 ft²










































































