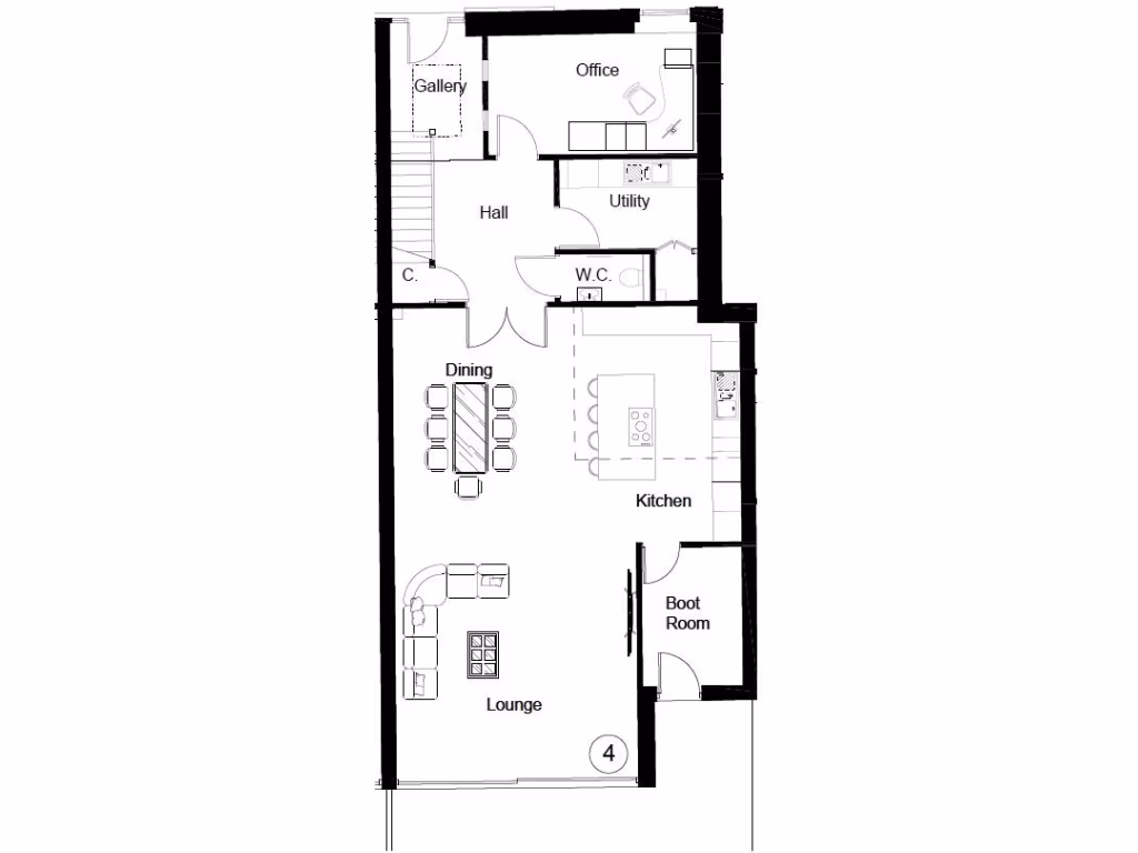
**Standout Features:**
- Spacious barn conversion from Holroyd Homes.
- Impressive open-plan living/dining kitchen with high ceilings.
- Three large double bedrooms, including an en-suite and dressing room.
- Features a boot room, study, utility room, and WC.
- Traditional exposed beams paired with modern fixtures.
- Generous garden with patio areas, car port parking, and a small paddock.
- Potential to purchase additional larger paddock.
- Nestled in a tranquil rural setting with stunning countryside views.
**Concise Summary:**
Discover the exceptional Hay Barn, a remarkable barn conversion set within the charming Seventy Acre Farm development. This beautifully designed home boasts a spacious open-plan living area with soaring ceilings, perfect for entertaining or family gatherings. Enjoy the comfort of three generously sized bedrooms, including a luxurious en-suite attached to the master suite, alongside modern amenities like a dedicated boot room and a study.
The property offers an idyllic outdoor space with a private garden, double garage parking, and a small paddock, ideal for those seeking a serene lifestyle while still close to town amenities. Surrounded by picturesque countryside views, this home presents a unique blend of traditional character and modern comfort—perfect for families or individuals craving a peaceful escape. With the potential for further land acquisition, this opportunity is ideal for nature enthusiasts or equestrian lovers. Act quickly—this final plot in phase one won't last long!
4 bedroom house for sale in Seventy Acre Farm, Meltham Road, Honley, Holmfirth, HD9 — £875,000 • 4 bed • 3 bath • 2725 ft²
3 bedroom house for sale in Seventy Acre Farm, Meltham Road, Honley, Holmfirth, HD9 — £650,000 • 3 bed • 2 bath • 2016 ft²
4 bedroom house for sale in Seventy Acre Farn, Meltham Road, Honley, Holmfirth, HD9 — £865,000 • 4 bed • 3 bath • 2554 ft²
4 bedroom house for sale in Seventy Acre Farm, Meltham Road, Honley, Holmfirth, HD9 — £690,000 • 4 bed • 3 bath • 2122 ft²
4 bedroom detached house for sale in Hollin Brigg Lane, Holmbridge, Holmfirth, HD9 — £925,000 • 4 bed • 2 bath • 2167 ft²
4 bedroom semi-detached house for sale in Drake Hill Cottage, Hey Slack Lane, Cumberworth, Huddersfield, HD8 — £799,950 • 4 bed • 2 bath • 1690 ft²














































