Large modern barn conversion with paddock, garage and countryside views — ideal family living..
Approx. 2,700–2,725 sqft of accommodation
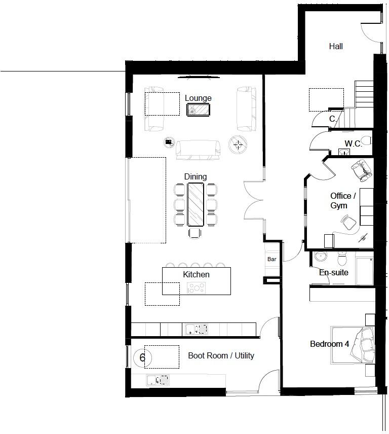
Dramatic open-plan living/dining kitchen with high angled ceiling
Four double bedrooms; two en‑suites and study/ground-floor bedroom
Wraparound garden, detached double garage and paddock beyond
Buyers can choose final kitchen and tiling finishes
Oil-fired central heating; main fuel is oil
Assumed stone walls with no cavity insulation; broadband very slow
Very affluent rural hamlet; low crime and excellent mobile signal
Set within the sensitive redevelopment of Seventy Acre Farm, this unique barn conversion delivers generous, light-filled living across approximately 2,725–2,700 sqft. The ground floor centres on a dramatic open-plan living, dining and kitchen under a high angled ceiling, with sliding doors that connect internal space to the wraparound garden and countryside views.
The home offers four double bedrooms, two en-suites plus a family bathroom, with a flexible ground-floor bedroom and a dedicated study/office. Fixtures and fittings are high quality and buyers have the remaining choice of final kitchens and tiling, allowing some personal specification before completion.
Externally the plot includes a detached double garage and a paddock immediately opposite, with an option to buy further paddock land. The property sits in a very affluent, low-crime rural hamlet with excellent mobile signal and easy access to good local schools.
Practical points to note: heating is by oil-fired boiler to radiators and broadband speeds are reported as very slow. The building’s stone walls date from before 1900 and are assumed to lack modern cavity insulation, though the development’s predicted EPC is 81 (Band B). Council tax banding is not yet confirmed.
4 bedroom house for sale in Seventy Acre Farm, Meltham Road, Honley, Holmfirth, HD9 — £690,000 • 4 bed • 3 bath • 2122 ft²
3 bedroom house for sale in Seventy Acre Farm, Meltham Road, Honley, Holmfirth, HD9 — £675,000 • 3 bed • 2 bath • 2135 ft²
4 bedroom house for sale in Seventy Acre Farn, Meltham Road, Honley, Holmfirth, HD9 — £865,000 • 4 bed • 3 bath • 2554 ft²
3 bedroom house for sale in Seventy Acre Farm, Meltham Road, Honley, Holmfirth, HD9 — £650,000 • 3 bed • 2 bath • 2016 ft²
4 bedroom detached house for sale in West Barn, Moss Edge Farm, Holmbridge HD9 — £950,000 • 4 bed • 3 bath • 1994 ft²
4 bedroom detached house for sale in Hollin Brigg Lane, Holmbridge, Holmfirth, HD9 — £925,000 • 4 bed • 2 bath • 2167 ft²






























































