**Standout Features:**
- Spacious barn conversion by Holroyd Homes.
- Approximately 3.5 acres including garden and adjoining paddock.
- Exceptional rural views from a desirable corner plot.
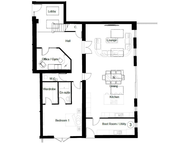
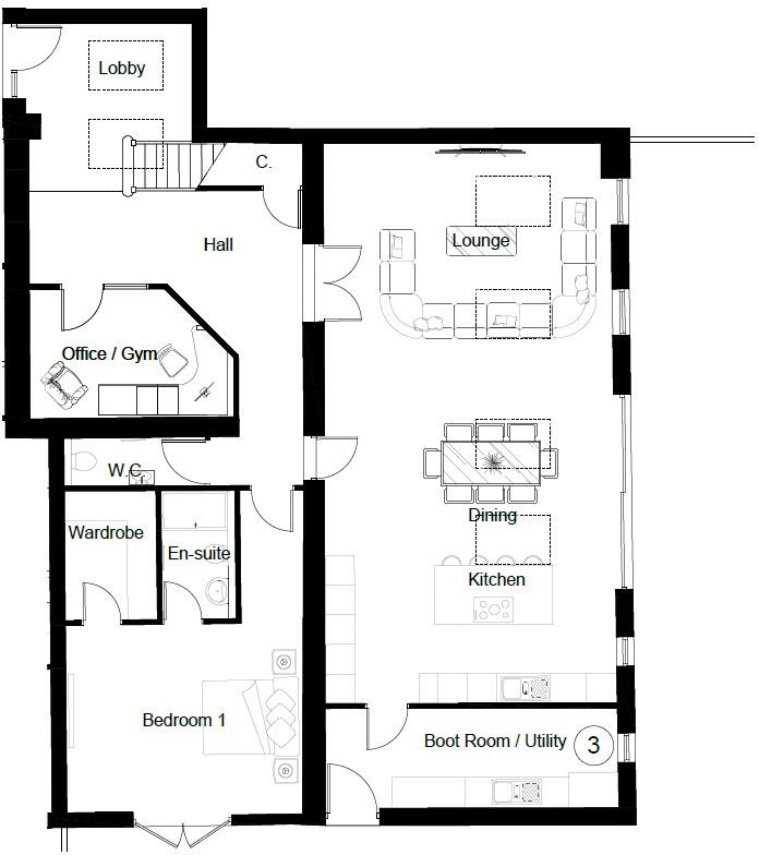
- Large open-plan living/dining kitchen with impressive full-height ceilings.
- 4 double bedrooms with 2 en-suites; master includes dressing room.
- External garage parking for 2 vehicles.
- Character features alongside modern finishes throughout.
**Potential Concerns:**
- Broadband speeds are very slow in the area.
- No council tax information provided.
This stunning barn conversion stands out as a perfect family home or investment opportunity, set on an expansive corner plot with panoramic rural vistas. With a generous 2,554 square feet of living space, the heart of the home showcases a captivating open-plan living and dining area, highlighted by striking skylights and vaulted ceilings, merging rustic charm with contemporary design. Boasting four well-appointed double bedrooms, including a luxurious master suite, this property balances comfort and style, making it ideal for both relaxation and entertaining.
Outside, enjoy the freedom of an enclosed garden and adjoining paddock, providing opportunities for outdoor activities and potential further landscaping or extension. Located in a tranquil rural setting on the outskirts of Honley, this property is not only exclusive but also family-friendly, with excellent local schools rated "Good" and a thriving community atmosphere. With its unique features and extensive grounds, this home is a rare find, offering unparalleled potential for country living—act now, as this opportunity may not last long!
4 bedroom house for sale in Seventy Acre Farm, Meltham Road, Honley, Holmfirth, HD9 — £690,000 • 4 bed • 3 bath • 2122 ft²
4 bedroom house for sale in Seventy Acre Farm, Meltham Road, Honley, Holmfirth, HD9 — £875,000 • 4 bed • 3 bath • 2725 ft²
4 bedroom detached house for sale in Hollin Brigg Lane, Holmbridge, Holmfirth, HD9 — £925,000 • 4 bed • 2 bath • 2167 ft²
3 bedroom house for sale in Seventy Acre Farm, Meltham Road, Honley, Holmfirth, HD9 — £650,000 • 3 bed • 2 bath • 2016 ft²
3 bedroom house for sale in Seventy Acre Farm, Meltham Road, Honley, Holmfirth, HD9 — £675,000 • 3 bed • 2 bath • 2135 ft²
4 bedroom semi-detached house for sale in Drake Hill Cottage, Hey Slack Lane, Cumberworth, Huddersfield, HD8 — £799,950 • 4 bed • 2 bath • 1690 ft²










































