Modernised family home moments from Northwich town centre.
Chain free freehold three-bedroom Edwardian semi
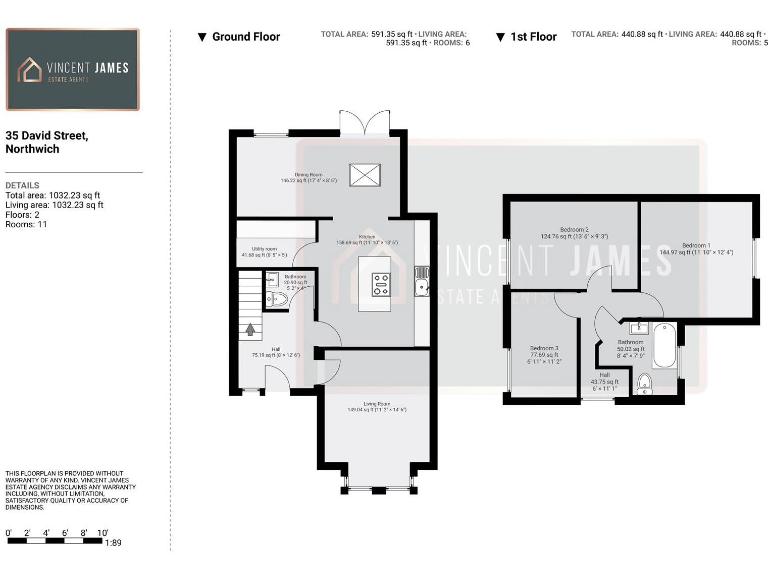
This recently refurbished Edwardian semi delivers contemporary family living in central Northwich. The ground floor centres on a high-spec open-plan kitchen/diner with island and separate utility, while a bay-fronted lounge and downstairs WC add everyday practicality. A private permeable resin driveway and a low-maintenance rear garden complete the outside space.
Upstairs offers three well-proportioned bedrooms and a fully tiled family bathroom, with vaulted ceiling and exposed beams adding character to the principal room. The property is chain free, freehold and presented at around 1,032 sq ft, making it ready to move into for growing families or professionals wanting town-centre convenience.
Practical details to note: the house was constructed c.1900–1929 with solid brick walls (insulation not evident) and double glazing installed before 2002 — further energy upgrades could improve running costs. There is one family bathroom only, and the layout is best suited to buyers who value central location over extensive outdoor space.
Situated a short walk from Northwich town centre and local schools, the home benefits from fast broadband and excellent mobile signal. Overall this property offers a blend of period character and modern finishes, ideal for families seeking a low-maintenance, well-located home with scope for energy improvements.
2 bedroom end of terrace house for sale in Romanes Street, Northwich, Cheshire, CW8 — £165,000 • 2 bed • 1 bath • 811 ft²
3 bedroom semi-detached house for sale in Cross Lane, Middlewich, CW10 — £190,000 • 3 bed • 1 bath • 834 ft²
3 bedroom house for sale in Navigation Road, Northwich, CW8 — £220,000 • 3 bed • 1 bath • 1193 ft²
3 bedroom semi-detached house for sale in Middlewich Road, Northwich, CW9 — £300,000 • 3 bed • 1 bath • 966 ft²
3 bedroom town house for sale in Webbs Court, Northwich, CW9 — £275,000 • 3 bed • 2 bath • 733 ft²
3 bedroom semi-detached house for sale in Turnberry Close, Rudheath, Northwich, CW9 — £300,000 • 3 bed • 1 bath • 1031 ft²


























































































































