Beautifully renovated three-bedroom home with south garden, parking and EV charger ideal for families.
Newly renovated throughout, move-in ready
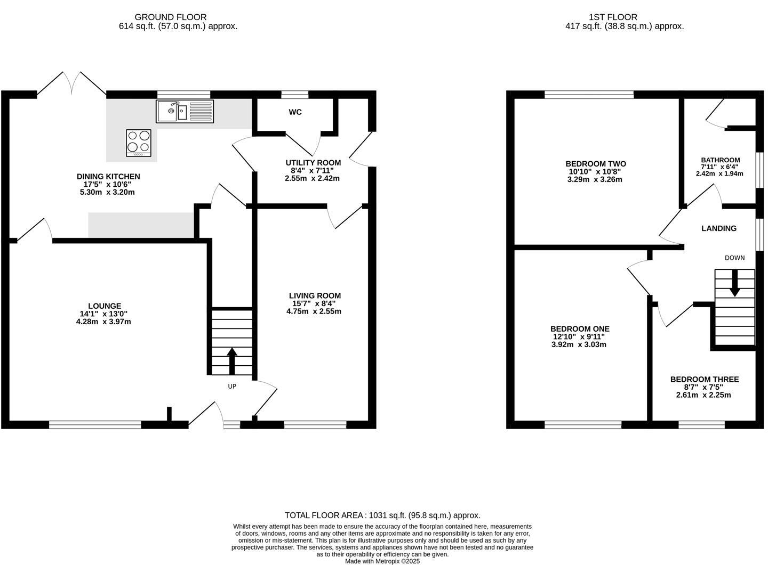
This recently renovated three-bedroom semi-detached house on the outskirts of Northwich has been updated for modern family living. The ground floor offers two reception rooms and an open-plan dining kitchen with integrated appliances and garden access — good for everyday life and informal entertaining. The south-facing landscaped rear garden receives strong afternoon sun and the plot size feels generous for the area.
Practical features include off-road parking for multiple vehicles, an EV charging point and smart fixtures (boiling hot-water tap, smart lights). The property is freehold, has fast broadband and excellent mobile signal, and sits in a very affluent, low-crime area with easy access to the A556 and local train stations — convenient for commuters.
Local schools and amenities are within easy reach, with several well-regarded primary and secondary options nearby and a wide range of shops and leisure facilities in Northwich. This makes the house suitable for growing families wanting space, connectivity and a ready-to-move-in finish.
Notable limitations: there is a single family bathroom and some rooms are average in size rather than large. The listing notes that services and appliances have not been tested; buyers should verify heating, appliances and other systems during surveys. Overall, the house offers low-maintenance modern living with sensible scope for personalisation where desired.
3 bedroom semi-detached house for sale in Richard Street, NORTHWICH, CW9 — £300,000 • 3 bed • 2 bath • 851 ft²
3 bedroom semi-detached house for sale in David Street, Northwich, CW8 — £365,000 • 3 bed • 1 bath • 1032 ft²
3 bedroom semi-detached house for sale in West Avenue, Rudheath, CW9 — £300,000 • 3 bed • 1 bath • 1120 ft²
3 bedroom semi-detached house for sale in Beswicks Road, Northwich, CW8 — £270,000 • 3 bed • 1 bath • 714 ft²
3 bedroom semi-detached house for sale in Roberts Drive, Rudheath, CW9 — £195,000 • 3 bed • 1 bath • 822 ft²
4 bedroom semi-detached house for sale in Medlock Street, Northwich, CW9 — £300,000 • 4 bed • 2 bath • 1088 ft²


























































































































































