**Standout Features:**
- **Plot Size:** Approximately 750m² (ample space for development)
- **Planning Permission:** Approved for a small single-story dwelling (approx. 57m²)
- **Location:** Quiet, rural road with privacy and serene woodland views
- **Proximity to Amenities:** Within 250m of cafés, restaurants, schools, and recreational facilities
- **Services:** Available nearby for easy connection
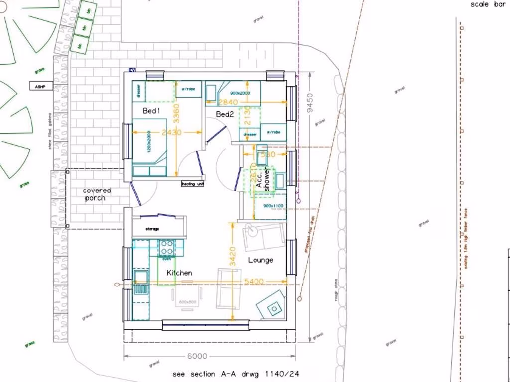
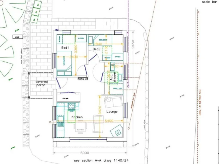
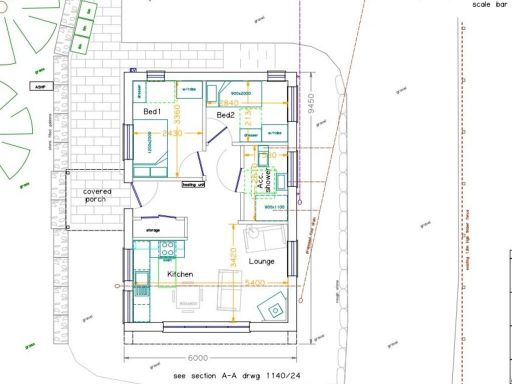
This rare plot on Lageonan Road in Grandtully offers a unique opportunity to create your dream home amidst nature. With planning permission in place for a cozy single-story dwelling, the proposed designs feature an open-plan lounge, kitchen, and two comfortable double bedrooms. The tranquil location not only ensures peace but also provides easy access to local amenities within walking distance, making it ideal for families or first-time buyers seeking a retreat from urban life.
While the plot boasts excellent potential for development and a picturesque setting, it's positioned in a rural area that may present challenges in terms of accessibility and broadband speeds. Priced at £85,000, this property is a compelling investment for those looking to embrace rural living while enjoying the comfort of home creation. Act quickly, as plots like this are a rare find and won't remain on the market for long!
Land for sale in Plot At Ballinluig, Pitlochry, Perth and Kinross, PH9 — £65,000 • 1 bed • 1 bath • 6447 ft²
Land for sale in Pitlochry, PH16 — £100,000 • 1 bed • 1 bath • 761 ft²
Plot for sale in Plot At Dull, Dull, Aberfeldy, PH15 — £180,000 • 1 bed • 1 bath
Land for sale in Mill Park, Ford Road, Blair Atholl PH18 5SH, PH18 — £80,000 • 1 bed • 1 bath
Plot for sale in West Park Farm Plot, Aberfeldy, Perthshire, PH15 — £185,000 • 4 bed • 1 bath
Land for sale in Dunkeld Street, Aberfeldy, PH15 — £95,000 • 1 bed • 1 bath






























































