**Standout Features:**
- Secluded south-facing woodland plot with approx. 1.6 acres
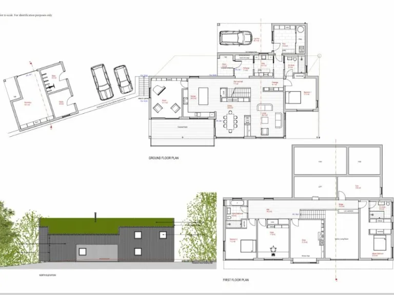
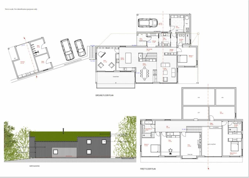
- Detailed planning consent for an eco-friendly four-bedroom house
- Expansive gardens with unobstructed views of the Upper Tay Valley
- Excellent mobile signal and fast broadband speeds
- Off-street parking, garage/workshop, and additional outdoor storage
**Concise Property Summary:**
Discover a rare opportunity to create your dream eco-friendly home in the serene village of Dull, Aberfeldy. This expansive 1.6-acre plot offers detailed planning consent for a versatile four-bedroom residence nestled within a tranquil woodland setting, providing breathtaking views of the Upper Tay Valley. With its unique ecological design, ample outdoor space, and privacy among lush greenery, this location is perfect for those seeking a retreat from city life while still enjoying modern conveniences like excellent mobile reception and fast broadband.
Emphasizing the home's potential for customization, buyers can envision a peaceful living environment that perfectly integrates with nature. While the area is classified as deprived, this offers an inviting chance for growth and community engagement. Don’t miss your chance to secure this unique plot in a sought-after rural locale—an exceptional canvas for your future home awaits!
Land for sale in Lageonan Road, Grandtully, Aberfeldy, PH15 — £85,000 • 1 bed • 1 bath • 613 ft²
Plot for sale in West Park Farm Plot, Aberfeldy, Perthshire, PH15 — £185,000 • 4 bed • 1 bath
Land for sale in Pitlochry, PH16 — £100,000 • 1 bed • 1 bath • 761 ft²
Plot for sale in Residential Plot, Fearnan, By Kenmore, Perthshire, PH15 — £165,000 • 3 bed • 1 bath • 768 ft²
Land for sale in Dunkeld Street, Aberfeldy, PH15 — £95,000 • 1 bed • 1 bath
Land for sale in Tummel Crescent and Lagreach Woods, Pitlochry, Perth and Kinross, PH16 — £150,000 • 1 bed • 1 bath


















































