PH18 5SH - Land for sale in Mill Park, Ford Road, Blair Atholl PH18 5S…

View on Property Piper

Land for sale in Mill Park, Ford Road, Blair Atholl PH18 5SH, PH18

Summary - Mill Park, Ford Road, Blair Atholl PH18 5SH PH18 5SH

1 bed 1 bath Land

**Standout Features:**
- 0.2-acre plot in the scenic village of Blair Atholl
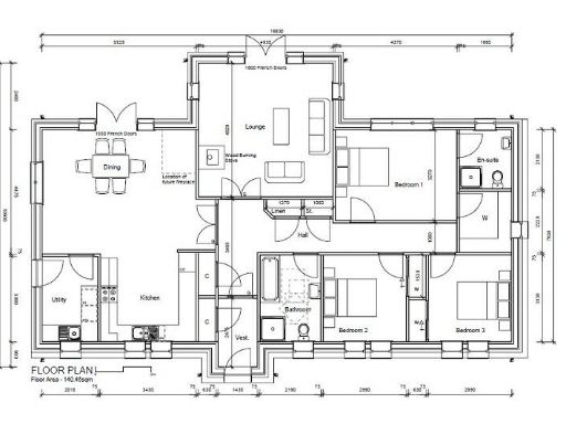
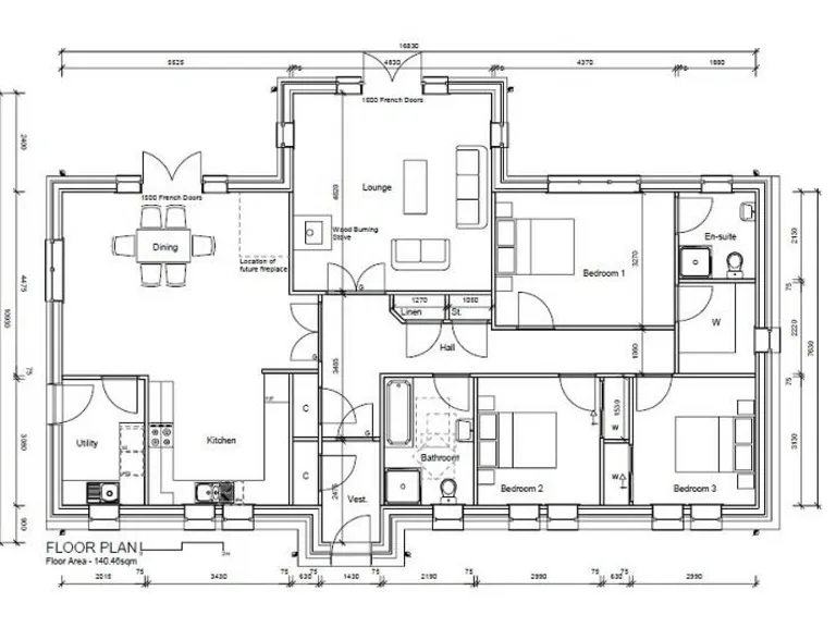
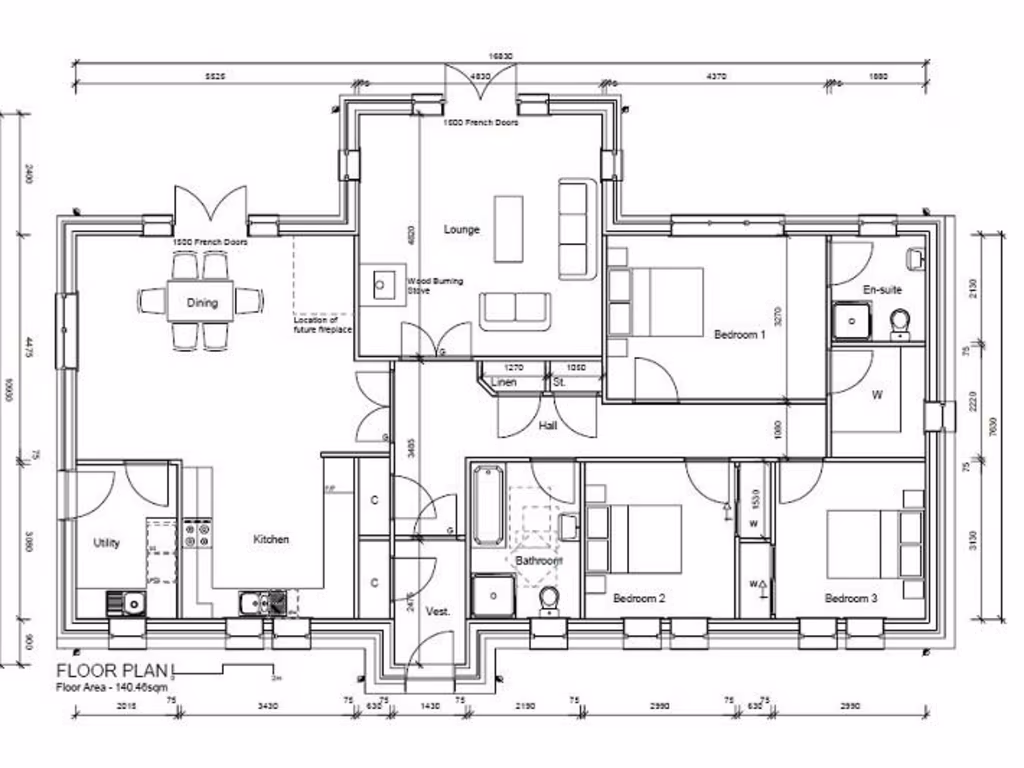
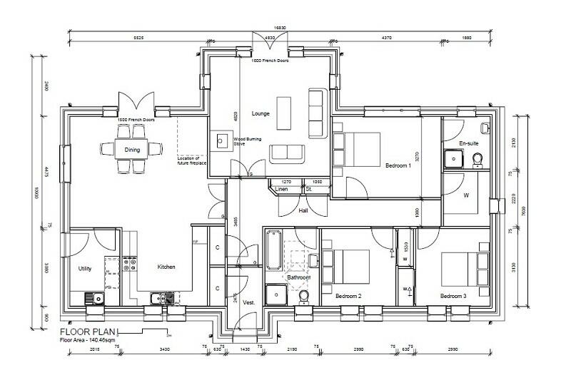
- Detailed planning permission for a three-bedroom single-storey house (Planning Ref: 14/01892/FLL)
- Access to mains water, drainage, and electricity nearby
- Quiet rural location with stunning mountain views
- Spacious outdoor area ideal for gardening or landscaping

**Concerns:**
- Property currently in an overgrown state
- Broadband speeds are slow
- Area may be classified as very deprived

Unlock the potential of this rare house plot nestled in the picturesque village of Blair Atholl, available for just £80,000. With detailed planning permission already in place for a charming three-bedroom single-storey home, this 0.2-acre site allows you to design your dream residence in a tranquil setting. Surrounded by beautiful countryside and with excellent mobile signal, this location promises serene living away from the hustle and bustle of urban life.

While the plot requires some tidying-up and currently has slow broadband speeds, its larger size and proximity to essential utilities offer excellent future development opportunities. Ideal for retirees, families, or investors looking for a picturesque getaway, this property presents the perfect canvas for your vision. Don't miss out on this unique opportunity to create a serene retreat in a beautifully rural community—act now to secure your slice of country living.

Property Details

Brochure Descriptions

Image Descriptions

Textual Property Features

Detected Visual Features

Nearest Bars And Restaurants

,,,,}

Nearest General Shops

,,}

Nearest Grocery shops

,,}

Nearest Supermarkets

,,}

Nearest Religious buildings

,,}

Nearest Medical buildings

,,,}

Nearest Leisure Facilities

,,,,}

Nearest Tourist attractions

,,}

Nearest Train stations

}

Nearest Bus stations and stops

,,,,}

Nearest Hotels

,,}

Tags

Local Market Stats

Similar Properties

Meta

High Res Images

Compatible Images

Low res Images

Thumbnails

Raw Images