Prominent corner site with parking and mixed-use potential near Windsor amenities.
Freehold former health centre, approx. 1,433 sq ft
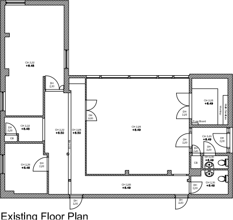
A rare freehold opportunity in Dedworth: a vacant, single-storey former health centre extending to approximately 1,433 sq ft on a sizeable 0.14 acre plot with on-site parking for ten cars. The building is offered with Use Class E, giving flexibility for a range of commercial uses subject to any necessary consents. The site occupies a prominent roadside position within a well-established suburban community on Windsor’s western edge.
The property presents a clear value proposition for investors or owner-occupiers seeking a versatile asset in a popular residential catchment. Potential uses include medical or therapeutic clinics, veterinary practice, professional offices, community or education uses, wellness studios, or a neighbourhood café. Broadband and mobile connectivity are strong, and flood risk is nil — practical advantages for continued commercial operation.
Buyers should note the building’s visible neglect and dilapidation: the exterior and roof will require repair or renewal, and the interior will need refurbishment to suit new occupiers. The property is elected for VAT, and any change of use or fit-out may require planning consent and further investment. Crime levels in the immediate area are reported above average, which may influence lettability or tenant selection.
Offered at £700,000 freehold, this plot-level asset suits investors targeting refurbishment and rental income, owner-occupiers seeking an adaptable base, or developers considering redevelopment (subject to planning). The surrounding area benefits from good schools, local amenities, and regular transport links, supporting steady demand from families and professionals.
Office for sale in 67 Alma Road, Windsor, SL4 3HD, SL4 — POA • 1 bed • 1 bath • 2835 ft²
Commercial property for sale in Oxford Road, Windsor, SL4 — £675,000 • 2 bed • 1 bath • 1098 ft²
2 bedroom detached house for sale in Park Road, Egham, Surrey, TW20 — £475,000 • 2 bed • 1 bath • 839 ft²
4 bedroom semi-detached house for sale in Dedworth Road, Windsor, SL4 — £735,000 • 4 bed • 2 bath • 1495 ft²
Commercial property for sale in Dedworth Road, Windsor,SL4 — £3,333 • 1 bed • 1 bath
Commercial property for sale in Dedworth Road, Windsor,SL4 — £40,000 • 1 bed • 1 bath






















