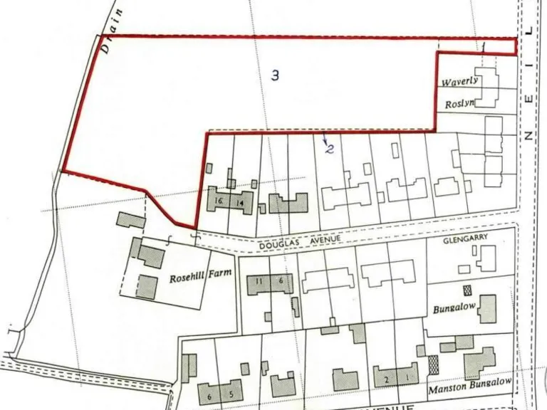
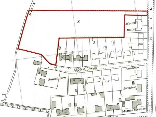
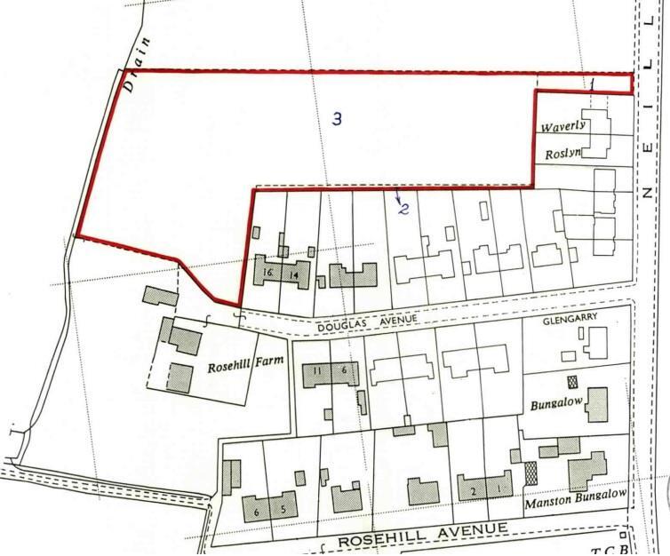
**Standout Features:**
- Large plot of approximately 0.9 hectares (2.23 acres)
- Potential to construct nine dwellings (3 x 4-bedroom and 6 x 5-bedroom homes)
- Located in a tranquil rural setting with open fields nearby
- Access from Neill’s Road with proposed infrastructure for road and footpath
- Proximity to Bold Industrial Park and public transport options
- Excellent mobile signal, although broadband speeds are slow
- Freehold tenure
**Potential Concerns:**
- High crime rate in the local area
- Limited immediate shops and services
- Area classified as deprived
Nestled in a peaceful rural area of Bold, this expansive plot of land presents a prime opportunity for residential development. Covering approximately 0.9 hectares, the site is planned for the construction of nine modern dwellings—three 4-bedroom homes and six spacious 5-bedroom residences. The serene surroundings, bordered by open fields, create an inviting atmosphere for families seeking a tranquil lifestyle while maintaining convenient access to nearby urban centers.
However, prospective buyers should note the area's high crime rate and limited local amenities, which may impact family living. While effective transport links via bus services nearby offer ease of access to greater shopping and educational choices, the slow broadband connection could deter those working from home. This property is ready for development, and with full planning permission, it holds significant transformation potential in an appealing countryside locale—ideal for savvy investors or those looking to establish a community-oriented neighborhood. Act quickly, as opportunities like this are rare!
Land for sale in Milton Street, Sutton Manor, St. Helens, WA9 — £600,000 • 1 bed • 1 bath • 5242 ft²
Land for sale in Plots of Land at Club Street, Moss Bank, St. Helens, Merseyside WA11 7DZ, WA11 — £30,000 • 1 bed • 1 bath • 339 ft²
Land for sale in Southport Road, Scarisbrick, Ormskirk, L40 — £125,000 • 1 bed • 1 bath • 4403 ft²
Land for sale in Irwin Road, St Helens, WA9 — £99,950 • 4 bed • 1 bath • 1104 ft²
Land for sale in Deeside, Lower Heswall, Wirral, CH60 — £400,000 • 1 bed • 1 bath • 3000 ft²
Land for sale in Abberley Close, St Helens, WA10 — £12,500 • 1 bed • 1 bath • 1506 ft²


































