**Standout Features:**
- 1.32-acre plot in a semi-rural location
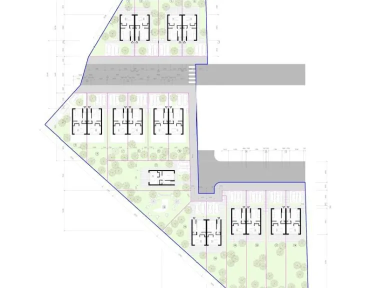
- Proposed development for 17 dwellings, primarily three-bedroom homes
- Completed territorial development study for residential use (pending full planning permission)
- Convenient access via Milton Street and Bell Lane
- Surrounded by open fields, providing scenic rural views
- Available as a whole or individual sections
**Key Details:**
- Located in St. Helens (Postcode WA9 4BQ)
- Excellent mobile signal and fast broadband speeds
- Close proximity to a train station and motorway for easy commuting
- Nearby schools rated 'Good' by Ofsted
This expansive 1.32-acre plot in St. Helens offers an exceptional opportunity for residential development, with plans for 17 new homes in a tranquil semi-rural setting. Surrounded by picturesque open fields, this greenfield site seeks to foster modern living while maintaining a sense of peace and community. The strategic location also ensures excellent connectivity to local amenities and transport routes.
Perfect for investors or developers looking to capitalize on a growing area, the site presents a unique chance to create desirable housing that aligns with family-oriented values. While the area faces challenges regarding crime and socioeconomic factors, the potential for growth and development are significant, making this an intriguing investment opportunity. Don’t miss your chance to transform this expansive land into a thriving residential community—contact us today for more details on this prime plot!
Land for sale in Douglas Avenue, Bold, St Helens, WA9 — £1,000,000 • 4 bed • 1 bath
Land for sale in Plots of Land at Club Street, Moss Bank, St. Helens, Merseyside WA11 7DZ, WA11 — £30,000 • 1 bed • 1 bath • 339 ft²
Land for sale in Abberley Close, St Helens, WA10 — £12,500 • 1 bed • 1 bath • 1506 ft²
Land for sale in Irwin Road, St Helens, WA9 — £99,950 • 4 bed • 1 bath • 1104 ft²
Land for sale in Whint Cottage Old Whint Road (Cottage & Land), WA11 — £360,000 • 3 bed • 2 bath • 13724 ft²
Land for sale in Southport Road, Scarisbrick, Ormskirk, L40 — £125,000 • 1 bed • 1 bath • 4403 ft²






