**Standout Features:**
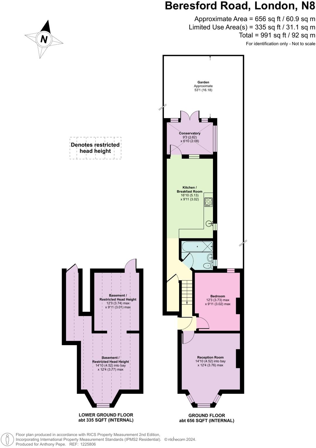
- Renovated, spacious one-bedroom garden flat
- 914 sqft living space plus 335 sqft heated basement
- Large 50ft private garden with greenhouse, shed, and patio
- Bright south-facing reception room with bay window
- Charming rustic-style kitchen/diner with conservatory
- Prime location near excellent transport links and local amenities
- Chain-free sale
**Potential Concerns:**
- Leasehold property with average ground rent of £300
- Solid brick walls with no insulation (assumed)
Nestled within the popular Harringay Ladder on Beresford Road, this outstanding one-bedroom garden flat spans 914 sqft and showcases a seamless blend of modern renovations and classic Victorian charm. Boasting a spacious south-facing reception room filled with natural light from a striking bay window, and a rustic-style kitchen that opens into a bright conservatory, this home is perfect for first-time buyers or cozy living. The expansive 50ft garden, larger than many in the area, promises a personal oasis for relaxation or entertaining.
Additional features include a large, heated basement—ideal for storage or potential extra living space—and convenient access to nearby transport links, ensuring city life is at your doorstep. With local schools holding excellent Ofsted ratings and a host of vibrant amenities just a stone's throw away, this property offers not just a home, but a lifestyle. Investment opportunities in this chain-free, well-maintained flat are sure to spark interest. Don't miss out on this unique gem!
2 bedroom flat for sale in Allison Road, Harringay, London, N8 — £600,000 • 2 bed • 1 bath • 682 ft²
1 bedroom flat for sale in Frobisher Road, Harringay, London, N8 — £450,000 • 1 bed • 1 bath • 592 ft²
1 bedroom apartment for sale in Green Lanes, London, N8 — £425,000 • 1 bed • 1 bath • 539 ft²
1 bedroom flat for sale in Lausanne Road, Harringay, London, N8 — £500,000 • 1 bed • 1 bath • 616 ft²
2 bedroom flat for sale in Mattison Road, Harringay, London, N4 — £600,000 • 2 bed • 1 bath • 640 ft²
1 bedroom end of terrace house for sale in Corbyn Street, London, N4 — £500,000 • 1 bed • 1 bath • 839 ft²


























































































