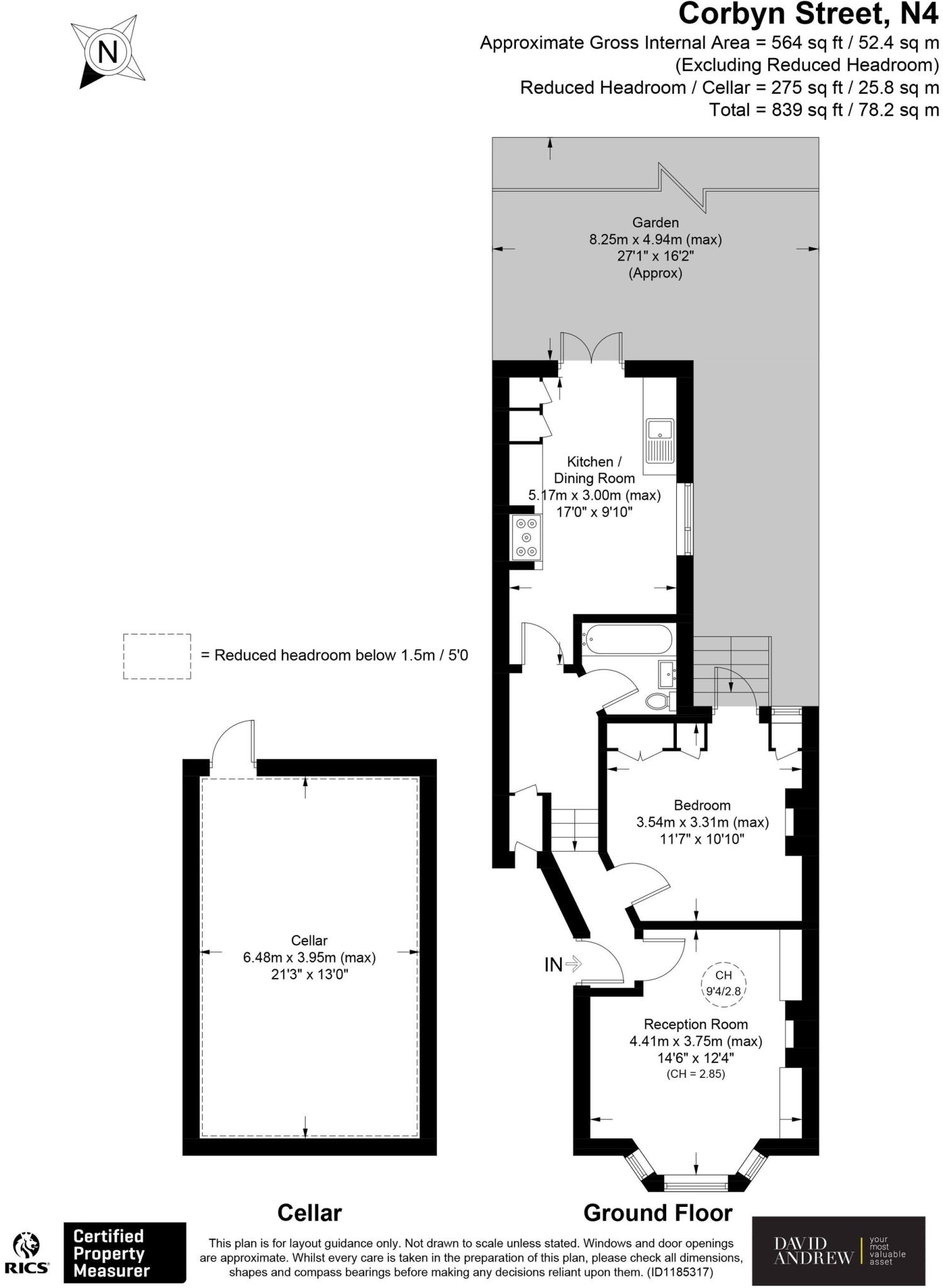
**Standout Features:**
- **Spacious Layout:** 839 sq. ft. (78.2 sq. m.) end-of-terrace ground floor flat
- **Private Garden:** Sole use of a southeast-facing garden perfect for relaxation and entertaining
- **Period Charm:** Beautiful Victorian architecture with original features
- **Modern Comforts:** Large kitchen diner with integrated appliances
- **Chain-Free Sale:** Ready for immediate move-in
**Notable Concerns:**
- **Structural Age:** Built before 1900, may require maintenance
- **Overall Crime Rate:** Above average in the area
- **Limited Insulation:** Solid brick walls with no defined glazing type; potential heating concerns
Discover the delightful blend of character and convenience in this charming Victorian end-of-terrace flat, perfect for first-time buyers and investors alike. Spanning 839 sq. ft., the spacious ground floor layout includes a large kitchen diner that leads out to your own sunny southeast-facing garden—a rare find in urban settings—ideal for gatherings or peaceful relaxation.
The inviting reception room features intricate details like a bay window and bespoke storage, while the comfortable bedroom offers garden access and built-in wardrobes for added comfort. Benefit from a share of the freehold and the convenience of being chain-free, making this property a unique opportunity not to be missed.
While the property exudes charm, potential buyers should note its age and the absence of insulation, which may influence future renovations or energy efficiency. Nestled in a dynamic, cosmopolitan area with reputable schools and excellent transport links, this appealing flat represents a prime opportunity in a desirable location. Don’t wait too long—early viewings are highly recommended to seize this exceptional offering!
1 bedroom apartment for sale in Ferme Park Road, London, N8 — £425,000 • 1 bed • 1 bath • 512 ft²
1 bedroom apartment for sale in Vale Road, London, N4 — £475,000 • 1 bed • 1 bath • 578 ft²
2 bedroom flat for sale in Park Hall Road, London, N2 — £550,000 • 2 bed • 1 bath • 539 ft²
2 bedroom flat for sale in Axminster Road, London, N7 — £475,000 • 2 bed • 2 bath • 635 ft²
2 bedroom flat for sale in Hanley Road, London, N4 — £675,000 • 2 bed • 2 bath • 976 ft²
1 bedroom flat for sale in Frobisher Road, Harringay, London, N8 — £450,000 • 1 bed • 1 bath • 592 ft²


























































































