Bright, practical family living close to St Andrews and coastal attractions.
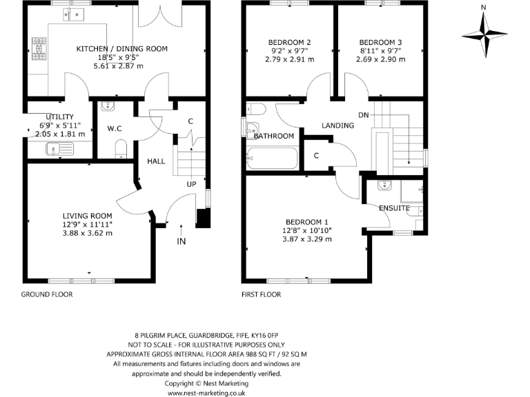
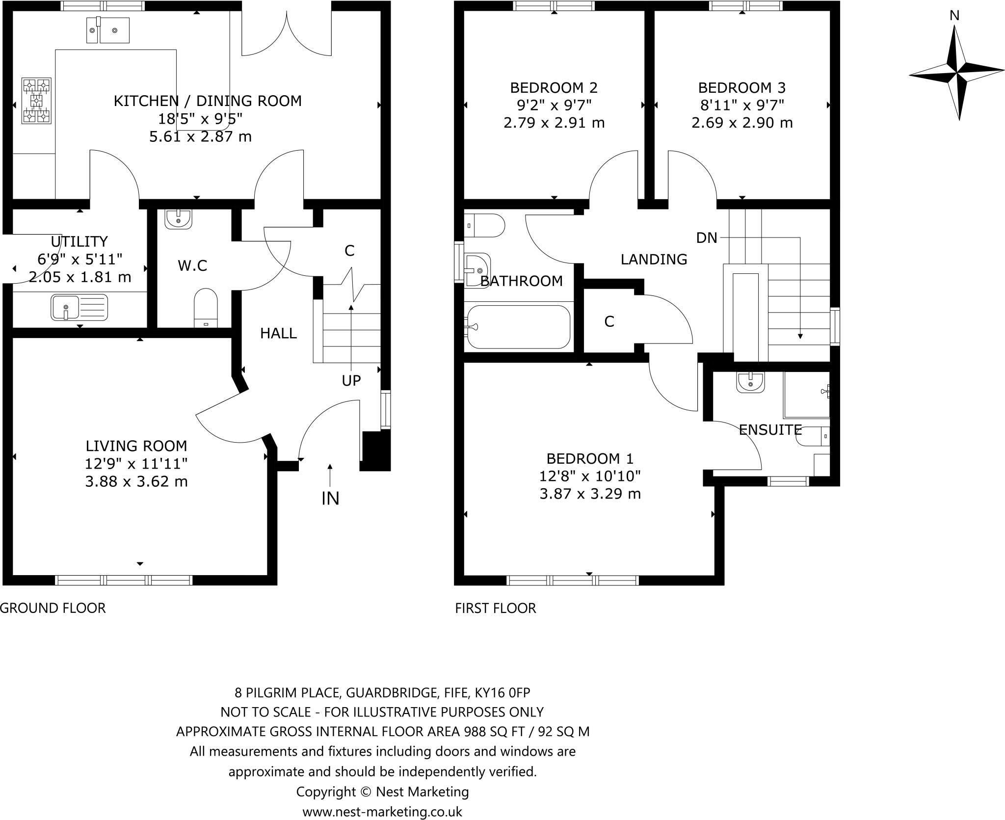
Three double bedrooms, principal with en-suite
South-facing living room for natural light
Contemporary dining kitchen with integrated appliances
Enclosed front and rear gardens, large garden shed
Solar panels; EPC B and fast broadband
Corner plot in peaceful modern development
Approx 988 sqft — comfortable but relatively compact
Wider area classified as deprived; moderate Council Tax D
Set on a corner plot within a modern Guardbridge development, this well-presented three-bedroom detached home delivers bright, practical family living. A south-facing living room and contemporary dining kitchen that opens to the garden make day-to-day life and informal entertaining straightforward. The principal bedroom includes an en-suite, and an upstairs family bathroom serves two further double bedrooms.
The house benefits from integrated appliances, a separate utility, gas cooking, solar panels and an EPC rating of B — all positives for running costs. Enclosed front and rear gardens with a large shed offer secure outdoor space for children and pets, while excellent mobile signal and fast broadband suit home working and streaming.
Location is a major draw: Guardbridge provides village amenities, a primary school and easy drives to St Andrews and Dundee, with good rail and airport links beyond. Outdoor recreation, beaches and renowned golf courses are close by, making the area appealing for active families.
Notable cautions are factual and important: the wider locality is classified as having deprivation, and council tax sits at a moderate band D. The house is an average/compact size at around 988 sq ft, which may feel snug for larger families or those wanting extensive living space. Prospective buyers should confirm tenure and check the Home Report and services for detailed condition information.
3 bedroom semi-detached house for sale in River Terrace, Guardbridge, St Andrews, KY16 — £275,000 • 3 bed • 2 bath • 1331 ft²
4 bedroom detached house for sale in Pilgrim Place, Guardbridge, KY16 — £315,000 • 4 bed • 2 bath • 952 ft²
2 bedroom apartment for sale in Innerbridge Street, Guardbridge, St. Andrews, Fife, KY16 — £145,000 • 2 bed • 1 bath • 678 ft²
3 bedroom detached house for sale in Ruthven Place, St. Andrews, Fife, KY16 — £395,000 • 3 bed • 1 bath • 861 ft²
3 bedroom house for sale in Wester Balrymonth Steadings, St. Andrews, Fife, KY16 — £425,000 • 3 bed • 2 bath • 1337 ft²
3 bedroom detached house for sale in Millbank, Cupar, Fife, KY15 — £325,000 • 3 bed • 2 bath • 1189 ft²






























































































































