River-fronted home with stunning gardens and generous adaptable living space.
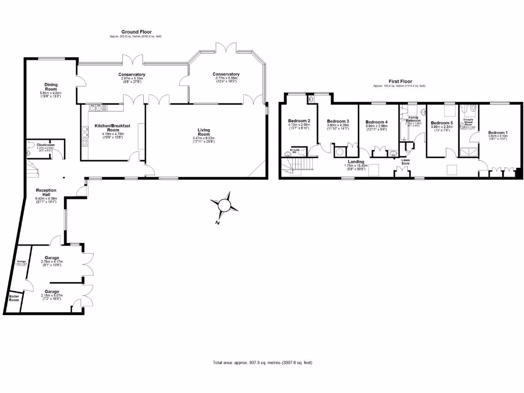
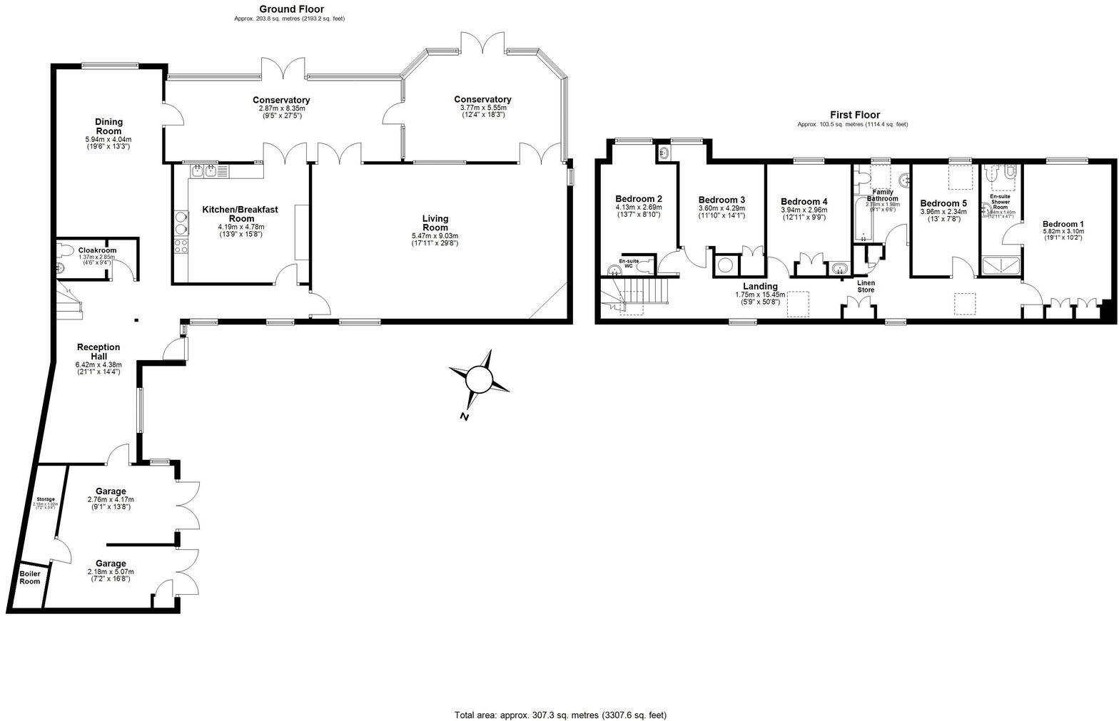
Approximately 3,307 sq ft of accommodation across multiple floors
Set within about 1.3 acres of gardens, paddock and pretty woodland with River Alne frontage, this converted barn offers generous family living in a peaceful Warwickshire hamlet. The house totals approximately 3,307 sq ft and retains original character — exposed beams, oak-boarded floors and flagstone areas — combined with practical modern additions such as an orangery, conservatory and a fitted kitchen with LPG Aga.
Accommodation is arranged over multiple levels and includes a large living room with wood-burning stove, three reception rooms, five bedrooms (two with en-suite facilities) and abundant built-in storage. Outside, a gated gravel driveway (shared with one neighbour) leads to a double garage with loft storage and boiler cupboard; extensive lawns, terraces, vegetable plots and woodland provide a private, varied garden landscape.
Practical points to note: the property was converted around 1990 and has LPG-fired central heating; double glazing is present but install dates are not recorded. Council tax is band E and the EPC is currently to be confirmed. Tenure details are not stated. Broadband speeds are reported as fast while mobile signal is average.
This home will suit buyers seeking countryside character, generous outdoor space and flexible accommodation — families, those working from home, or buyers wanting a distinctive rural residence near Stratford-upon-Avon and commuter links. Some buyers may wish to update mechanicals or check energy ratings given the LPG system and the aged conversion works.
5 bedroom barn conversion for sale in Lapworth Street, Lowsonford, B95 — £1,900,000 • 5 bed • 5 bath • 4747 ft²
5 bedroom barn conversion for sale in Kites Nest Lane, Beausale, Warwick, Warwickshire, CV35., CV35 — £1,500,000 • 5 bed • 2 bath • 3251 ft²
2 bedroom house for sale in Holyoake Court, Wootton Wawen, Henley-in-Arden, B95 — £395,000 • 2 bed • 2 bath • 1052 ft²
2 bedroom barn conversion for sale in Case Lane, Hatton, Warwick, Warwickshire, CV35 — £350,000 • 2 bed • 2 bath • 1152 ft²
5 bedroom barn conversion for sale in Shelfield, Alcester, Warwickshire, B49 — £1,075,000 • 5 bed • 3 bath • 2876 ft²
3 bedroom barn conversion for sale in Aston Cantlow, Henley in Arden, B95 — £625,000 • 3 bed • 2 bath • 1630 ft²






































































































































































































