Spacious family home with gardens, bar area and easy transport links.
Four bedrooms including former garage converted to fourth bedroom
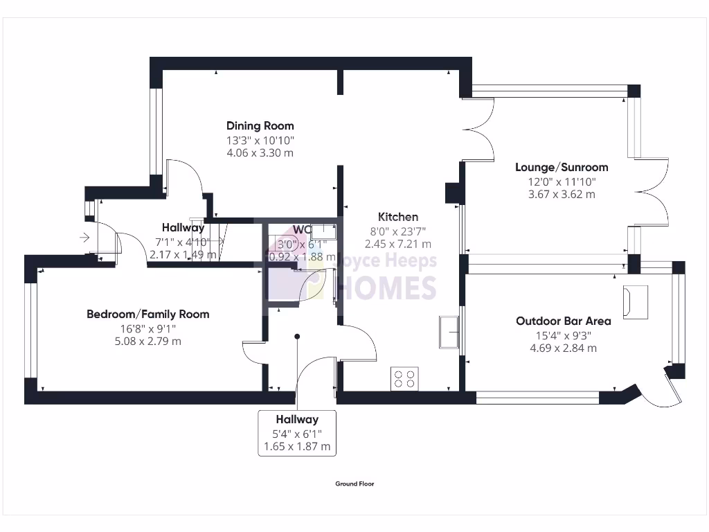
A smartly presented four-bedroom detached villa arranged over two levels, well suited to a growing family. The ground floor offers flexible living with a welcoming hallway, spacious lounge (currently used as dining room), open-plan fitted kitchen with integrated appliances and conservatory overlooking the private rear garden. A downstairs bedroom (formerly garage) provides useful adaptable space or a home office.
Upstairs are three well-proportioned bedrooms with built-in storage, a stylish en-suite shower room and a family bathroom. Recent updates include gas central heating and UPVC double glazing installed around two years ago, helping with energy efficiency and comfort. The loft is accessible from the upper landing and provides additional storage or potential for conversion subject to checks.
Outside, the front monobloc driveway accommodates multiple cars and the enclosed rear garden features decking, patio, loose-chip areas and a dedicated bar with pizza oven — excellent for family entertaining. The property sits in a child-safe cul-de-sac and is close to East Kilbride Train Station, town centre amenities, schools and retail parks, offering convenient commuting options.
Notable considerations: the advertised overall size is small for a detached villa (approximately 1,130 sq ft) and Council Tax is in Band E (above average). The wider area is classified as very deprived, which may influence future resale or local services. The former garage has been converted to create the fourth bedroom; buyers should confirm any alterations or permissions if retention of a garage is required.
4 bedroom detached villa for sale in Paxton Crescent, Mavorpark Gardens, East Kilbride, G74 , G74 — £275,000 • 4 bed • 3 bath • 1130 ft²
4 bedroom detached villa for sale in Cornfoot Crescent, Gamekeepers Wynd, East Kilbride G74 , G74 — £295,000 • 4 bed • 3 bath • 1044 ft²
4 bedroom detached house for sale in Kelvin Crescent, East Kilbride, South Lanarkshire, G75 — £300,000 • 4 bed • 3 bath • 1302 ft²
4 bedroom detached villa for sale in Moorland Drive, Gamekeepers Wynd, East Kilbride, G74 , G74 — £325,000 • 4 bed • 3 bath • 1281 ft²
4 bedroom detached house for sale in Brodie Gardens, Baillieston, Glasgow, Glasgow City, G69 — £280,000 • 4 bed • 2 bath • 1304 ft²
4 bedroom detached house for sale in 5 Louden Hill Way, Robroyston, Glasgow, G33 — £295,000 • 4 bed • 2 bath • 1109 ft²






















































































































