RH2 8QH - 4 bed williams barn conversion in Reigate Road, RH2 8QH

View on Property Piper

4 bedroom house for sale in Sidlow, Reigate RH2

Summary - LOWER DUXHURST FARM, 15, REIGATE ROAD RH2 8QH

4 bed 3 bath House

Spacious family home with outbuilding and modern eco features.
Double-height living/dining area with mezzanine and exposed oak beams
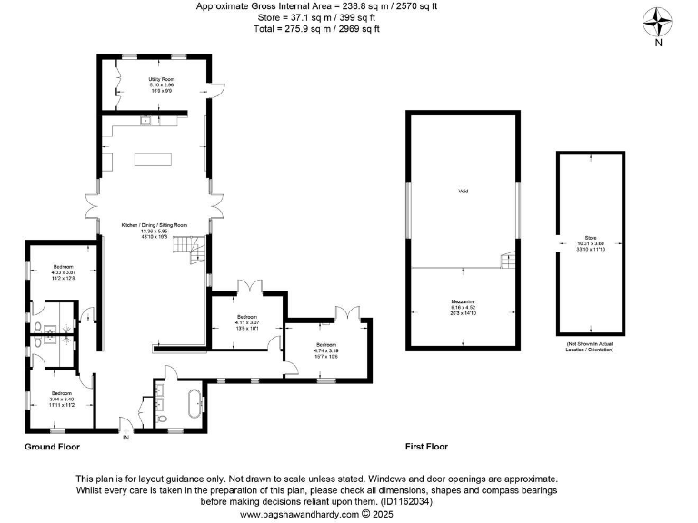
Set in a quiet Sidlow hamlet, Williams Barn is an expansive four-bedroom conversion that blends original oak beams and brickwork with contemporary comforts. The dramatic double-height living/dining space with mezzanine creates a generous family hub, while large picture windows and glazed doors connect the interior to a west-facing courtyard and small garden.

Practical features suit modern family life: a well-equipped Shaker-style kitchen with island, separate utility/boot room, three luxury bathrooms, underfloor heating, an air-source heat pump and EV charger. A detached 33' barn-style outhouse and extensive paved courtyard provide flexible storage, workshop potential or additional parking for multiple vehicles.

Energy efficiency and peace of mind are strong points — high insulation, an air-source heat pump and a Buildzone 10-year warranty are included. The property sits on a very large plot in an affluent rural area, within reach of good local primary and secondary schooling and with fast broadband and excellent mobile signal.

Important considerations: the site is in a medium flood-risk zone and the local reported crime level is above average; buyers should review flood insurance and local safety measures. Some images are digitally staged and the rural location means services and amenities are limited on foot. Viewing is recommended to appreciate the scale and craftsmanship of this substantial family home.

Property Details

Brochure Descriptions

Image Descriptions

Floorplan Description

Rooms

Textual Property Features

Target Audience

AI Tags

Detected Visual Features

Nearby Schools

Nearest Bars And Restaurants

,,,,}

Nearest General Shops

,,}

Nearest Grocery shops

,,}

Nearest Supermarkets

,,}

Nearest Religious buildings

,,}

Nearest Medical buildings

,,,}

Nearest Airports

,}

Nearest Leisure Facilities

,,,,}

Nearest Tourist attractions

,,}

Nearest Train stations

,,,,}

Nearest Bus stations and stops

,,,,}

Nearest Hotels

,,}

Tags

Local Market Stats

Similar Properties

Meta

High Res Images

Compatible Images

Low res Images

Thumbnails

Raw Images

High Res Floorplan Images

Compatible Floorplan Images

Low res Floorplan Images

FloorplanImages Thumbnail

Raw Floorplan Images