RH1 3AH - 4 bed stunning barn conversion in Dean Lane, RH1 3AH

View on Property Piper

4 bedroom semi-detached house for sale in Dean Lane, Merstham, RH1

Summary - FLINT HOUSE DEAN LANE MERSTHAM REDHILL RH1 3AH

4 bed 2 bath Semi-Detached

Characterful four-bedroom barn conversion on a secluded 0.43-acre plot, ideal for families..
- Four double bedrooms, master with ensuite and fitted wardrobes
- Modern open-plan kitchen/dining with quartz worktops
- Triple-aspect living room with beams, fireplace and French doors
- Large utility/boot room, downstairs WC and double garage
- Secluded mature 0.43-acre garden with two patios and field views
- Solid brick walls (1900–1929) — likely no cavity insulation
- Very slow local broadband speeds; council tax quite expensive
- Gated cul-de-sac location with driveway parking
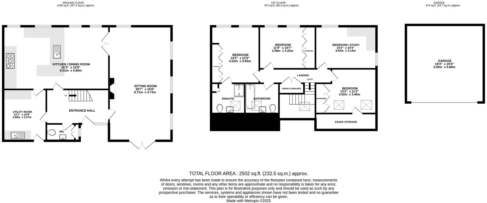
Set within a gated private cul-de-sac, this four-bedroom barn conversion combines rustic character with contemporary finishes across c.1,808 sq ft. The home centres on a triple-aspect living room with exposed beams and a fireplace, and a modern open-plan kitchen/dining space with quartz worktops — ideal for family life and entertaining. A generous utility/boot room, downstairs WC and double garage add practical convenience.

Bedrooms are all doubles; the master benefits from fitted wardrobes and an ensuite. Three further bedrooms and a well-finished family bathroom provide flexible accommodation for children, guests or a home office. Large windows and French doors give plenty of natural light and direct access to two garden patios overlooking open fields beyond.

The property sits on a secluded, mature 0.43-acre plot, an unusually large garden for the area that will appeal to buyers seeking privacy and outdoor space. Parking is plentiful with driveway and double garage. Commuters have straightforward access to Redhill and fast services to London, plus local schools rated Good to Outstanding.

Practical notes: the house is originally c.1900–1929 with solid brick walls assumed uninsulated — buyers should budget for potential insulation and energy-efficiency improvements. Broadband speeds are very slow locally. Council tax is described as quite expensive. Overall this is a characterful family home with strong indoor-outdoor appeal but some upgrade costs to consider.

Property Details

Image Descriptions

Floorplan Description

Rooms

Textual Property Features

Target Audience

AI Tags

Detected Visual Features

EPC Details

Nearby Schools

Nearest Bars And Restaurants

,,,,}

Nearest General Shops

,,}

Nearest Grocery shops

,,}

Nearest Supermarkets

,,}

Nearest Religious buildings

,,}

Nearest Medical buildings

,,,}

Nearest Airports

,}

Nearest Leisure Facilities

,,,,}

Nearest Tourist attractions

,,}

Nearest Train stations

,,,,}

Nearest Bus stations and stops

,,,,}

Nearest Hotels

,,}

Tags

Local Market Stats

AirBnB Data

Similar Properties

Meta

High Res Images

Compatible Images

Low res Images

Thumbnails

Raw Images

High Res Floorplan Images

Compatible Floorplan Images

Low res Floorplan Images

FloorplanImages Thumbnail

Raw Floorplan Images