LL53 6TJ - Detached house for sale in Capel Engedi, Chwilog, Pwllheli,…

View on Property Piper

Detached house for sale in Capel Engedi, Chwilog, Pwllheli, Gwynedd, LL53

Summary - Capel Engedi, Chwilog, Pwllheli, Gwynedd, LL53 LL53 6TJ

1 bed 1 bath Detached

**Standout Features:**
- Unique former chapel with Georgian and Gothic Revival architectural details
- Planning consent for conversion into two holiday lets (C99D/0509/41/LL)
- Idyllic rural setting with extended countryside views
- Spacious interiors with high ceilings and period features
- Freehold title, allowing future flexibility

**Potential Concerns:**
- Property requires significant renovation
- Limited mobile signal, which may affect connectivity
- Located in an area classed as very deprived

This former chapel, nestled off the historic Y Lon Goed, offers a rare opportunity for visionary buyers looking to invest in a distinctive property with substantial renovation potential. Spanning approximately 101.6 sqm (1,087 sq ft), this detached gem features grand Gothic Revival interiors with tall ceilings and charming stone finishes that echo its rich history. With planning consent approved for conversion into two separate holiday lets, the property is positioned perfectly for prospective investors, taking advantage of the beautiful rural charm and attracting visitors seeking a quiet escape.

Surrounded by idyllic countryside views, this property is a canvas waiting for creative transformations. Imagine the possibilities as you navigate the renovation required to restore it to its former glory. However, do consider that extensive work is ahead and that certain modern conveniences like mobile connectivity are limited in this serene setting. With a competitive price of £99,950, this property offers not just a home, but a lifestyle filled with potential. Viewing is by appointment only—don't miss your chance to secure a piece of history while it lasts!

Property Details

Image Descriptions

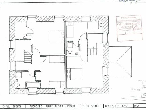
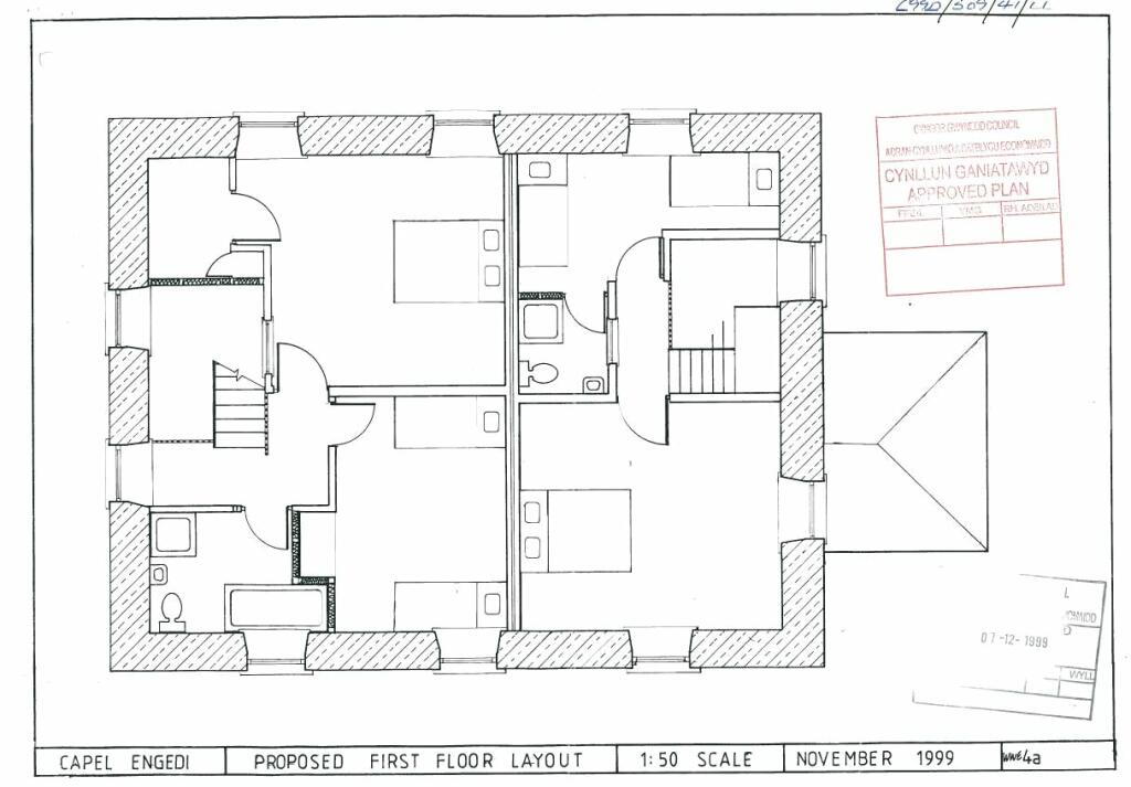
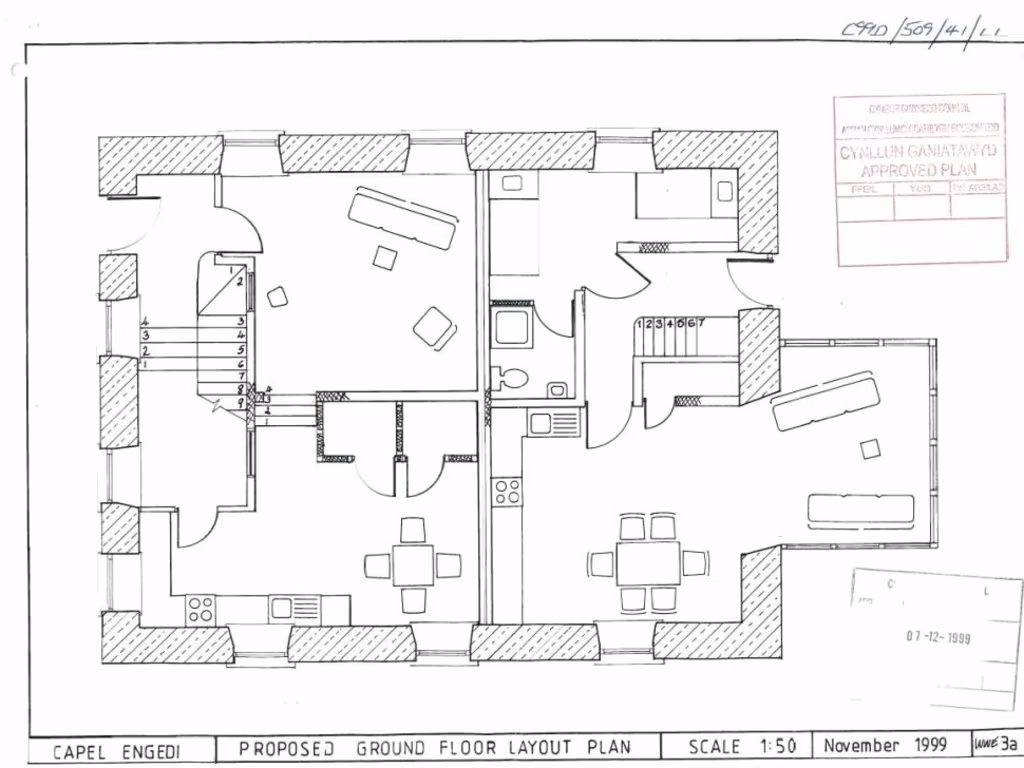
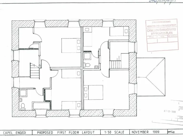
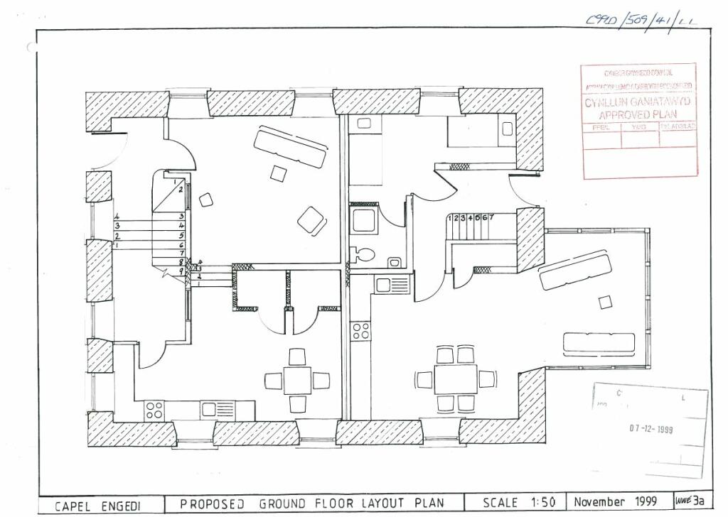
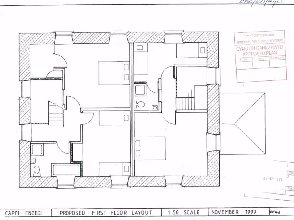
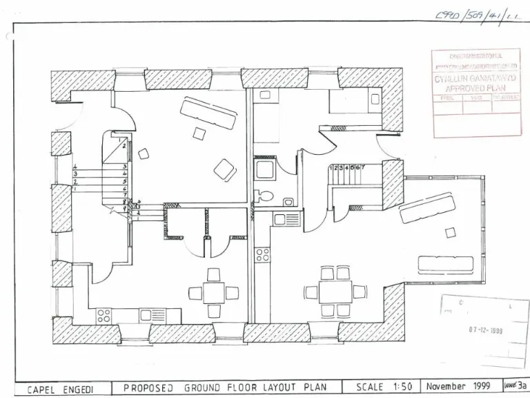
Floorplan Description

Rooms

Textual Property Features

Detected Visual Features

Nearest Bars And Restaurants

,,,,}

Nearest General Shops

,,}

Nearest Grocery shops

,,}

Nearest Supermarkets

,,}

Nearest Religious buildings

,,}

Nearest Medical buildings

,,,}

Nearest Leisure Facilities

,,,,}

Nearest Tourist attractions

,,}

Nearest Train stations

,,,,}

Nearest Bus stations and stops

,,,,}

Nearest Hotels

,,}

Tags

Local Market Stats

Similar Properties

Meta

High Res Images

Compatible Images

Low res Images

Thumbnails

Raw Images

High Res Floorplan Images

Compatible Floorplan Images

Low res Floorplan Images

FloorplanImages Thumbnail

Raw Floorplan Images