LL53 6TJ - Land for sale in Capel Engedi, Chwilog, Pwllheli, Gwynedd,…

View on Property Piper

Land for sale in Capel Engedi, Chwilog, Pwllheli, Gwynedd, LL53

Summary - Capel Engedi, Chwilog, Pwllheli, Gwynedd, LL53 LL53 6TJ

1 bed 1 bath Land

**Standout Features:**
- Former chapel with unique Victorian and Georgian architectural elements.
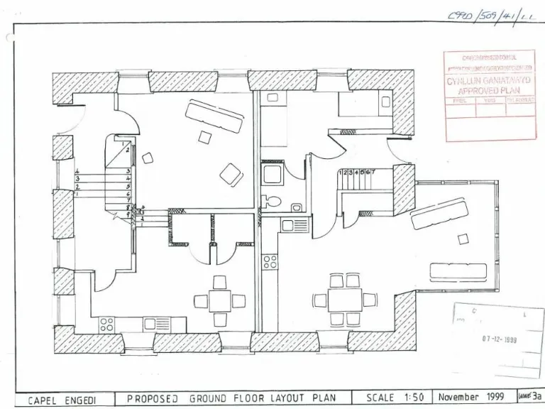
- Planning consent for conversion into two holiday lets (C99D/0509/41/LL).
- Idyllic rural location close to Chwilog, offering stunning countryside views.
- Large garden area and high ceilings throughout.
- Freehold tenure, providing future flexibility for renovations.

**Concerns:**
- Requires maintenance, with potential humidity and damp issues.
- Mobile signal is non-existent; broadband speeds are fast.
- Property condition is currently derelict, presenting a significant renovation project.

**Summary:**
Discover a rare opportunity to transform this former chapel into two delightful holiday lets in a picturesque rural setting near Chwilog. Boasting historic charm with tall arched windows and spacious interiors, this property spans approximately 101.6 square meters and includes a generous garden area. The serene countryside views create a tranquil atmosphere ideal for holidaymakers seeking a peaceful retreat. Despite the excitement of renovation potential, prospective buyers should be aware of necessary maintenance concerns, particularly around humidity and dampness in the building.

Embrace the chance to invest in a unique property that not only offers exclusivity but also the potential for sound rental income in a desirable location. Act quickly—properties with planning permission for such transformations in peaceful surroundings do not stay on the market long!

Property Details

Brochure Descriptions

Image Descriptions

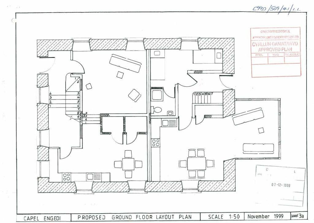
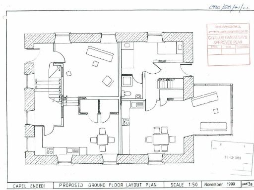
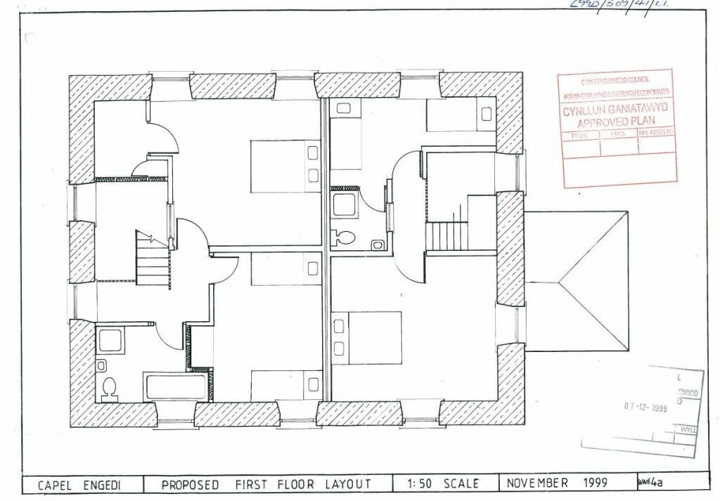
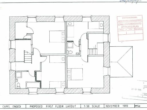
Floorplan Description

Rooms

Textual Property Features

Detected Visual Features

Nearest Bars And Restaurants

,,,,}

Nearest General Shops

,,}

Nearest Grocery shops

,,}

Nearest Supermarkets

,,}

Nearest Religious buildings

,,}

Nearest Medical buildings

,,,}

Nearest Leisure Facilities

,,,,}

Nearest Tourist attractions

,,}

Nearest Train stations

,,,,}

Nearest Bus stations and stops

,,,,}

Nearest Hotels

,,}

Tags

Local Market Stats

Similar Properties

Meta

High Res Images

Compatible Images

Low res Images

Thumbnails

Raw Images

High Res Floorplan Images

Compatible Floorplan Images

Low res Floorplan Images

FloorplanImages Thumbnail

Raw Floorplan Images