NP13 3JA - Land for sale in Beech Tree Crescent, Blaina, NP13

View on Property Piper

Land for sale in Beech Tree Crescent, Blaina, NP13

Summary - 9 BEECH TREE CRESCENT BLAINA ABERTILLERY NP13 3JA

1 bed 1 bath Land

**Standout Features:**
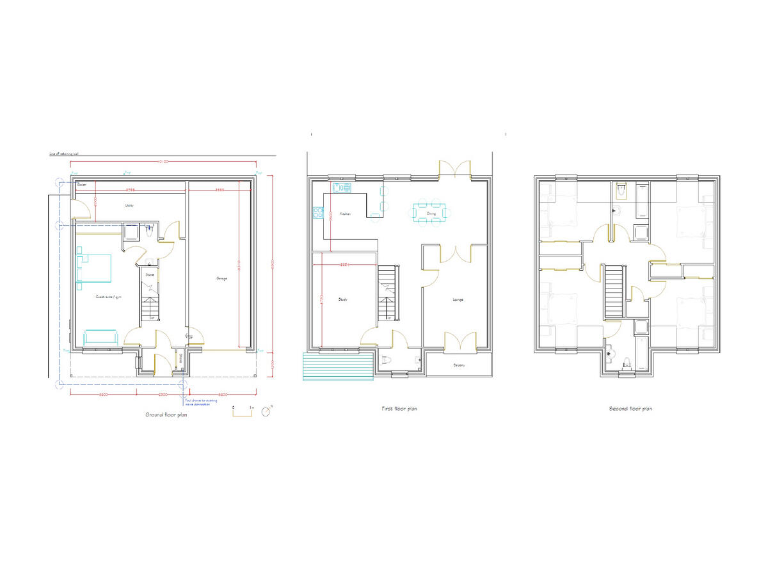
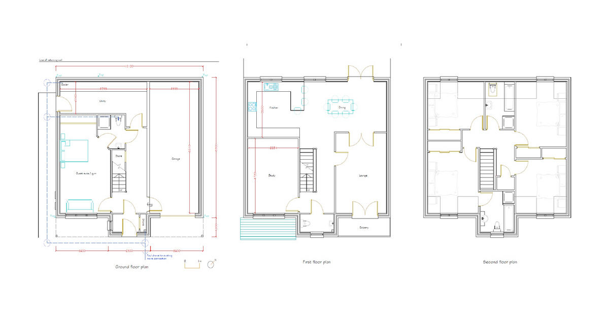
- Full planning permission for an executive five-bedroom detached home
- Guest suite with ensuite, two spacious reception rooms, and an integral garage
- Desirable location within a partly established development on Beech Tree Crescent
- Decent plot size with potential for custom design and personalized finishes
- Close to local amenities including schools, shops, and health services

**Concise Summary:**
Discover an exciting opportunity at Beech Tree Crescent in Blaina, where a full planning permission is in place for a stunning executive five-bedroom detached home. Imagine designing your dream residence that features a well-thought-out layout, including a conveniently located guest suite, two generous reception rooms, and an integral garage. Positioned within a desirable and partly established development, this plot offers both peace and community, just minutes away from local amenities, outdoor spaces, and transport links.

While the area has above-average crime rates and varying socio-economic backgrounds, the potential for creating a comfortable haven in a tranquil rural setting is undeniable. With a price point of £119,000, this land offers a rare chance to invest in a burgeoning location with ample scope for personal touches and future renovations. Act quickly to secure this unique plot—calls for further information are encouraged!

Property Details

Image Descriptions

Rooms

Textual Property Features

Detected Visual Features

Nearest Bars And Restaurants

,,,,}

Nearest General Shops

,,}

Nearest Grocery shops

,,}

Nearest Supermarkets

,,}

Nearest Religious buildings

,,}

Nearest Medical buildings

,,,}

Nearest Leisure Facilities

,,,,}

Nearest Tourist attractions

,,}

Nearest Train stations

,,,,}

Nearest Bus stations and stops

,,,,}

Nearest Hotels

,,}

Tags

Local Market Stats

Similar Properties

Meta

High Res Images

Compatible Images

Low res Images

Thumbnails

Raw Images

High Res Floorplan Images

Compatible Floorplan Images

Low res Floorplan Images

FloorplanImages Thumbnail

Raw Floorplan Images