NP13 3JA - Land for sale in Beech Tree Crescent, Blaina, NP13

View on Property Piper

Land for sale in Beech Tree Crescent, Blaina, NP13

Summary - 3 BEECH TREE CRESCENT BLAINA ABERTILLERY NP13 3JA

1 bed 1 bath Land

**Standout Features:**
- Large plot for a three-bedroom detached bungalow
- Full planning permission granted with an adjoining garage
- Located in a desirable part of Blaina on Tanglewood estate
- Close to essential amenities including schools, shops, and health services
- Access to transport links such as A465 and train stations in nearby towns
- Affordable price at £80,000

**Summary:**
Seize the opportunity to create your perfect home with this generous plot on Beech Tree Crescent in the picturesque village of Blaina. Offered at an attractive price of £80,000, this land comes with full planning permission for a modern three-bedroom detached bungalow, complete with an ensuite master bedroom and an adjoining garage. Nestled in a developing area, you can custom-design a living space that meets your needs while enjoying the benefits of a supportive community and essential local amenities just a stone's throw away.

For families or investors, the potential for growth in this area is substantial, given its proximity to the A465 and local transport links. The plot's sizeable footprint allows for creative planning and future expansion options. However, it's worth noting that the area reflects above-average crime rates and some socio-economic challenges, which may require consideration if establishing a family-friendly environment or rental property. Don’t miss out on this unique opportunity—call now for more information on this exciting development!

Property Details

Image Descriptions

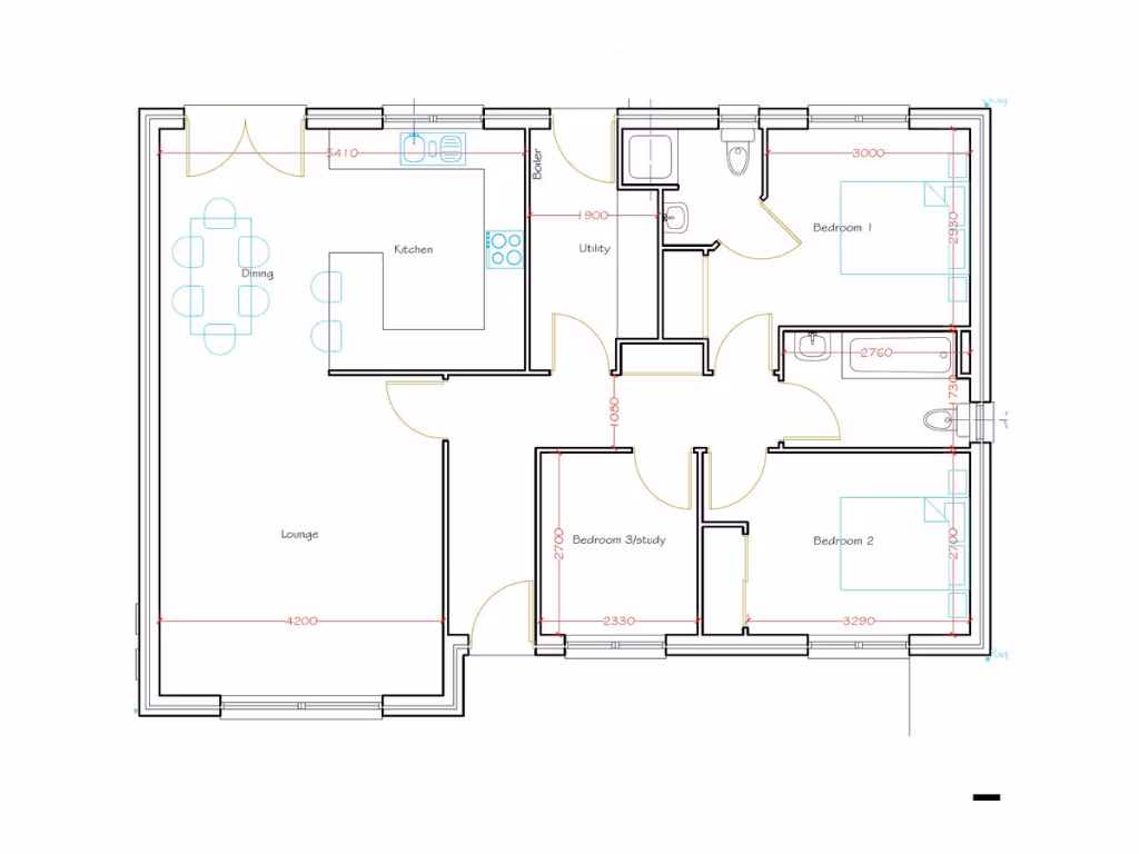
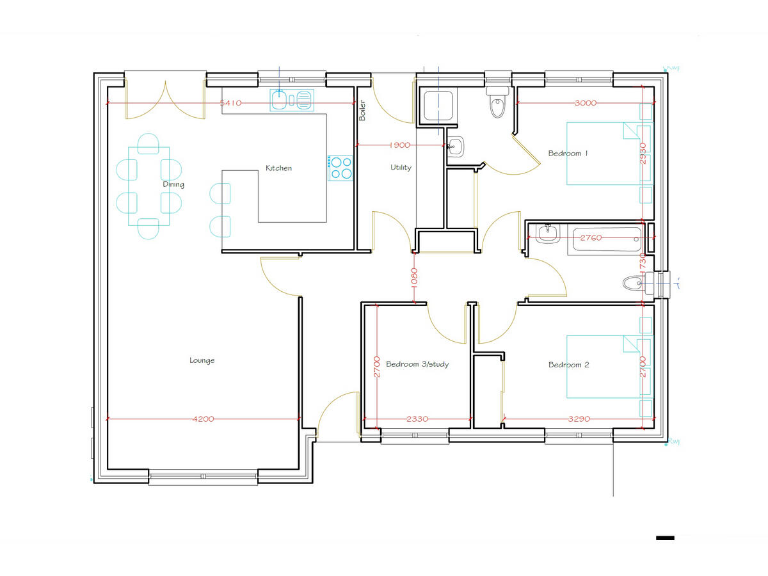
Floorplan Description

Rooms

Textual Property Features

Detected Visual Features

Nearest Bars And Restaurants

,,,,}

Nearest General Shops

,,}

Nearest Grocery shops

,,}

Nearest Supermarkets

,,}

Nearest Religious buildings

,,}

Nearest Medical buildings

,,,}

Nearest Leisure Facilities

,,,,}

Nearest Tourist attractions

,,}

Nearest Train stations

,,,,}

Nearest Bus stations and stops

,,,,}

Nearest Hotels

,,}

Tags

Local Market Stats

Similar Properties

Meta

High Res Images

Compatible Images

Low res Images

Thumbnails

Raw Images

High Res Floorplan Images

Compatible Floorplan Images

Low res Floorplan Images

FloorplanImages Thumbnail

Raw Floorplan Images