NP13 3JA - Land for sale in Beech Tree Crescent, Blaina, NP13

View on Property Piper

Land for sale in Beech Tree Crescent, Blaina, NP13

Summary - 8 BEECH TREE CRESCENT BLAINA ABERTILLERY NP13 3JA

1 bed 1 bath Land

### Property Listing Summary

**Standout Features:**
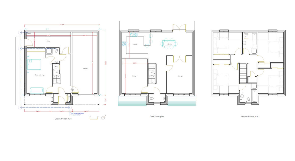
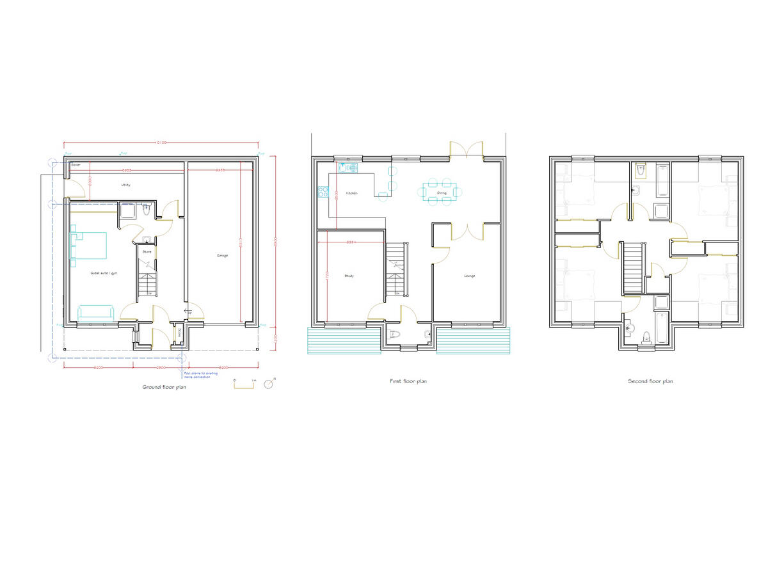
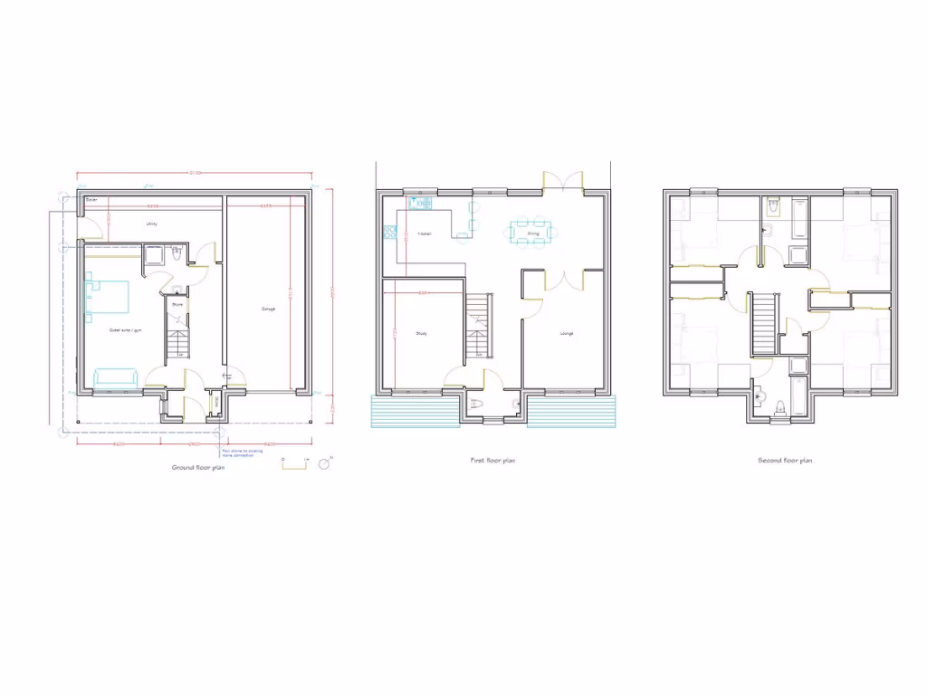
- Full planning permission for an executive five-bedroom detached home
- Includes a guest suite with ensuite, two spacious reception rooms, and an integral garage
- Attractive location in the partly established and desirable Tanglewood estate
- Close proximity to local amenities, schools, and transport links

**Considerations:**
- Local area has above-average crime rates and is classified as 'very deprived'
- Buyers should prepare for potential maintenance associated with this new build project

Discover a golden opportunity to develop your dream home in the tranquil village of Blaina. This spacious plot on Beech Tree Crescent is approved for a luxurious five-bedroom detached residence, designed for modern living. The home will feature an open-plan kitchen/diner, a cozy lounge, and an inviting guest suite, ensuring both comfort and versatility for families or investors. Enjoy the convenience of an integral garage and a driveway, all within a peaceful setting.

This sought-after location offers easy access to local amenities and transport, with larger towns of Brynmawr and Abertillery nearby. While the plot is situated in a scenic area, buyers should remain mindful of the community dynamics, as the overall environment reflects higher crime rates and socioeconomic challenges. Seize this chance to make your mark and invest in a property that holds great potential. Don’t miss out on this exclusive offering—call for more information today!

Property Details

Image Descriptions

Rooms

Textual Property Features

Detected Visual Features

Nearest Bars And Restaurants

,,,,}

Nearest General Shops

,,}

Nearest Grocery shops

,,}

Nearest Supermarkets

,,}

Nearest Religious buildings

,,}

Nearest Medical buildings

,,,}

Nearest Leisure Facilities

,,,,}

Nearest Tourist attractions

,,}

Nearest Train stations

,,,,}

Nearest Bus stations and stops

,,,,}

Nearest Hotels

,,}

Tags

Local Market Stats

Similar Properties

Meta

High Res Images

Compatible Images

Low res Images

Thumbnails

Raw Images

High Res Floorplan Images

Compatible Floorplan Images

Low res Floorplan Images

FloorplanImages Thumbnail

Raw Floorplan Images