Secluded family home with character, large grounds and workshop potential.
Detached country cottage set within around three acres of gardens and woodland
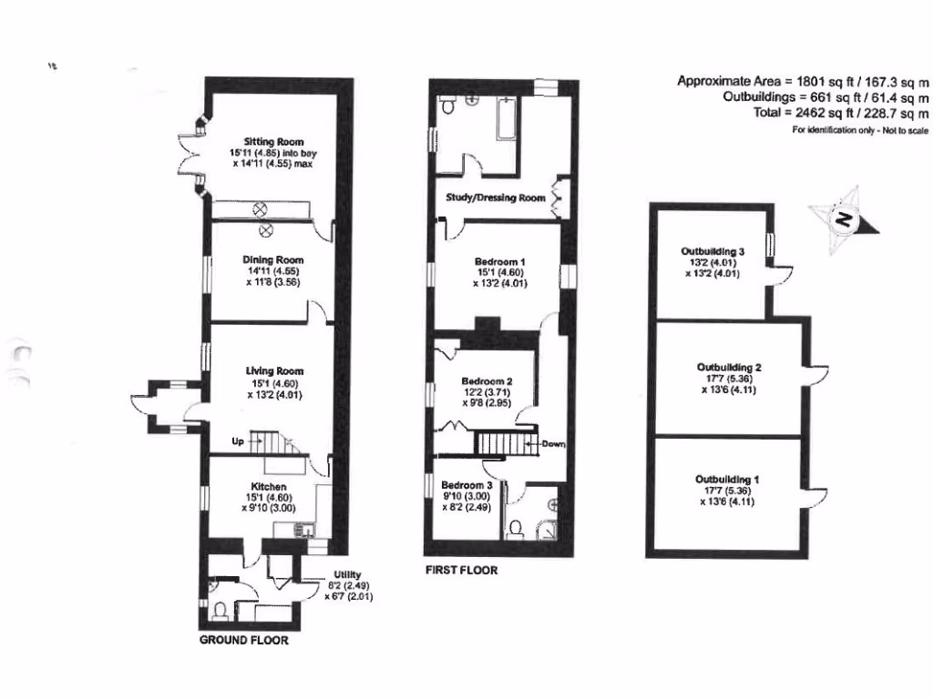
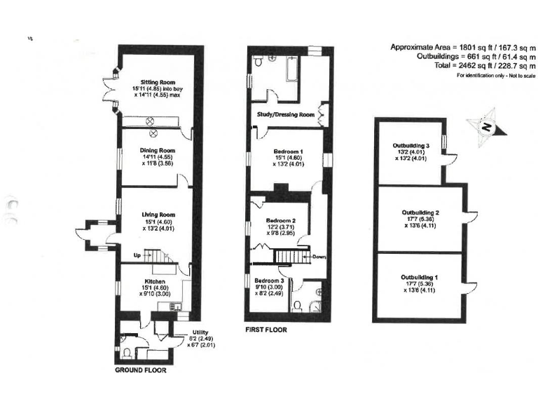
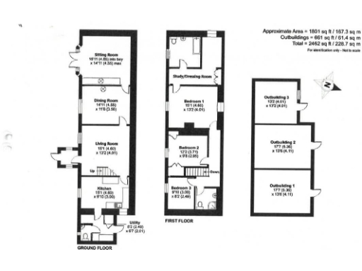
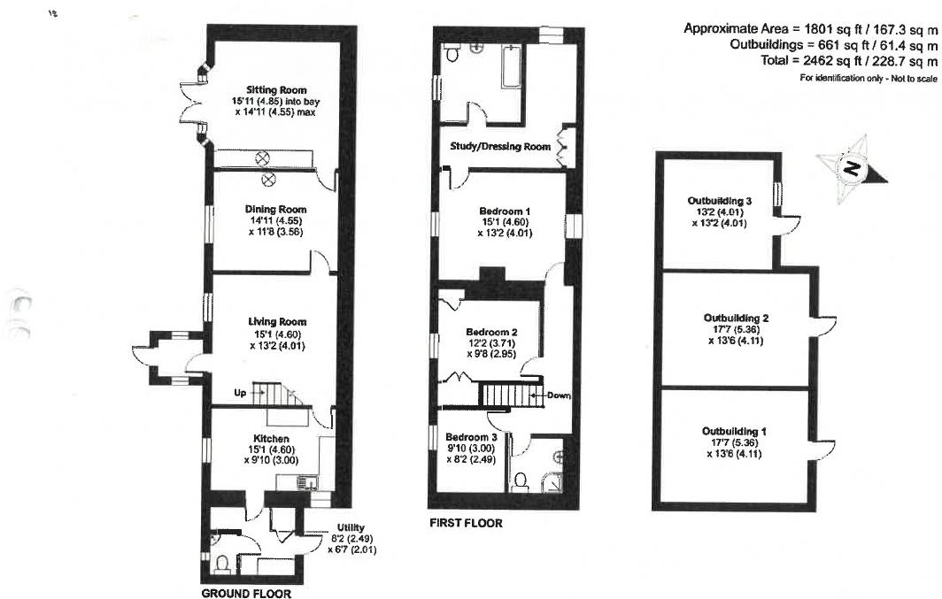
Dolydd Cottage is a sizable detached country home tucked down a wooded driveway in Cefn Mawr, set within approximately three acres of formal lawn, planted areas and bordering woodland. The house offers three reception rooms and three bedrooms, including an ensuite/dressing area off the principal bedroom, and benefits from large detached outbuildings and generous off-street parking — useful for families, hobby gardeners or buyers wanting storage and workshop space.
The interior retains much original character: exposed beams, stone inglenook fireplace with wood-burning stove, pine floors and decorative fireplaces. The kitchen and utility are practical and well maintained; the property is described as well cared for throughout. The brook running along the boundary and the secluded setting create a peaceful, rural living environment while local road links connect to Llangollen, Wrexham and Chester.
Buyers should note some practical considerations. Broadband speeds are slow and the cavity walls are recorded as having no insulation (assumed), which may affect energy efficiency and running costs. Council tax is above average and the wider area records higher deprivation levels; purchasers should check local services and travel needs. Any conversion of the outbuildings would require appropriate planning permissions.
Overall, this detached cottage will suit a family or countryside buyer seeking scale, privacy and character rather than a low-maintenance, city-centre property. It offers immediate liveability with clear potential to improve energy performance and adapt the extensive outbuildings or grounds to individual needs.
3 bedroom detached house for sale in Pontfadog, LL20 — £725,000 • 3 bed • 3 bath • 2121 ft²
3 bedroom detached house for sale in Dolydd Road, Cefn Mawr, Wrexham, LL14 — £300,000 • 3 bed • 1 bath • 840 ft²
3 bedroom house for sale in Dolywern, Glyn Ceiriog, LL20., LL20 — £290,000 • 3 bed • 1 bath • 1486 ft²
4 bedroom cottage for sale in Porth-Y-Waen, Oswestry, SY10 — £650,000 • 4 bed • 1 bath • 1561 ft²
3 bedroom detached house for sale in Pwllglas, LL15 — £525,000 • 3 bed • 2 bath • 1412 ft²
3 bedroom detached house for sale in Llanrhaeadr Ym, SY10 — £399,999 • 3 bed • 2 bath • 1573 ft²










































































