Large stone country house with extensive grounds and flexible family living.
Huge plot with around four acres of adjoining woodland
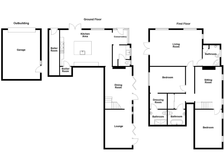
Set atop the Ceiriog Valley on a huge plot with around four acres of adjoining woodland, this handsome 1896 stone house mixes period character with contemporary fit‑outs. The interior extends to about 2,121 sq ft and currently offers three bedrooms, three bathrooms and multiple reception rooms — a layout that suits family life and easily adapts if you want more formal bedrooms.
The kitchen/dining is the heart of the home: a large contemporary space with granite worktops, central island, AGA range and French doors to patio entertaining areas. Comfortable living spaces include a tiled lounge with bi‑fold doors, a living room with a log stove, and a generous first‑floor top lounge that could be reconfigured into a master suite or two extra bedrooms.
Practical features include double glazing (fitted post‑2002), air‑source heat pump with underfloor heating, an oil boiler/boiler room, reverse six‑filter osmosis water system and a two‑car garage with hydraulic car lift and workshop. The long gated driveway, summerhouse, greenhouse and multiple patios make the garden and grounds a standout for outdoor living and privacy.
Important facts to note: tenure details require solicitor confirmation (freehold/leasehold queries noted). Council tax is high (Band G believed) and the wider local area is classified as very deprived and rurally remote, so access to some services is limited. There is an on‑site oil tank and an incinerator; purchasers should budget for ongoing maintenance and any fuel‑system servicing. Overall, this is a versatile, high‑spec country home best suited to buyers seeking space, privacy and flexible living rather than town-centre convenience.
4 bedroom character property for sale in Black Park, Chirk, Wrexham, LL14 — £645,995 • 4 bed • 3 bath • 4558 ft²
4 bedroom detached house for sale in Cefn Canol, SY10 — £680,000 • 4 bed • 2 bath • 1852 ft²
4 bedroom detached house for sale in Dolywern, LL20 — £450,000 • 4 bed • 2 bath • 1592 ft²
4 bedroom cottage for sale in Porth-Y-Waen, Oswestry, SY10 — £650,000 • 4 bed • 1 bath • 1561 ft²
3 bedroom detached house for sale in Rhydycroesau, SY10 — £750,000 • 3 bed • 2 bath • 1658 ft²
3 bedroom cottage for sale in Dolydd Lane, Cefn Mawr, LL14 — £475,000 • 3 bed • 1 bath • 1801 ft²


















































































































































