Elevated three-bedroom home with workshop, panoramic valley views and fast fibre broadband.
Three double bedrooms with principal en suite and engineered oak flooring
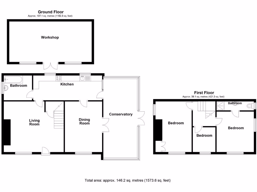
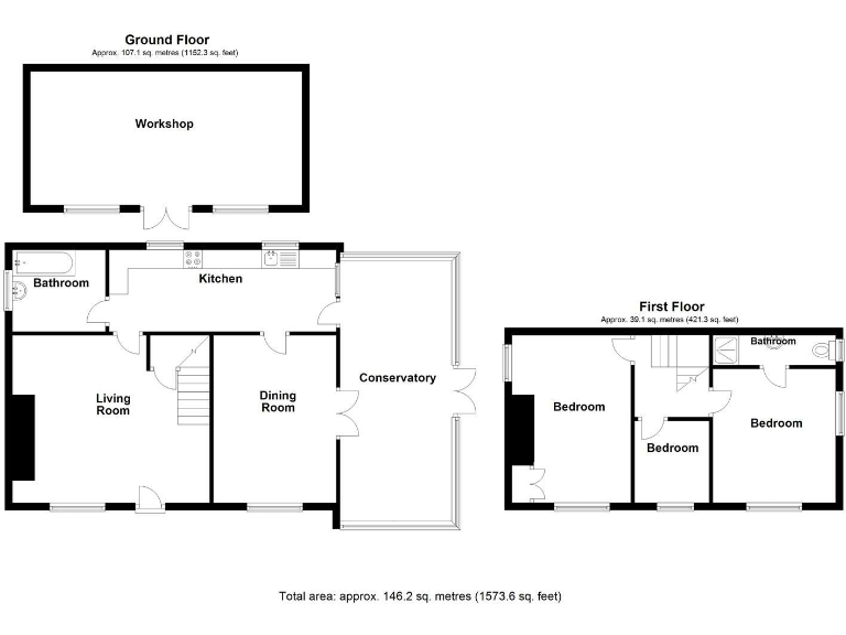
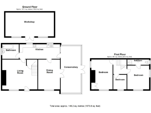
Set on a large plot in an elevated hamlet, this three-bedroom detached cottage pairs authentic character with practical modern upgrades. Spacious principal rooms and a generous conservatory make the most of uninterrupted countryside views, while the purpose-built outbuilding provides a ready workshop or home-office. Fast fibre broadband and excellent mobile signal suit remote working.
The house is well presented throughout with exposed stonework, original beams, inglenook fireplace and engineered oak in the principal bedroom. Off-street gravel parking accommodates several vehicles behind newly installed boundary fencing. Gardens are mainly lawn with patios, a shed and a summerhouse framing wide rural vistas.
Buyers should note the property is solid-wall construction (original brick) with no cavity insulation, and heating is by an oil-fired boiler — consider potential retrofit or running costs. It occupies a remote location within a very deprived area classification and has above-average council tax; access and day-to-day services are more limited than in larger settlements.
Overall this cottage will appeal to families or buyers seeking a peaceful rural retreat with workspace potential. It is move-in ready for those who value character and views, but buyers wanting lower-energy running costs or closer amenities should factor in insulation or heating upgrades and the isolated setting.
4 bedroom detached house for sale in Llanfechain, SY22 — £695,000 • 4 bed • 3 bath • 2487 ft²
3 bedroom detached house for sale in Pen Y Garnedd, Llanrhaeadr Ym Mochnant, Oswestry, SY10 — £675,000 • 3 bed • 2 bath • 2528 ft²
3 bedroom cottage for sale in Maengwynedd, Llanrhaeadr Ym Mochnant, Oswestry, SY10 — £425,000 • 3 bed • 2 bath • 1723 ft²
3 bedroom detached house for sale in Llangynog, Oswestry, Powys, SY10 — £585,000 • 3 bed • 1 bath • 1819 ft²
6 bedroom detached house for sale in Llansantffraid, SY22 — £1,175,000 • 6 bed • 2 bath • 1335 ft²
2 bedroom cottage for sale in Llanarmon Dyffryn Ceiriog, Llangollen, LL20 — £230,000 • 2 bed • 1 bath • 1397 ft²






























































































































