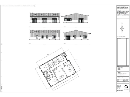
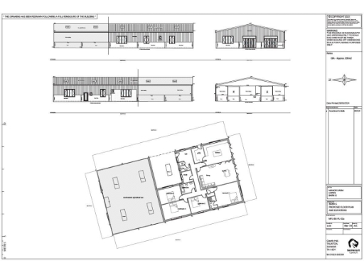
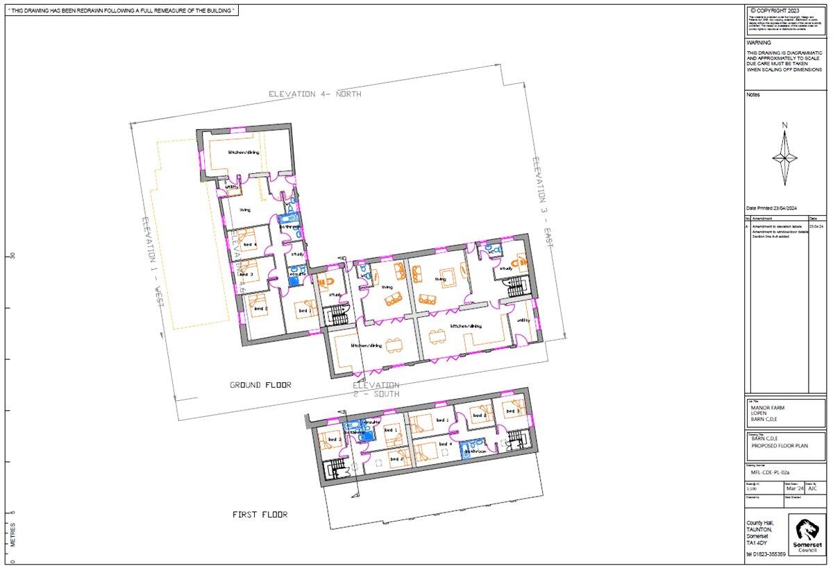
Estate-scale rural conversion opportunity with recent planning permissions.
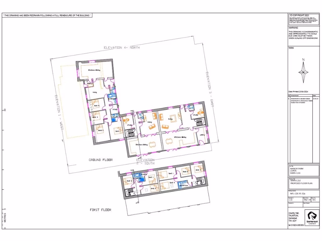
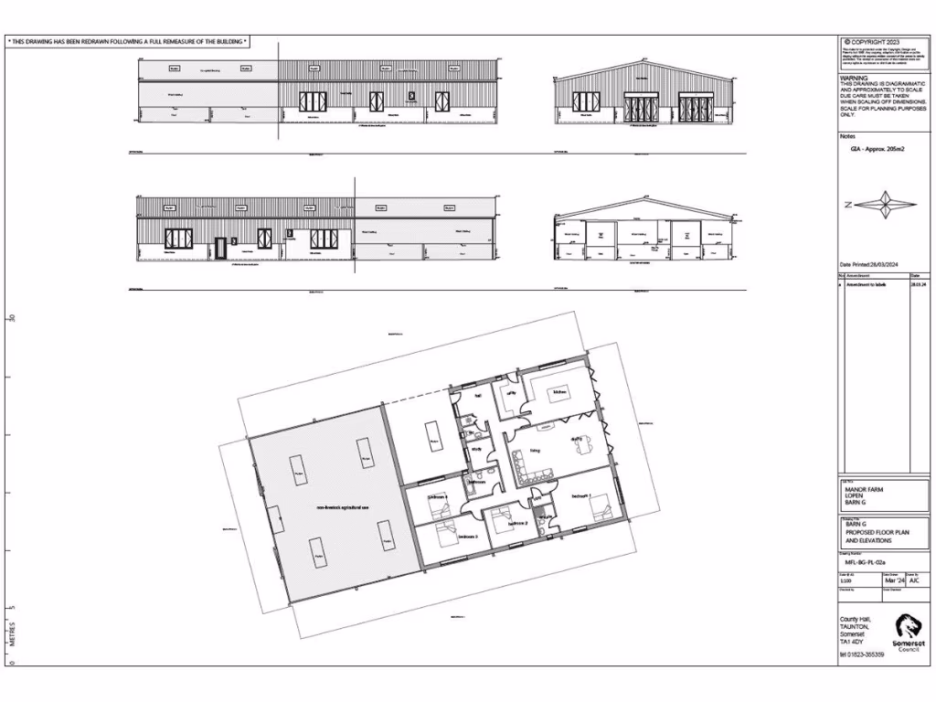
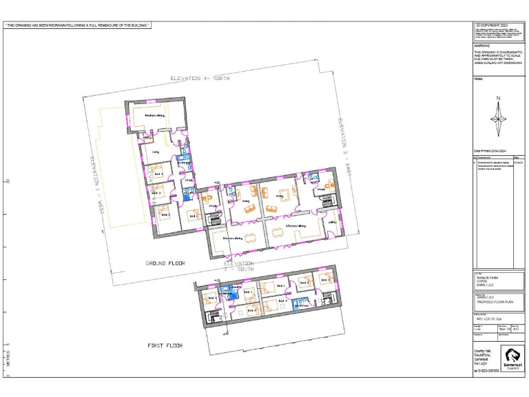
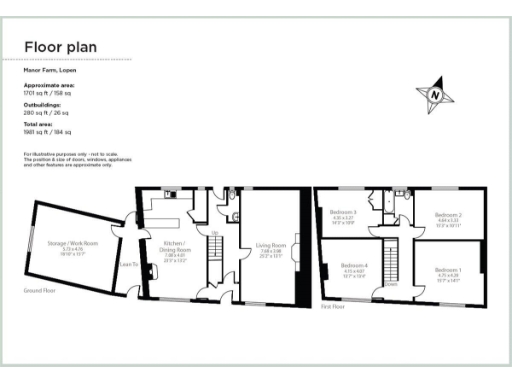
8.59-acre site with farmhouse, barns, paddocks and pond
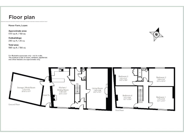
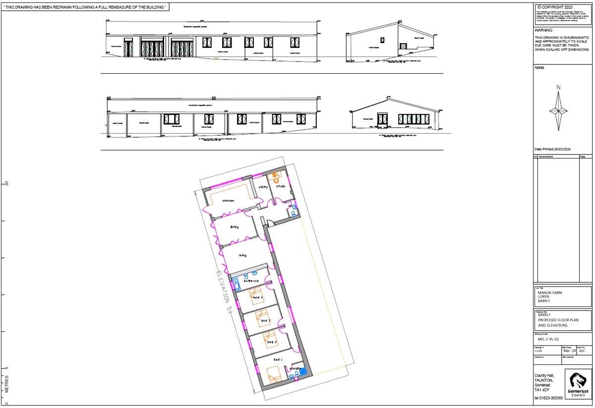
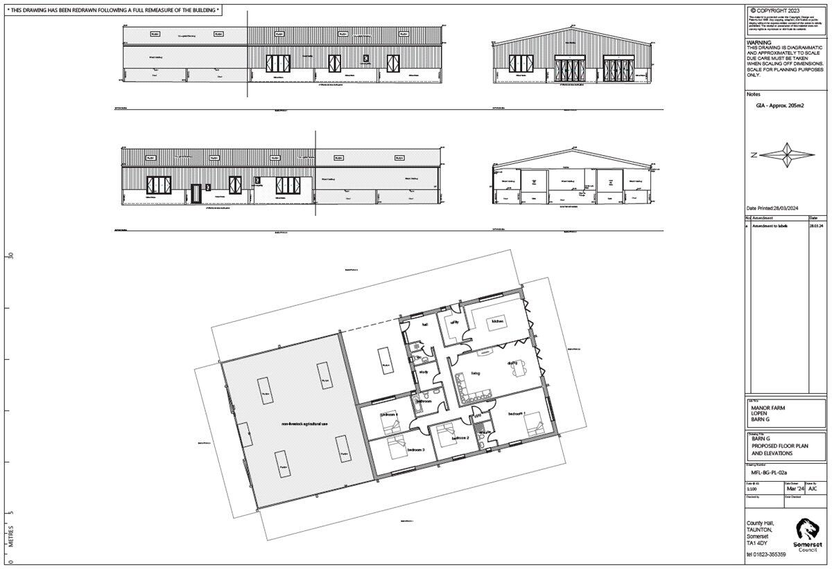
Manor Farm Cottage sits within an extensive 8.59-acre farmstead on the edge of Lopen, offering a rare combination of a stone farmhouse, traditional barns and large paddocks. The farmhouse is Grade II listed and requires complete renovation; the wider site includes multiple buildings with planning permissions already granted for several conversions. For a buyer prepared to manage a sensitive, listed conversion, the planning history materially reduces some planning risk for redevelopment.
The site includes gently sloping pasture down to a stream, a fenced pond, large yard areas and off-street parking — useful for retained agricultural use or to support the approved residential conversions. Services are present for mains water and electricity but new connections and private drainage works will be needed to service new units. The farmhouse currently has basic room heating by smokeless fuel and an EPC rating of G.
Important constraints and hazards are clear: the farmhouse is Grade II listed which will require careful, potentially costly listed-building works and consents, and many outbuildings have unsafe or untested timbers. The property is sold subject to a covenant limiting development to a maximum of eight dwellings and reserving a right of access over part of the drive. Purchasers should allow for significant renovation, remedial works and service upgrades.
Overall this is a substantial, estate-scale opportunity for an investor or developer experienced with listed rural conversions and site-wide servicing. It offers immediate development potential through recent permissions, significant private amenity and long views across surrounding farmland, but requires hands-on project management and budget for listed-building compliant works.
4 bedroom detached house for sale in Lopenhead, South Petherton, TA13 — £645,000 • 4 bed • 2 bath • 2175 ft²
5 bedroom detached house for sale in Shepton Beauchamp, Ilminster, TA19 — £1,300,000 • 5 bed • 2 bath • 3064 ft²
3 bedroom detached house for sale in Smiths Farm, Fivehead, Taunton, TA3 — £950,000 • 3 bed • 2 bath • 2110 ft²
3 bedroom detached house for sale in Yarcombe, Honiton, EX14 — £1,100,000 • 3 bed • 1 bath • 1833 ft²
Land for sale in Clavelshay, Bridgwater, Somerset, TA6 — £385,000 • 1 bed • 1 bath • 3552 ft²
4 bedroom farm house for sale in Holditch, Chard, TA20 — £1,275,000 • 4 bed • 1 bath • 1976 ft²






































































